Standout Features
- Chain free
- Laings Estate
- Off Street Parking
- Expertly converted loft
- Open plan kitchen diner
- Garage
Property Description
Situated on the ever-popular Laing's Estate in Woodford Green, this impressive 1930's built family home offers a superb blend of generous proportions, modern upgrades and excellent living space throughout. The property boasts a handsome red brick façade with a double bay, creating an attractive and characterful first impression.
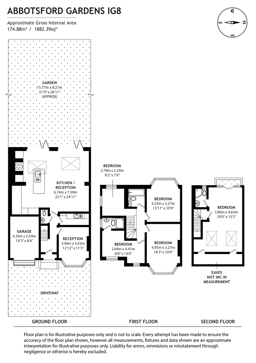
Set back from the road, the property benefits from off street parking for multiple vehicles, with the added advantage of an electric charging point, as well as an integral garage, providing both practicality and further potential.
The ground floor is centred around a stunning open plan kitchen / dining / living space, thoughtfully extended to the rear and finished to a high standard, with oakwood flooring underfoot. This bright and contemporary area features a large central island, bespoke cabinetry and bi-folding doors opening directly onto the garden, creating an ideal space for both everyday family life and entertaining.
A separate front reception room offers a more formal living space, while a useful study provides the perfect work-from-home environment. A ground floor WC completes this level.
To the first floor there are four well-proportioned bedrooms along with a modern family bathroom and additional shower room, all presented in excellent condition.
The property has been further enhanced by an expertly converted loft, now providing a spacious principal bedroom with elevated views, adding valuable additional space.
Externally, the property enjoys a 51 ft west facing rear garden, offering a well-balanced mix of patio and lawn. A stone tiled patio area is positioned directly outside the bi-folding doors and extends to the left of the lawn, creating an ideal setting for outdoor dining and entertaining.
Located within a highly sought-after residential turning, the property is well positioned for Woodford Central Line station, local amenities and highly regarded schools.
This is a rare opportunity to acquire a substantial and beautifully presented family home in one of Woodford Green's most desirable locations.
Set back from the road, the property benefits from off street parking for multiple vehicles, with the added advantage of an electric charging point, as well as an integral garage, providing both practicality and further potential.
The ground floor is centred around a stunning open plan kitchen / dining / living space, thoughtfully extended to the rear and finished to a high standard, with oakwood flooring underfoot. This bright and contemporary area features a large central island, bespoke cabinetry and bi-folding doors opening directly onto the garden, creating an ideal space for both everyday family life and entertaining.
A separate front reception room offers a more formal living space, while a useful study provides the perfect work-from-home environment. A ground floor WC completes this level.
To the first floor there are four well-proportioned bedrooms along with a modern family bathroom and additional shower room, all presented in excellent condition.
The property has been further enhanced by an expertly converted loft, now providing a spacious principal bedroom with elevated views, adding valuable additional space.
Externally, the property enjoys a 51 ft west facing rear garden, offering a well-balanced mix of patio and lawn. A stone tiled patio area is positioned directly outside the bi-folding doors and extends to the left of the lawn, creating an ideal setting for outdoor dining and entertaining.
Located within a highly sought-after residential turning, the property is well positioned for Woodford Central Line station, local amenities and highly regarded schools.
This is a rare opportunity to acquire a substantial and beautifully presented family home in one of Woodford Green's most desirable locations.
Additional Information
Tenure:
Freehold
Council Tax Band:
E
Mortgage calculator
Calculate your stamp duty
Results
Stamp Duty To Pay:
Effective Rate:
| Tax Band | % | Taxable Sum | Tax |
|---|
Abbottsford Gardens
Struggling to find a property? Get in touch and we'll help you find your ideal property.