Eagle Moor, Lincoln, LN6

Guide Price £1,075,000 | Available

5 bedroom House For Sale
Total Size: 4801 SQ FT

or call 01522 503727
Standout Features
Property Description

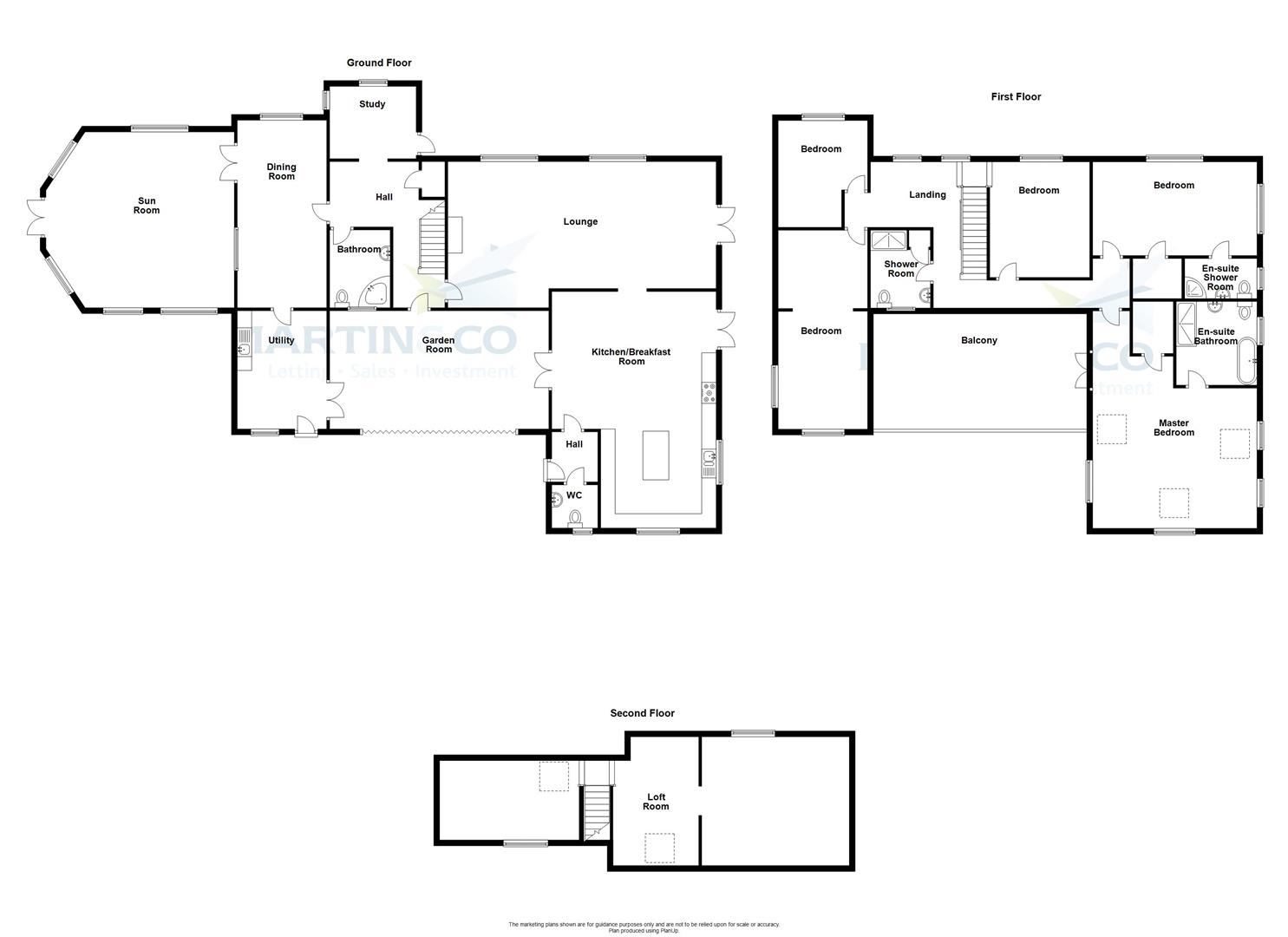
The main house internally comprises an entrance with cloakroom, breakfast kitchen, lounge, garden room, utility, dining room, sun room, study and a bathroom to the ground floor. The first floor offers three double bedrooms and two further double bedrooms both with ensuites and walk in wardrobes, substantial balcony and a further shower room. The second floor offers three separate attic rooms.
The annexe includes a utility room, open plan lounge/diner, kitchen, bathroom and a bedroom with a balcony. Below has its own independent garage with doorway access to the further three garages. Being self contained with its own heating and power, this has the potential to generate a rental income or making for a perfect separate family accommodation.

The property has within its grounds a further detached garage and a large 50' steel workshop making for an ideal business opportunity. Despite the already extensive offering, there is potential for further development (STPP).

All mains services are available. Central heating is oil fired. The property has 3 Phase Electric plus two independent phone lines.

Eagle Moor is a hamlet outside Eagle village well positioned to offer excellent access to the A46 bypass into the city of Lincoln or Newark town plus a bus route including a service to the school. Eagle village has a primary school, post office, public house and park. Lots of countryside walks plus Whisby Nature Reserve, Whisby Garden Centre and Pennells Garden Centre available locally.

ENTRANCE

PVC side door entrance, tiled flooring, light fitting and a radiator.

CLOAKROOM (1.517 x 1.341)

Low level WC, vanity sink, PVC window to the front aspect, tiled flooring, radiator, light and extractor.

KITCHEN/BREAKFAST ROOM (8.202 x 5.588 max measurements)

Base and eye level units with quartz worksurfaces and stainless steel double sink unit with inset drainer grooves. Range of integral appliances include a full size freezer, dishwasher, combination microwave oven and separate steamer oven. Rangemaster cooker with extractor over plus space for an American sized fridge freezer. Complimentary island for further cupboard and counter top space including a pop up socket. Two radiators, marble tiled flooring, spots and further ceiling lighting, PVC French doors to both sides and dual aspect windows. Cupboard housing the mains consumer units and three phase meters.

LOUNGE (9.319 x 5.004 max measurements)

PVC French doors to the side with two PVC windows to the rear aspect, tiled flooring, feature brick fireplace with multi fuel stove, two radiators, ceiling and wall lighting.

GARDEN ROOM (7.653 x 4.136)

Bi-folding doors to the front aspect, wood flooring, spot lit ceiling and a radiator.

SECOND KITCHEN (4.106 x 3.143)

PVC door and window to the front aspect, floor standing oil fired boiler with controls housed, base units with square edge worksurfaces and inset stainless steel sink and drainer. Space and plumbing for a washing machine, light, extractor and vinyl flooring.

DINING ROOM (6.506 x 3.300)

PVC window to the rear aspect, wood flooring, light fittings, radiator, PVC window and double doors into the sun room.

SUN ROOM (6.542 x 6.072 max measurements)

PVC windows to all aspects including French doors to the garden, wood flooring, lighting and a radiator.

INNER HALL

Composite entrance door from the garden room, tiled flooring, radiator, pendant fitting, wall mounted thermostatic control and stairs rising to the first floor with a cupboard below.

STUDY (3.084 x 2.509)

PVC windows to the rear and side plus a PVC door giving access to the garden, tiled flooring, spot lit ceiling, radiator and a ceiling access hatch.

BATHROOM (2.702 x 2.110)

Fully tiled room with a three piece suite comprising of a corner bath with mains shower over, low level WC and vanity sink. Spots and wall lighting with extractor, PVC window to the garden room and a radiator.

STAIRS / LANDING

Several PVC windows to the front and rear aspects, carpet flooring, radiator, ceiling and wall lighting.

MASTER BEDROOM (7.647 x 5.606 max measurements)

PVC windows to the front, rear and side aspects plus over head velux windows with French doors to the balcony terrace. Carpet flooring, ceiling and wall lighting, two radiators and a walk in wardrobe with lighting and hatch access.

ENSUITE (2.973 x 2.808)

Four piece suite comprising of a low level WC, vanity sink, luxury bath and walk in mains fed shower. Tiled flooring, heated towel rail, light and extractor and a PVC window to the side.

BEDROOM (5.812 x 3.241)

PVC dual aspect room with carpet flooring, radiator, ceiling and wall lighting plus a walk in wardrobe with spot lit ceiling.

ENSUITE (2.528 x 1.381)

Low level WC, vanity sink and a double mains fed shower cubicle. Tiled flooring, PVC window to the side aspect, heated towel rail, spot lit ceiling and extractor.

BEDROOM (4.060 x 3.348)

PVC window to the rear aspect, carpet flooring, ceiling and wall lighting plus a radiator.

SHOWER ROOM (2.727 x 2.099)

Low level WC, vanity sink and a double electric shower cubicle. Fully tiled room, PVC window to the rear aspect, radiator, light fitting and an airing cupboard housing the hot water cylinder.

BEDROOM (3.634 x 3.316 max measurements)

PVC window to the rear aspect, carpet flooring, pendant fitting and a radiator.

BEDROOM (7.204 x 3.339 max measurements)

PVC windows to the front and side aspects, carpet flooring, two pendant fittings, radiator and hatch access.

STAIRS

Carpeted with door to access second floor.

LOFT ROOMS

Carpet flooring, PVC windows to the front and rear plus Velux windows overhead, spot lit ceilings and radiators.

OUTSIDE

Mature gardens to include extensive lawned areas, pathways, shrubs, trees and a pond. Decorative raised beds, wishing well and orchard. Gated parking is plentiful leading to the annexe and quadruple garage, further detached garage and large steel workshop with its own separate gated access.

QUADRUPLE GARAGE

Three bay measures - 9.753m x 6.845m plus a fourth with access to the annexe at 4.858m x 2.996m. The main garage area houses an independent oil fired boiler for the annexe with hot water cylinder, power, lighting, electric roller doors and side composite door to the garden. The fourth garage can be accessed internally via a composite door. Includes a further electric roller door, power and lighting, side composite door and access to the annexe.

WORKSHOP (15.137 x 7.477)

Double door wide opening access, three phase electrics with independent phone line, oil fired heating, toilet and sink.

GARAGE (9.356 x 4.479)

Electric roller door with side personnel door, two Velux windows to the side, mains consumer unit, toilet and sink.

ANNEXE

UTILITY ROOM (1.808 x 1.748)

Base units with square edge work surfaces and inset stainless steel sink and drainer. Space and plumbing for a washing machine, radiator, light fitting, PVC window to the rear aspect and mains consumer unit.

STAIRS.

Carpet flooring.

KITCHEN (4.528 x 4.051)

Base and eye level units with a roll edge worksurface and inset composite sink and drainer. Electric oven, hob and extractor over with space for an under counter fridge and separate freezer. Spots and light fittings, radiator, vinyl flooring plus a deep storage cupboard with lighting, central heating controls and loft hatch access.

BATHROOM (2.913 x 1.855)

Four piece suite to include a low level WC, vanity sink, panel bath and a mains fed double shower cubicle. Vinyl flooring, heated towel rail, PVC window to the rear plus Velux window overhead, light and extractor.

LOUNGE/DINER (6.945 x 4.517)

PVC windows to the front and rear aspects, carpet flooring, two light fittings, radiator and wall mounted thermostatic control.

BEDROOM (6.960 x 3.608)

Carpet flooring, two radiators and two light fittings, Velux windows to the front and rear plus PVC doors giving access to the balcony.

FIXTURES & FITTINGS

Please Note : Items described in these particulars are included in the sale, all other items are specifically excluded. We cannot verify that they are in working order, or fit for their purpose. The buyer is advised to obtain verification from their solicitor or surveyor. Measurements shown in these particulars are approximate and as room guides only. They must not be relied upon or taken as accurate. Purchasers must satisfy themselves in this respect.


Additional Information
Tenure:
Freehold
Council Tax Band:
D

Rooms
ENTRANCE
PVC side door entrance, tiled flooring, light fitting and a radiator.
CLOAKROOM
Low level WC, vanity sink, PVC window to the front aspect, tiled flooring, radiator, light and extractor.
1.517m x 1.341m
KITCHEN/BREAKFAST ROOM
Base and eye level units with quartz worksurfaces and stainless steel double sink unit with inset drainer grooves. Range of integral appliances include a full size freezer, dishwasher, combination microwave oven and separate steamer oven. Rangemaster cooker with extractor over plus space for an American sized fridge freezer. Complimentary island for further cupboard and counter top space including a pop up socket. Two radiators, marble tiled flooring, spots and further ceiling lighting, PVC French doors to both sides and dual aspect windows. Cupboard housing the mains consumer units and three phase meters.
8.202m x 5.588m max measurements.
LOUNGE
PVC French doors to the side with two PVC windows to the rear aspect, tiled flooring, feature brick fireplace with multi fuel stove, two radiators, ceiling and wall lighting.
9.319m x 5.004m max measurements.
GARDEN ROOM
Bi-folding doors to the front aspect, wood flooring, spot lit ceiling and a radiator.
7.653m x 4.136m
SECOND KITCHEN
PVC door and window to the front aspect, floor standing oil fired boiler with controls housed, base units with square edge worksurfaces and inset stainless steel sink and drainer. Space and plumbing for a washing machine, light, extractor and vinyl flooring.
4.106m x 3.143m
DINING ROOM
PVC window to the rear aspect, wood flooring, light fittings, radiator, PVC window and double doors into the sun room.
6.506m x 3.300m
SUN ROOM
PVC windows to all aspects including French doors to the garden, wood flooring, lighting and a radiator.
6.542m x 6.072m max measurements.
INNER HALL
Composite entrance door from the garden room, tiled flooring, radiator, pendant fitting, wall mounted thermostatic control and stairs rising to the first floor with a cupboard below.
STUDY
PVC windows to the rear and side plus a PVC door giving access to the garden, tiled flooring, spot lit ceiling, radiator and a ceiling access hatch.
3.084m x 2.509m
BATHROOM
Fully tiled room with a three piece suite comprising of a corner bath with mains shower over, low level WC and vanity sink. Spots and wall lighting with extractor, PVC window to the garden room and a radiator.
2.702m x 2.110m
STAIRS / LANDING
Several PVC windows to the front and rear aspects, carpet flooring, radiator, ceiling and wall lighting.
MASTER BEDROOM
PVC windows to the front, rear and side aspects plus over head velux windows with French doors to the balcony terrace. Carpet flooring, ceiling and wall lighting, two radiators and a walk in wardrobe with lighting and hatch access.
7.647m x 5.606m max measurements.
ENSUITE
Four piece suite comprising of a low level WC, vanity sink, luxury bath and walk in mains fed shower. Tiled flooring, heated towel rail, light and extractor and a PVC window to the side.
2.973m x 2.808m
BEDROOM
PVC dual aspect room with carpet flooring, radiator, ceiling and wall lighting plus a walk in wardrobe with spot lit ceiling.
5.812m x 3.241m
ENSUITE
Low level WC, vanity sink and a double mains fed shower cubicle. Tiled flooring, PVC window to the side aspect, heated towel rail, spot lit ceiling and extractor.
2.528m x 1.381m
BEDROOM
PVC window to the rear aspect, carpet flooring, ceiling and wall lighting plus a radiator.
4.060m x 3.348m
SHOWER ROOM
Low level WC, vanity sink and a double electric shower cubicle. Fully tiled room, PVC window to the rear aspect, radiator, light fitting and an airing cupboard housing the hot water cylinder.
2.727m x 2.099m
BEDROOM
PVC window to the rear aspect, carpet flooring, pendant fitting and a radiator.
3.634m x 3.316m max measurements.
BEDROOM
PVC windows to the front and side aspects, carpet flooring, two pendant fittings, radiator and hatch access.
7.204m x 3.339m max measurements.
STAIRS
Carpeted with door to access second floor.
LOFT ROOMS
Carpet flooring, PVC windows to the front and rear plus Velux windows overhead, spot lit ceilings and radiators.
OUTSIDE
Mature gardens to include extensive lawned areas, pathways, shrubs, trees and a pond. Decorative raised beds, wishing well and orchard. Gated parking is plentiful leading to the annexe and quadruple garage, further detached garage and large steel workshop with its own separate gated access.
QUADRUPLE GARAGE
Three bay measures - 9.753m x 6.845m plus a fourth with access to the annexe at 4.858m x 2.996m. The main garage area houses an independent oil fired boiler for the annexe with hot water cylinder, power, lighting, electric roller doors and side composite door to the garden. The fourth garage can be accessed internally via a composite door. Includes a further electric roller door, power and lighting, side composite door and access to the annexe.
WORKSHOP
Double door wide opening access, three phase electrics with independent phone line, oil fired heating, toilet and sink.
15.137m x 7.477m
GARAGE
Electric roller door with side personnel door, two Velux windows to the side, mains consumer unit, toilet and sink.
9.356m x 4.479m
ANNEXE

UTILITY ROOM
Base units with square edge work surfaces and inset stainless steel sink and drainer. Space and plumbing for a washing machine, radiator, light fitting, PVC window to the rear aspect and mains consumer unit.
1.808m x 1.748m
STAIRS.
Carpet flooring.
KITCHEN
Base and eye level units with a roll edge worksurface and inset composite sink and drainer. Electric oven, hob and extractor over with space for an under counter fridge and separate freezer. Spots and light fittings, radiator, vinyl flooring plus a deep storage cupboard with lighting, central heating controls and loft hatch access.
4.528m x 4.051m
BATHROOM
Four piece suite to include a low level WC, vanity sink, panel bath and a mains fed double shower cubicle. Vinyl flooring, heated towel rail, PVC window to the rear plus Velux window overhead, light and extractor.
2.913m x 1.855m
LOUNGE/DINER
PVC windows to the front and rear aspects, carpet flooring, two light fittings, radiator and wall mounted thermostatic control.
6.945m x 4.517m
BEDROOM
Carpet flooring, two radiators and two light fittings, Velux windows to the front and rear plus PVC doors giving access to the balcony.
6.960m x 3.608m
FIXTURES & FITTINGS
Please Note : Items described in these particulars are included in the sale, all other items are specifically excluded. We cannot verify that they are in working order, or fit for their purpose. The buyer is advised to obtain verification from their solicitor or surveyor. Measurements shown in these particulars are approximate and as room guides only. They must not be relied upon or taken as accurate. Purchasers must satisfy themselves in this respect.

Utilities
Electricity:
Mains Supply
Sewerage:
Mains Supply
Water:
Heating:
Oil

Mortgage calculator

Calculate your stamp duty
£
Results
Stamp Duty To Pay:
Effective Rate:
Tax Band % Taxable Sum Tax

Eagle Moor, Lincoln, LN6

Struggling to find a property? Get in touch and we'll help you find your ideal property.