Standout Features
- No Chain
- Private Patio Area & Communal Gardens
- Four Double Bedrooms
- Three Bathrooms & Downstairs W/C
- Two Balconies
- Electric Heating
- Large Double Glazed Windows
- Off Road Parking
Property Description
Introducing Port Loop: a 43-acre neighbourhood, including over 1,000 homes, a community hub, commercial office spaces, a leisure centre and a swimming pool. There's also a sense of freedom and play built into the fabric of the neighbourhood's urban island design, with traffic-free green streets, communal gardens, public parks and playgrounds. This is a place to relax, get outdoors, get to know your neighbours and let children run free.
Port Loop is nestled between Birmingham Canal Old Line and the Birmingham Canal, just a 15-minute walk from Birmingham city centre. Its island location was once the industrial heart of the city, so the tow paths that served it provide superb, direct routes to the city centre. You can go by foot or jump on a bike. You could even take the water bus. With tranquil Edgbaston Reservoir 5 minutes to the north and buzzing Brindleyplace just 15 minutes away to the south, it really is brilliantly connected.
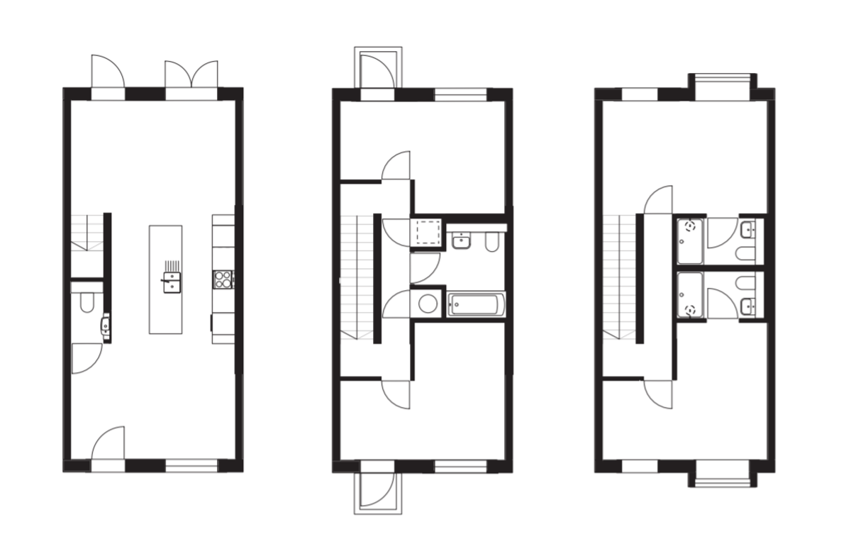
This 4 bed, 3 storey town house offers fantastic flexible, modern living, perfect for families or young professionals. The ground floor has a large open plan living space with the lounge area at one end of the room and dining area at the other. In the middle is a high spec kitchen with island/breakfast bar and there's also a washer/dryer. There is also a WC which is handy for when you have friends and family over. On the 1st floor there is a family bathroom and two double bedrooms, with both benefiting from having a balcony with great views over the neighbourhood. The 2nd floor has two large bedrooms, each with an en-suite. To the front of the property there is off road parking and to the rear is a patio area which leads on to the rest of the Port Loop island gardens.
ROOMS:
GROUND FLOOR
Open Plan Living/Kitchen
WC
FIRST FLOOR
Landing
Two Storage Cupboards
Bedroom Two
Bedroom Three
Bathroom
SECOND FLOOR
Bedroom One
En-suite
OUTSIDE
Driveway
Rear Patio
Port Loop is nestled between Birmingham Canal Old Line and the Birmingham Canal, just a 15-minute walk from Birmingham city centre. Its island location was once the industrial heart of the city, so the tow paths that served it provide superb, direct routes to the city centre. You can go by foot or jump on a bike. You could even take the water bus. With tranquil Edgbaston Reservoir 5 minutes to the north and buzzing Brindleyplace just 15 minutes away to the south, it really is brilliantly connected.
This 4 bed, 3 storey town house offers fantastic flexible, modern living, perfect for families or young professionals. The ground floor has a large open plan living space with the lounge area at one end of the room and dining area at the other. In the middle is a high spec kitchen with island/breakfast bar and there's also a washer/dryer. There is also a WC which is handy for when you have friends and family over. On the 1st floor there is a family bathroom and two double bedrooms, with both benefiting from having a balcony with great views over the neighbourhood. The 2nd floor has two large bedrooms, each with an en-suite. To the front of the property there is off road parking and to the rear is a patio area which leads on to the rest of the Port Loop island gardens.
ROOMS:
GROUND FLOOR
Open Plan Living/Kitchen
WC
FIRST FLOOR
Landing
Two Storage Cupboards
Bedroom Two
Bedroom Three
Bathroom
SECOND FLOOR
Bedroom One
En-suite
OUTSIDE
Driveway
Rear Patio
Additional Information
Tenure:
Freehold
Council Tax Band:
E
Mortgage calculator
Calculate your stamp duty
Results
Stamp Duty To Pay:
Effective Rate:
| Tax Band | % | Taxable Sum | Tax |
|---|
South Loop Green, Port Loop, Edgbaston, B16
Struggling to find a property? Get in touch and we'll help you find your ideal property.