Standout Features
- An imposing Victorian home
- A wealth of original features
- Suitable for Family Home or Student HMO
- 2 Receptions / Downstairs WC
- Kitchen / dining room
- 4/5 Bedrooms
- 2 bathrooms 1 En-suite
- Garden
- Parking for 1 car
- No chain
Property Description
FREEHOLD
An attractive and striking attached Victorian home located on a bold plot between Newbridge Road and the A431 with a wealth of period features set over 4 floors. Given the location and size of this property we believe it offers much scope for further investment as a large home and various uses subject to the usual consents and as licensed student HMO would provide a good income.
Bath enjoys international acclaim as a World Heritage Site for its Georgian architecture and Roman heritage and offers wide variety of cultural, leisure and business amenities along with excellent restaurants and boutique shops and large retailers. There are some very well-regarded schools nearby in both the state and private sectors, and sporting facilities include Bath Racecourse, Lansdown Golf Club and Lansdown Tennis/Squash Club and The Rec the home of Bath Rugby.
Newbridge Road is located on the Northwestern side of Bath. The RUH is only a short distance from the property and local amenities can be found at the well-regarded Chelsea Road which is approximately 200 yards away. Bath Spa University at Newton Park and Bath University, both can be reached with ease by bus and Bath Spa mainline railway station also provides high speed direct links to London Paddington.
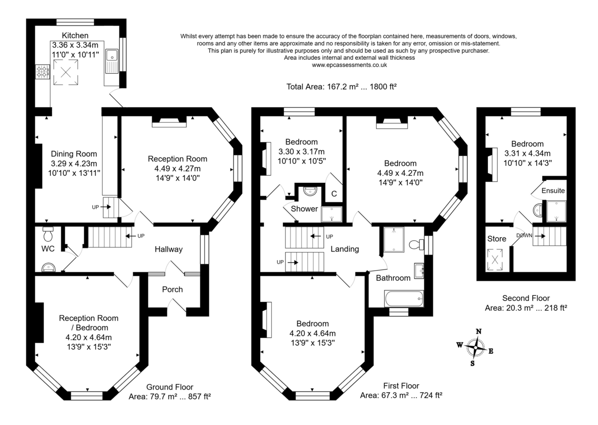
On the ground floor as you enter the property there is there an impressive entrance hallway and access to the basement and a separate WC. To the right-hand side of the hallway is a front reception with impressive bay window and high ceilings along with some original features including the fireplace.
Off the reception room is the dining room which leads down to kitchen which has had direct access to the side of the property and the parking space. To the left of the hallway is the sitting room (or could be used as bedroom 5)and has high ceilings and an amazing bay window, allowing lots of natural light to flood into this room. On the next floor there are three further bedrooms and family bathroom and then stairs to the 4th floor which has as another bedroom with an en- suite shower room.
Externally
There is a decent sized garden mainly laid to lawn to the front of the property with an array of shrubs and bushes enclosed with wooden fencing. There is a very useful off-street parking space located at the rear of the property for one car and permit parking is available from the local authority.
Agents notes
The property has Vacant Possession
Currently vacant, but could be let as a Student HMO - licenced I until 2028 this property lets for approximately £3500.00 per calendar month but we believe more can be achieved.
All bills including utilities/council tax/etc were the responsibility of the tenants.
Please note there is a Basement area but it has not been measured and does not show on the floor plan.
Local Authority Bath and North East Somerset / Council Tax Band E
EPC Band E
Currently E
Potential C
Please note we have not tested any apparatus, fixtures, fittings, or services. Interested parties must undertake their own investigation into the working order of these items. All measurements are approximate and photographs provided for guidance only.
An attractive and striking attached Victorian home located on a bold plot between Newbridge Road and the A431 with a wealth of period features set over 4 floors. Given the location and size of this property we believe it offers much scope for further investment as a large home and various uses subject to the usual consents and as licensed student HMO would provide a good income.
Bath enjoys international acclaim as a World Heritage Site for its Georgian architecture and Roman heritage and offers wide variety of cultural, leisure and business amenities along with excellent restaurants and boutique shops and large retailers. There are some very well-regarded schools nearby in both the state and private sectors, and sporting facilities include Bath Racecourse, Lansdown Golf Club and Lansdown Tennis/Squash Club and The Rec the home of Bath Rugby.
Newbridge Road is located on the Northwestern side of Bath. The RUH is only a short distance from the property and local amenities can be found at the well-regarded Chelsea Road which is approximately 200 yards away. Bath Spa University at Newton Park and Bath University, both can be reached with ease by bus and Bath Spa mainline railway station also provides high speed direct links to London Paddington.
On the ground floor as you enter the property there is there an impressive entrance hallway and access to the basement and a separate WC. To the right-hand side of the hallway is a front reception with impressive bay window and high ceilings along with some original features including the fireplace.
Off the reception room is the dining room which leads down to kitchen which has had direct access to the side of the property and the parking space. To the left of the hallway is the sitting room (or could be used as bedroom 5)and has high ceilings and an amazing bay window, allowing lots of natural light to flood into this room. On the next floor there are three further bedrooms and family bathroom and then stairs to the 4th floor which has as another bedroom with an en- suite shower room.
Externally
There is a decent sized garden mainly laid to lawn to the front of the property with an array of shrubs and bushes enclosed with wooden fencing. There is a very useful off-street parking space located at the rear of the property for one car and permit parking is available from the local authority.
Agents notes
The property has Vacant Possession
Currently vacant, but could be let as a Student HMO - licenced I until 2028 this property lets for approximately £3500.00 per calendar month but we believe more can be achieved.
All bills including utilities/council tax/etc were the responsibility of the tenants.
Please note there is a Basement area but it has not been measured and does not show on the floor plan.
Local Authority Bath and North East Somerset / Council Tax Band E
EPC Band E
Currently E
Potential C
Please note we have not tested any apparatus, fixtures, fittings, or services. Interested parties must undertake their own investigation into the working order of these items. All measurements are approximate and photographs provided for guidance only.
Additional Information
Tenure:
Freehold
Council Tax Band:
E
Mortgage calculator
Calculate your stamp duty
Results
Stamp Duty To Pay:
Effective Rate:
| Tax Band | % | Taxable Sum | Tax |
|---|
Newbridge , Bath
Struggling to find a property? Get in touch and we'll help you find your ideal property.