Standout Features
- Superb Family Home & Building Plot
- Substantial Existing Detached Period Home With Gorgeous Mature Gardens
- Planning Permission for New Detached House & Garage
- Wonderful Opportunity For Extended Family Living
- Potential To Develop & Sell Separately
- Existing Mature Site With All Mains Services Connected
- Wonderful, Panoramic View from Haverland House
- Highly Sought After Residential Location
- Also Available To Purchase Separately
- Tenure Freehold // Council Tax Existing Property Band (E)
Property Description
AGENTS NOTE The site offers a wonderful opportunity to suit a wide range of buyers. It is thought ideal for those looking to create a combined/extended family living with a spacious four bedroom detached house and the proposed new build detached dwelling. The new dwelling could be utilised as accommodation for grand-parents and or potential investment opportunity for letting out on long term or short term basis, perhaps with the view to a longer term it becoming their new home in retirement. It may also be that a buyer would wish to develop the site or simply selling it on separately later as a building plot.
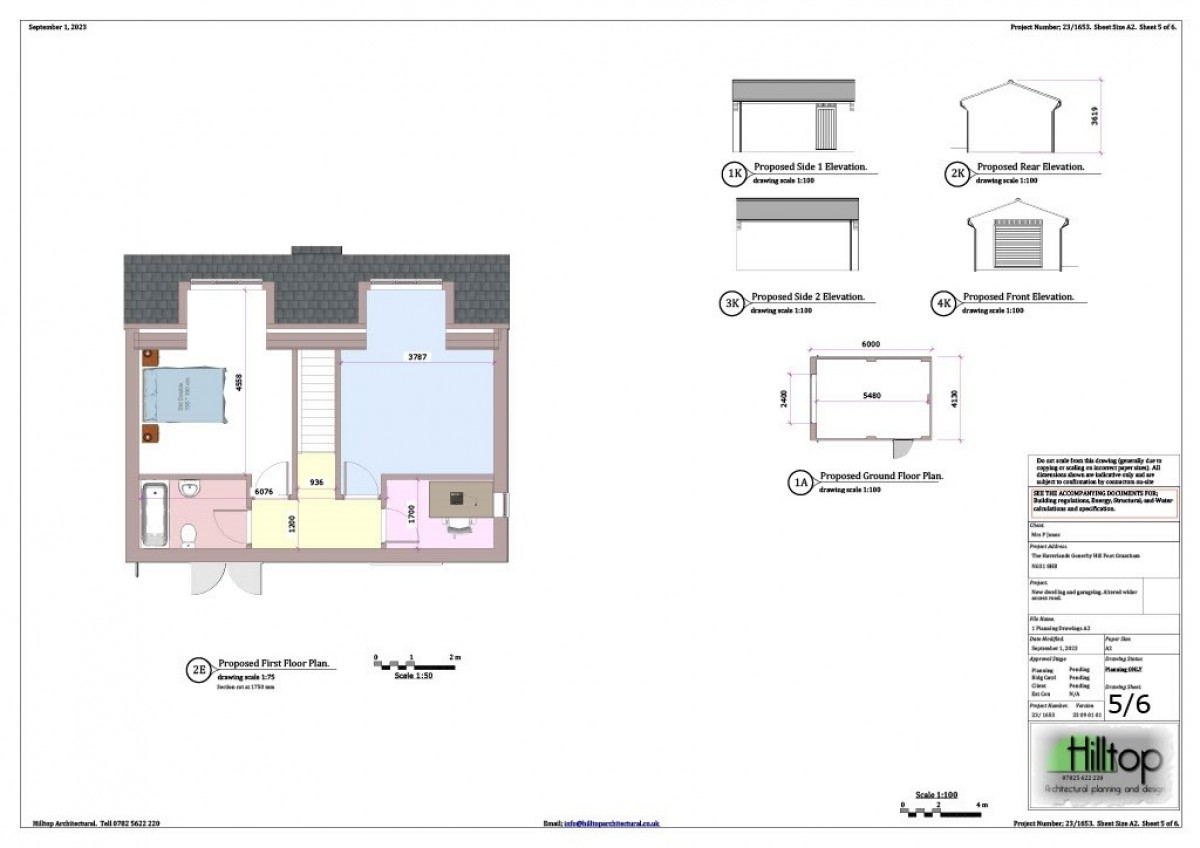
PLANNING Planning permission has been applied for and conditionally approved for the creation of a building plot within the current garden for Haverland House. The permission granted by South Kesteven District Council on 29th Feb 2024 is that based on the application no. S23/0790, the permission running for three years from this date. The planning application having been designed and submitted by Hilltop Architectural Planning & Design.
The proposal is for the erection of a detached two storey dwelling and detached garage. The permission also includes for the demolition of the existing barn/garage. The permitted dwelling as noted from the above application proposed to be some 110Sqm. The new build having a resulting plot of some 576 Sqm / 6200 Sqft. All mains services being available form the donor house/existing property. The new build dwelling being sited and oriented to ensure privacy to both properties. The overall site we understand extending to be approximately 1/3 of an acre/1400Sqm
MAIN PORCH 8' 0" x 5' 0" (2.44m x 1.52m) PVCu double glazed porch with external entrance door and further internal door opening to the entrance hall.
ENTRANCE HALL 14' 8" x 8' 5" (4.47m x 2.57m) Generous and most welcoming entrance hall which sets the tone of space, charm and character repeated throughout this truly enviable detached home.
SITTING ROOM 20' 0" x 14' 0" (6.1m x 4.27m) The first of three reception rooms to the property this truly spacious sitting room enjoys excellent natural light entering through double glazed windows to two elevations. This dual aspect affords the occupants a delightful wide ranging panoramic aspect over Gonerby Hill Foot, Grantham and on over to fields on the horizon. The room also has a period fireplace with glazed tiled surround and further timber surround continuing into a matching glass fronted display cabinet. Radiator. Glazed internal door opening to the living room.
LIVING /DINING ROOM 15' 3" x 14' 0" (4.65m x 4.27m) Another generously proportioned reception room again with delightful wide ranging aspect through a double glazed picture window to the front elevation. Fireplace again with glazed tile and timber surround with matching tiled hearth. Radiator.
DINING ROOM/HOME OFFICE 14' 0" x 10' 0" (4.27m x 3.05m) The third separate, well proportioned reception room ideal for use as a dining/breakfast room and would also make an ideal home office/study. Double glazed window to side. Double doors to built in storage cupboard. Chimney breast fronted by a wall mounted gas fire with timber surround. Door to walk in pantry.
WALK IN PANTRY 6' 7" x 5' 0" (2.01m x 1.52m) With access from the dining room this larder/walk in pantry affords extra storage. With shelving and window to rear.
KITCHEN 13' 9" x 8' 5" (4.19m x 2.57m) Fitted with a range of both base and eye level storage units. The base level units being surmounted by marble effect rolled edge worksurfaces. Splash back tiling. inset acrylic sink unit with mixer tap. Double glazed window to side. Part integrated dishwasher. Space and plumbing for additional white goods and cooker.
REAR LOBBY 3' 6" x 3' 6" (1.07m x 1.07m) Door to outside and door to integral store.
STORE 8' 0 (max)" x 6' 8 (max)" (2.44m x 2.03m) This "L" shape space provides valuable additional storage.
GARDENERS/INTEGRAL WC 5' 0" x 3' 0" (1.52m x 0.91m) Situated adjacent to the rear lobby with access from the rear garden , therefore ideal for use as a gardeners loo.
LANDING Returning to the entrance hall stairs rise through a half turn to a three quarter landing with double glazed bay window to the side. A further short run of stairs reach the main first floor landing. The landing is spacious and galleried in part with doors leading to the following rooms.
BEDROOM 1 17' 0" x 14' 0" (5.18m x 4.27m) Particularly spacious principal bedroom with fabulous panoramic, dual aspect through double glazed windows to the front and side elevations. Radiator. Chimney breast with electric fire.
BEDROOM 2 13' 10" x 12' 10" (4.22m x 3.91m) Further notably generous double bedroom again with wonderful view. Radiator. Chimney breast with wall mounted electric fire.
BEDROOM 3 13' 10" x 9' 11" (4.22m x 3.02m) Yet again a well proportioned double bedroom with radiator, double glazed window to side.
BEDROOM 4 17' 3 (inc wdbe's)" x 6' 9" (5.26m x 2.06m) A good size bedroom with fitted wardrobes, radiator and double glazed window to rear.
BATHROOM 8' 4" x 7' 0" (2.54m x 2.13m) Fitted with a three piece suite comprising bath with shower over, and wash hand basin. Double glazed window. Radiator
SEPARATE WC 4' 9" x 3' 2" (1.45m x 0.97m) With close coupled wc and obscured glazed window.
OUTSIDE Situated at the head of a cul de sac the site comprises both a substantial detached period home and detached barn/garaging. The latter having permission for demolition and creation of a detached dwelling house.
The overall site extending to around 0.35acres / 1400 Sqm. When the new dwelling is created the sites as permitted under the conditionally approved planning application, the two areas are approximately as follows: Haverland House in the region of 824 Sqm / 8869 Sqft and the building plot/new build an area of some 576 Sqm / 6200 Sqft. including the driveway shared between the two properties.
Located towards the top of Gonerby Hill, Haverland House stands in an enviable setting enjoying an elevated position which affords a wonderful open aspect from the existing house. The property has extensive mature gardens that afford excellent privacy and would provide the new custodians with a very pleasant environment ideal for those with children and or pets or simply the keen gardener. The gardens run to four sides of Haverland House. They are predominantly formal in nature with lawns edged by generous thoughtfully and extensively set borders with mature trees, as well as flowering plants and shrubs.
The front of the property can be approached on foot or by vehicle, the current driveway forming the existing and proposed access to both Haverland House and new build dwelling. The existing driveway leads up past the house arriving at the detached barn/garage. This brick built outbuilding is arranged over two levels with garage and store to the ground floor and stairs rising to a loft. The planning permission provides for the demolition of this structure and the replacement with the new build and garage. The permission also provides for the erection of a new garage for the existing Haverland House.
These particulars are for the guidance of proposed purchaser/s and do not represent the terms of a contract, they must be accepted as a guide only and are issued without any responsibility for the vendor, Martin & Co or its employees. Measurements shown in these particulars are approximate and a guide only, they should not be relied upon or taken as correct. We have not tested any services or equipment within this property. We recommend purchasers obtain legal advice & survey/s before committing to purchase. No person representing this firm has the authority to give any warranty or representation in respect of this property. New money laundering regulations require us to verify the identity of any prospective purchaser.
PLANNING Planning permission has been applied for and conditionally approved for the creation of a building plot within the current garden for Haverland House. The permission granted by South Kesteven District Council on 29th Feb 2024 is that based on the application no. S23/0790, the permission running for three years from this date. The planning application having been designed and submitted by Hilltop Architectural Planning & Design.
The proposal is for the erection of a detached two storey dwelling and detached garage. The permission also includes for the demolition of the existing barn/garage. The permitted dwelling as noted from the above application proposed to be some 110Sqm. The new build having a resulting plot of some 576 Sqm / 6200 Sqft. All mains services being available form the donor house/existing property. The new build dwelling being sited and oriented to ensure privacy to both properties. The overall site we understand extending to be approximately 1/3 of an acre/1400Sqm
MAIN PORCH 8' 0" x 5' 0" (2.44m x 1.52m) PVCu double glazed porch with external entrance door and further internal door opening to the entrance hall.
ENTRANCE HALL 14' 8" x 8' 5" (4.47m x 2.57m) Generous and most welcoming entrance hall which sets the tone of space, charm and character repeated throughout this truly enviable detached home.
SITTING ROOM 20' 0" x 14' 0" (6.1m x 4.27m) The first of three reception rooms to the property this truly spacious sitting room enjoys excellent natural light entering through double glazed windows to two elevations. This dual aspect affords the occupants a delightful wide ranging panoramic aspect over Gonerby Hill Foot, Grantham and on over to fields on the horizon. The room also has a period fireplace with glazed tiled surround and further timber surround continuing into a matching glass fronted display cabinet. Radiator. Glazed internal door opening to the living room.
LIVING /DINING ROOM 15' 3" x 14' 0" (4.65m x 4.27m) Another generously proportioned reception room again with delightful wide ranging aspect through a double glazed picture window to the front elevation. Fireplace again with glazed tile and timber surround with matching tiled hearth. Radiator.
DINING ROOM/HOME OFFICE 14' 0" x 10' 0" (4.27m x 3.05m) The third separate, well proportioned reception room ideal for use as a dining/breakfast room and would also make an ideal home office/study. Double glazed window to side. Double doors to built in storage cupboard. Chimney breast fronted by a wall mounted gas fire with timber surround. Door to walk in pantry.
WALK IN PANTRY 6' 7" x 5' 0" (2.01m x 1.52m) With access from the dining room this larder/walk in pantry affords extra storage. With shelving and window to rear.
KITCHEN 13' 9" x 8' 5" (4.19m x 2.57m) Fitted with a range of both base and eye level storage units. The base level units being surmounted by marble effect rolled edge worksurfaces. Splash back tiling. inset acrylic sink unit with mixer tap. Double glazed window to side. Part integrated dishwasher. Space and plumbing for additional white goods and cooker.
REAR LOBBY 3' 6" x 3' 6" (1.07m x 1.07m) Door to outside and door to integral store.
STORE 8' 0 (max)" x 6' 8 (max)" (2.44m x 2.03m) This "L" shape space provides valuable additional storage.
GARDENERS/INTEGRAL WC 5' 0" x 3' 0" (1.52m x 0.91m) Situated adjacent to the rear lobby with access from the rear garden , therefore ideal for use as a gardeners loo.
LANDING Returning to the entrance hall stairs rise through a half turn to a three quarter landing with double glazed bay window to the side. A further short run of stairs reach the main first floor landing. The landing is spacious and galleried in part with doors leading to the following rooms.
BEDROOM 1 17' 0" x 14' 0" (5.18m x 4.27m) Particularly spacious principal bedroom with fabulous panoramic, dual aspect through double glazed windows to the front and side elevations. Radiator. Chimney breast with electric fire.
BEDROOM 2 13' 10" x 12' 10" (4.22m x 3.91m) Further notably generous double bedroom again with wonderful view. Radiator. Chimney breast with wall mounted electric fire.
BEDROOM 3 13' 10" x 9' 11" (4.22m x 3.02m) Yet again a well proportioned double bedroom with radiator, double glazed window to side.
BEDROOM 4 17' 3 (inc wdbe's)" x 6' 9" (5.26m x 2.06m) A good size bedroom with fitted wardrobes, radiator and double glazed window to rear.
BATHROOM 8' 4" x 7' 0" (2.54m x 2.13m) Fitted with a three piece suite comprising bath with shower over, and wash hand basin. Double glazed window. Radiator
SEPARATE WC 4' 9" x 3' 2" (1.45m x 0.97m) With close coupled wc and obscured glazed window.
OUTSIDE Situated at the head of a cul de sac the site comprises both a substantial detached period home and detached barn/garaging. The latter having permission for demolition and creation of a detached dwelling house.
The overall site extending to around 0.35acres / 1400 Sqm. When the new dwelling is created the sites as permitted under the conditionally approved planning application, the two areas are approximately as follows: Haverland House in the region of 824 Sqm / 8869 Sqft and the building plot/new build an area of some 576 Sqm / 6200 Sqft. including the driveway shared between the two properties.
Located towards the top of Gonerby Hill, Haverland House stands in an enviable setting enjoying an elevated position which affords a wonderful open aspect from the existing house. The property has extensive mature gardens that afford excellent privacy and would provide the new custodians with a very pleasant environment ideal for those with children and or pets or simply the keen gardener. The gardens run to four sides of Haverland House. They are predominantly formal in nature with lawns edged by generous thoughtfully and extensively set borders with mature trees, as well as flowering plants and shrubs.
The front of the property can be approached on foot or by vehicle, the current driveway forming the existing and proposed access to both Haverland House and new build dwelling. The existing driveway leads up past the house arriving at the detached barn/garage. This brick built outbuilding is arranged over two levels with garage and store to the ground floor and stairs rising to a loft. The planning permission provides for the demolition of this structure and the replacement with the new build and garage. The permission also provides for the erection of a new garage for the existing Haverland House.
These particulars are for the guidance of proposed purchaser/s and do not represent the terms of a contract, they must be accepted as a guide only and are issued without any responsibility for the vendor, Martin & Co or its employees. Measurements shown in these particulars are approximate and a guide only, they should not be relied upon or taken as correct. We have not tested any services or equipment within this property. We recommend purchasers obtain legal advice & survey/s before committing to purchase. No person representing this firm has the authority to give any warranty or representation in respect of this property. New money laundering regulations require us to verify the identity of any prospective purchaser.
Additional Information
Tenure:
Freehold
Council Tax Band:
E
Mortgage calculator
Calculate your stamp duty
Results
Stamp Duty To Pay:
Effective Rate:
| Tax Band | % | Taxable Sum | Tax |
|---|
Haverland House, The Haverlands, Gonerby Hill Foot
Struggling to find a property? Get in touch and we'll help you find your ideal property.