Standout Features
- Four Double Bedrooms
- Two Bathrooms
- Kitchen Dining Room
- Garage & Parking
- Beautiful Presentation
- Sitting Room with Log Burner
- Conseravatory to rear
- Chain Free
- Next to Pittville Park
- Double Glazed & Central Heated
Property Description
Located on East Approach Drive in Pittville, right next to the famous Pump Rooms and Pittville Park & Gardens is this four double bedroom townhouse.
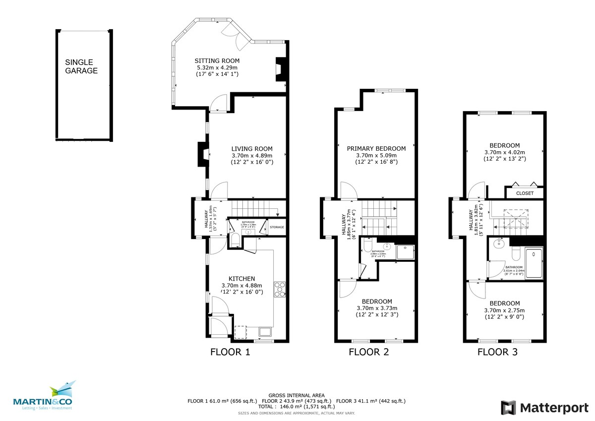
Featuring a garage & parking to the rear, this lovely home has been remodelled by the current owners to provide a kitchen diner on the ground floor. This leads to a central hallway with stairs up and cloakroom off. There is a formal sitting room to the rear with windows either side of the fireplace with log burning fire. This leads through to a conservatory which is used as a second sitting room and family space. This in turn opens out onto the garden.
The first floor features the central hallway with feature windows and two double bedrooms at either end of the property. The rear double bedroom is an impressive 16'8 by 12'2 and has views to Pittville Park. Whilst the front bedroom is also a comfortable double and there is a shower room on this floor to serve the two rooms.
Upstairs again to the second floor and again the layout remains the same with two good double bedrooms front and rear with another shower room servicing them. There is also a central skylight flooding the landing and stairwell with natural light.
Outside the garden has been paved for ease of maintenance, with the park next door offering the perfect impromptu football or cricket venue. There is a gate to the rear to the garage and parking space. Plus to the front is residents permit parking on road and visitor parking unrestricted opposite. Offered to the market Freehold and Chain free.
Featuring a garage & parking to the rear, this lovely home has been remodelled by the current owners to provide a kitchen diner on the ground floor. This leads to a central hallway with stairs up and cloakroom off. There is a formal sitting room to the rear with windows either side of the fireplace with log burning fire. This leads through to a conservatory which is used as a second sitting room and family space. This in turn opens out onto the garden.
The first floor features the central hallway with feature windows and two double bedrooms at either end of the property. The rear double bedroom is an impressive 16'8 by 12'2 and has views to Pittville Park. Whilst the front bedroom is also a comfortable double and there is a shower room on this floor to serve the two rooms.
Upstairs again to the second floor and again the layout remains the same with two good double bedrooms front and rear with another shower room servicing them. There is also a central skylight flooding the landing and stairwell with natural light.
Outside the garden has been paved for ease of maintenance, with the park next door offering the perfect impromptu football or cricket venue. There is a gate to the rear to the garage and parking space. Plus to the front is residents permit parking on road and visitor parking unrestricted opposite. Offered to the market Freehold and Chain free.
Additional Information
Tenure:
Freehold
Council Tax Band:
E
Mortgage calculator
Calculate your stamp duty
Results
Stamp Duty To Pay:
Effective Rate:
| Tax Band | % | Taxable Sum | Tax |
|---|
East Approach Drive, Cheltenham, Gloucestershire
Struggling to find a property? Get in touch and we'll help you find your ideal property.