Standout Features
- 4 Double Bedrooms
- Lounge
- Dining Room
- Cloakroom
- Kitchen
- UPVC Double Glazing
- Gas Central Heating
- EPC C, CTax D
- Garage
- No Chain
Property Description
DESCRIPTION NO CHAIN - 4 DOUBLE BEDROOMS - great family home with a large lounge, dining room and kitchen, cloakroom, 4 bedrooms and refitted bathroom upstairs, double glazing, gas central heating, garage and enclosed garden. EPC C, CTax D. Located close to local schooling and amenities.
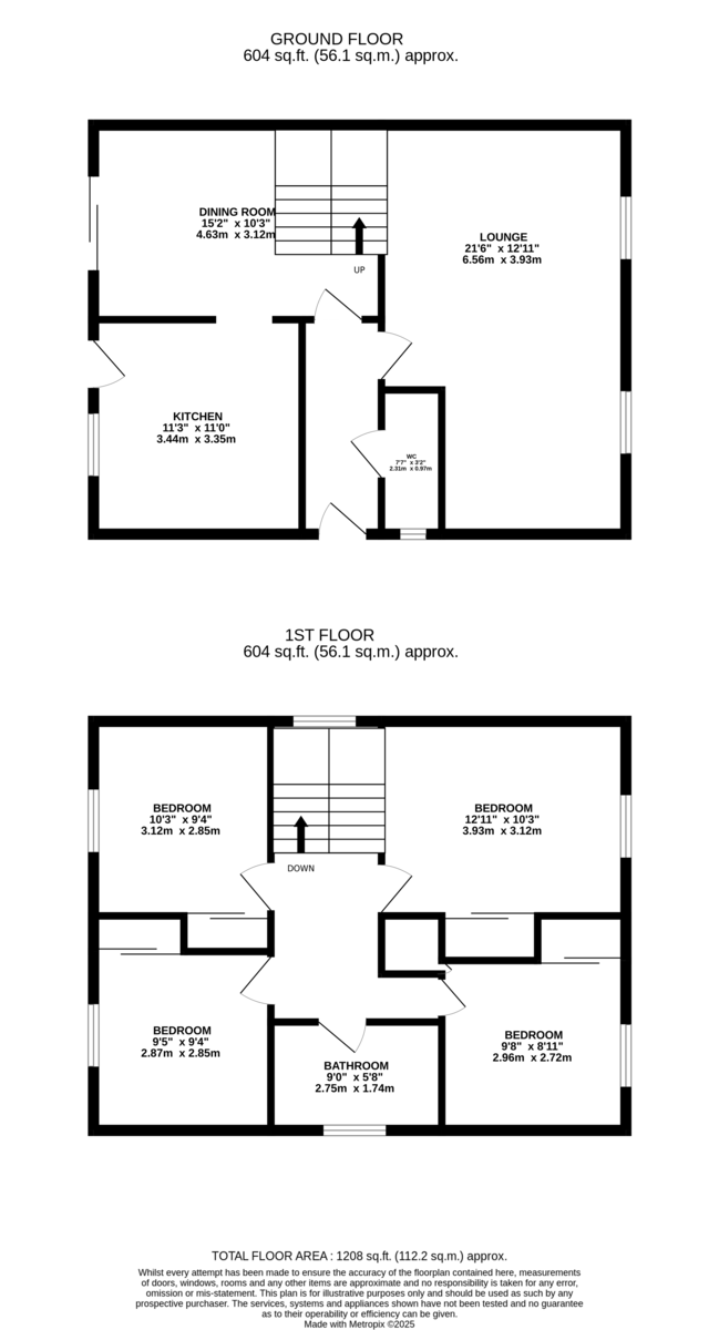
HALLWAY Enter via the UPVC double glazed door in to the hallway, doors to the lounge, cloakroom and dining room
CLOAKROOM window and WC and wash basin
LOUNGE a large lounge facing to the front of the property with two windows
DINING ROOM with sliding door to the garden, opening to the kitchen and stair to the first floor
KITCHEN a good sized kitchen with a good range of eye and base units, sink and drainer, oven and hob, door to the garden window to the rear
LANDING window to the side doors to all rooms, airing cupboard
BEDROOM 1 window and recessed double wardrobe
BEDROOM 2 window and recessed double wardrobe
BEDROOM 3 window and recessed double wardrobe
BATHROOM modern 4 piece bathroom with WC, wash basin shower cubicle and bath, window
BEDROOM 4 window and recessed double wardrobe
OUTSIDE there is an area of lawn and shrubs to the front over looking a central green, gated side access to the enclosed rear garden with rear access to the GARAGE - with up and over door with a parking space in front
HALLWAY Enter via the UPVC double glazed door in to the hallway, doors to the lounge, cloakroom and dining room
CLOAKROOM window and WC and wash basin
LOUNGE a large lounge facing to the front of the property with two windows
DINING ROOM with sliding door to the garden, opening to the kitchen and stair to the first floor
KITCHEN a good sized kitchen with a good range of eye and base units, sink and drainer, oven and hob, door to the garden window to the rear
LANDING window to the side doors to all rooms, airing cupboard
BEDROOM 1 window and recessed double wardrobe
BEDROOM 2 window and recessed double wardrobe
BEDROOM 3 window and recessed double wardrobe
BATHROOM modern 4 piece bathroom with WC, wash basin shower cubicle and bath, window
BEDROOM 4 window and recessed double wardrobe
OUTSIDE there is an area of lawn and shrubs to the front over looking a central green, gated side access to the enclosed rear garden with rear access to the GARAGE - with up and over door with a parking space in front
Additional Information
Tenure:
Freehold
Council Tax Band:
D
Mortgage calculator
Calculate your stamp duty
Results
Stamp Duty To Pay:
Effective Rate:
| Tax Band | % | Taxable Sum | Tax |
|---|
Eagle Way, Abbeydale, Gloucester
Struggling to find a property? Get in touch and we'll help you find your ideal property.