Standout Features
- Mid Terraced House
- Three Bedrooms
- Countryside Views
- Quiet Cul-De-Sac Location
- Council Tax Band: C
- EPC Rating: D
- Generous Garden
- Driveway Parking
- Popular Village Location
Property Description
This fabulous three bedroom family home is a mid terrace benefitting from a quiet cul-de-sac location in the popular village of Fen Ditton.
In brief, the property comprises:
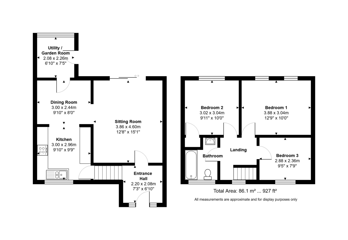
On the ground floor - entrance hall with stairs leading to first floor, large bright living room with patio doors leading to the garden; open plan kitchen / dining room and a utility / garden room.
On the first floor - spacious landing; three bedrooms, two of which are doubles, the third is a single and a modern family bathroom with bath, basin and WC.
Externally the property benefits from a well kept garden with patio and lawn areas. To the front of the property is a gravelled driveway giving ample parking space.
Main Room Sizes:
Kitchen: 3m x 2.96m (9'10" x 9'9") approx'
Diner: 3m x 2.4m (9'10" x 8') appox'
Living Room: 3.86m x 4.6m (12'8" x 15'1") approx'
Bedroom 1: 3.88m x 3.04m (12'9" x 10') approx'
Bedroom 2: 3.02m x 3.04m (9'11" x 10') approx'
Bedroom 3: 2.88m x 2.36m (9'5" x 7'9") approx'
The village of Fen Ditton lies on the Northern outskirts of the City of Cambridge and boasts excellent connections to the City Centre, with easy access to the A14. In addition to an excellent array of local amenities, the River Cam is within easy walking distance.
Money Laundering Regulations:
In order to comply with Money Laundering Regulations, purchasers will be asked to provide photographic ID and proof of address documentation, as well as giving details of the intended source of funds. This information is required before we progress with any offer which has been agreed in principle, subject to contract. We appreciate your cooperation in order to avoid delays in proceeding with the sale.
In brief, the property comprises:
On the ground floor - entrance hall with stairs leading to first floor, large bright living room with patio doors leading to the garden; open plan kitchen / dining room and a utility / garden room.
On the first floor - spacious landing; three bedrooms, two of which are doubles, the third is a single and a modern family bathroom with bath, basin and WC.
Externally the property benefits from a well kept garden with patio and lawn areas. To the front of the property is a gravelled driveway giving ample parking space.
Main Room Sizes:
Kitchen: 3m x 2.96m (9'10" x 9'9") approx'
Diner: 3m x 2.4m (9'10" x 8') appox'
Living Room: 3.86m x 4.6m (12'8" x 15'1") approx'
Bedroom 1: 3.88m x 3.04m (12'9" x 10') approx'
Bedroom 2: 3.02m x 3.04m (9'11" x 10') approx'
Bedroom 3: 2.88m x 2.36m (9'5" x 7'9") approx'
The village of Fen Ditton lies on the Northern outskirts of the City of Cambridge and boasts excellent connections to the City Centre, with easy access to the A14. In addition to an excellent array of local amenities, the River Cam is within easy walking distance.
Money Laundering Regulations:
In order to comply with Money Laundering Regulations, purchasers will be asked to provide photographic ID and proof of address documentation, as well as giving details of the intended source of funds. This information is required before we progress with any offer which has been agreed in principle, subject to contract. We appreciate your cooperation in order to avoid delays in proceeding with the sale.
Additional Information
Tenure:
Freehold
Council Tax Band:
C
Mortgage calculator
Calculate your stamp duty
Results
Stamp Duty To Pay:
Effective Rate:
| Tax Band | % | Taxable Sum | Tax |
|---|
Wrights Close, Fen Ditton
Struggling to find a property? Get in touch and we'll help you find your ideal property.