Standout Features
- Three Bedroom End Terrace
- Downstairs Cloakroom
- Kitchen Breakfast Room
- Large Store / Utility Cupbaord
- Front & Rear Gardens
- On Road Parking
- Fitted Wardrobes to all Bedrooms
- Double Glazed
- Gas Central Heating from Combi Boiler
- Chain Free
Property Description
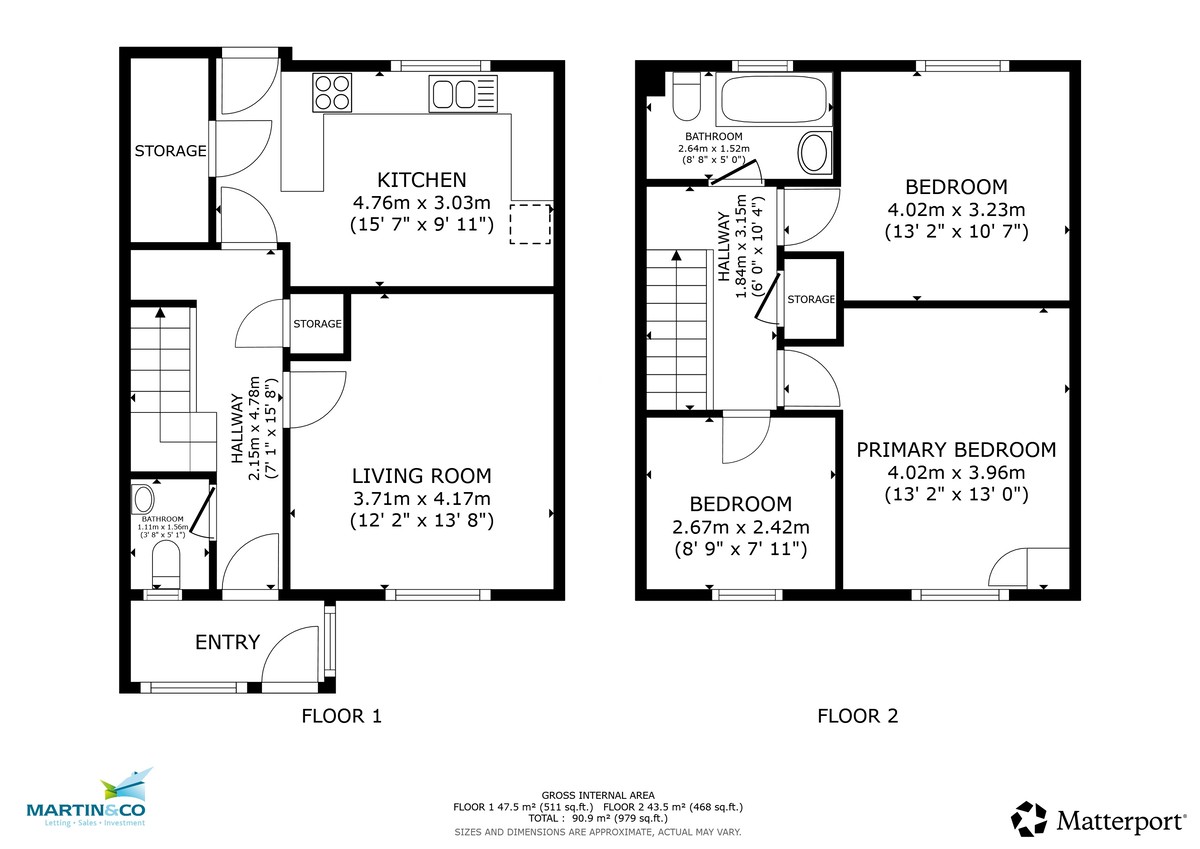
Set in Hatherley, to the south of Cheltenham is this three bedroom end of terrace family home.
These houses are a fantastic layout with a porch leading to an entrance hall with a cloakroom and store cupboard off, plus under stairs storage. There is a large separate lounge to the front overlooking the front garden and then across the rear of the property is a kitchen breakfast room. This has access to the rear garden and also has a large store / utility cupboard off.
Upstairs are three bedrooms, all of which feature built in wardrobes. The main bedroom is set to the front, whilst the guest double bedroom is to the rear. There is a family bathroom to the rear and a single bedroom at the front.
Warmed by gas central heating from a combi boiler and featuring double glazed windows, this is a lovely family home. There is on-street parking to the front and gated side access to the garden. This features a brick built store, patio and lawn area with a gate to the rear.
Offered to the market chain free.
Tenure: Freehold
Council Tax Band: C
EPC Rating: C
These houses are a fantastic layout with a porch leading to an entrance hall with a cloakroom and store cupboard off, plus under stairs storage. There is a large separate lounge to the front overlooking the front garden and then across the rear of the property is a kitchen breakfast room. This has access to the rear garden and also has a large store / utility cupboard off.
Upstairs are three bedrooms, all of which feature built in wardrobes. The main bedroom is set to the front, whilst the guest double bedroom is to the rear. There is a family bathroom to the rear and a single bedroom at the front.
Warmed by gas central heating from a combi boiler and featuring double glazed windows, this is a lovely family home. There is on-street parking to the front and gated side access to the garden. This features a brick built store, patio and lawn area with a gate to the rear.
Offered to the market chain free.
Tenure: Freehold
Council Tax Band: C
EPC Rating: C
Additional Information
Tenure:
Freehold
Council Tax Band:
C
Mortgage calculator
Calculate your stamp duty
Results
Stamp Duty To Pay:
Effective Rate:
| Tax Band | % | Taxable Sum | Tax |
|---|
Thirlmere Road, Cheltenham, Gloucestershire
Struggling to find a property? Get in touch and we'll help you find your ideal property.