Standout Features
- SEA VIEWS
- CONTEMPORARY DESIGN
- REVERSE LIVING ACCOMMODATION
- AIR SOURCE HEATING
- 15 MINUTE WALK TO BEACH
- PARKING
Property Description
Set back from the main road, this stunning contemporary designed home, which was constructed in 2023, provides stylish, three-bedroom, reverse living accommodation, just a 15 minute walk (0.6miles) to the golden shores of Perranporth beach.
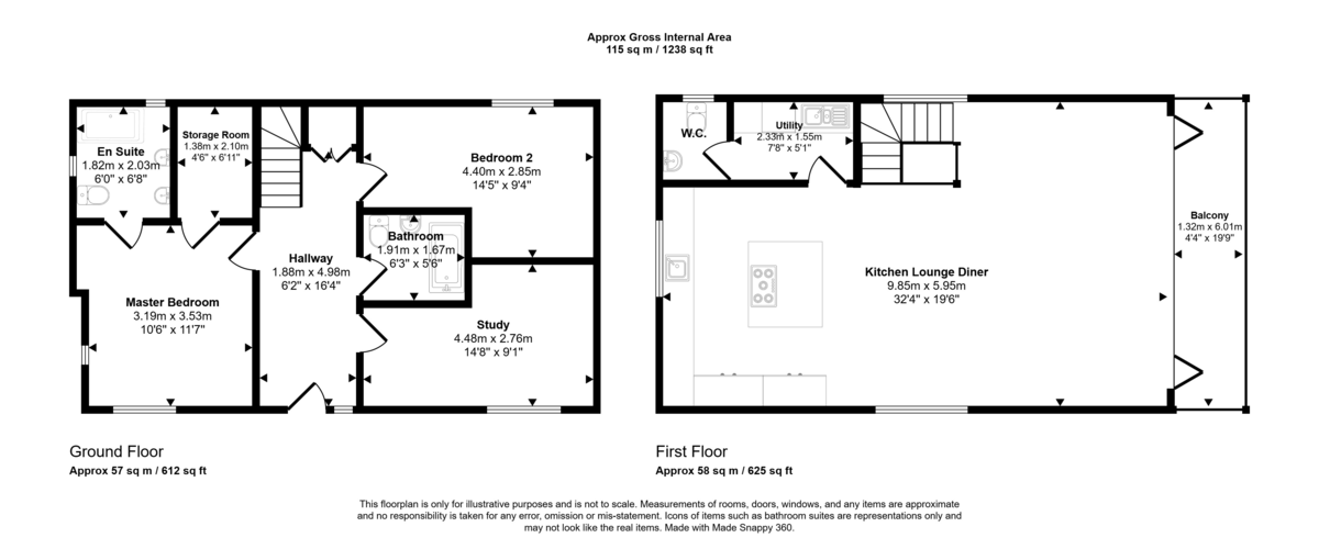
Adjacent to St Michael's Road there is off-street parking for 2 cars and the low maintenance front garden is located behind a privacy fence and gate, with a gravelled path leading to the front door. Stepping inside, on the ground floor, there is a spacious entrance hall with herringbone oak-parquet flooring, along with three double bedrooms, a bathroom and an under-stairs cupboard which houses the hot water immersion and tank.
A spacious principal bedroom is to your left, with a walk-in closet and an airy en-suite shower room with a WC, large walk-in shower and a wall hung vanity unit with two ceramic countertop basins and mixer taps. There are two further double bedrooms, plus a shared bathroom which has a bath and vanity unit with a wall hung WC and inset basin with mixer tap.
A smart oak and glass staircase takes you up to the quadruple aspect first floor where there is a breathtaking open plan kitchen, lounge, diner. Floor to ceiling bi-fold glass doors span the width of the floor and lead out to a xx foot balcony with stupendous sea views across Perranporth and the dunes. A large skylight brings additional light into the centre of this stunning room.
Herringbone oak-parquet flooring brings a warmth to this contemporary space, which has a spacious, fully fitted kitchen, with island and breakfast bar. Minimalist floor to ceiling cupboards on one side ensure ample kitchen storage and are fitted with a pair of double ovens.
The kitchen island has a Neff induction hob with integrated ventilation system and the stone worktop is inset with a stainless-steel sink. There is an integrated dishwasher, fridge-freezer and a wine-fridge. To one side of the kitchen there is a door to a separate utility area and WC. The utility area is fitted with storage cupboards to match the kitchen and has a stainless-steel sink with draining board. There are spaces for a washing machine and dryer.
LOCATION
Taking its name from Cornwall's patron saint (St Pirran!) Perranporth is a small seaside town on the north coast of Cornwall, renowned for its glorious 3-mile long sandy beach and, of course, its surf! Whether you are a wave rider or not, you cannot fail to be impressed by the majestic coastline of this town. Rugged cliff faces striated with copper and tin bely the area's former mining heritage, along with magical caves, rock pools and, of course, the famous Chapel Rock at its centre, with Perranporth's famous tidal-pool carved out of the rocks. A vibrant town all year round, Perranporth is located approximately 5 miles from the A30 and is easily accessible to the rest of Cornwall. Opportunities for sea-swimming, surfing, kite flying, dog walking and paddle boarding abound and the beach is host to of concerts and festivals throughout the summer months. Both Newquay and the city of Truro are around 8 miles away.
Off-street parking for 2 cars
(provision for electrical car charging point)
Air Source Heat Pump
Underfloor heating on first floor
Mains water, sewage and electricity
EPC B
Council Tax Band A
Double glazing
Low maintenance
Constructed 2023
Broadband : Average download speed of the fastest package at this postcode 1600 Mb
Mobile Phone Coverage: O2 / EE / Three / Vodafone - Please contact individual providers for further information
ANTI MONEY LAUNDERING REGULATIONS - PURCHASER
We are required by law to ask all purchasers for verified ID prior to agreeing a sale.
PROOF OF FUNDS - PURCHASERS
Prior to agreeing a sale, we will require proof of financial ability to purchase which will include an agreement in principle for a mortgage and/or proof of cash funds.
Adjacent to St Michael's Road there is off-street parking for 2 cars and the low maintenance front garden is located behind a privacy fence and gate, with a gravelled path leading to the front door. Stepping inside, on the ground floor, there is a spacious entrance hall with herringbone oak-parquet flooring, along with three double bedrooms, a bathroom and an under-stairs cupboard which houses the hot water immersion and tank.
A spacious principal bedroom is to your left, with a walk-in closet and an airy en-suite shower room with a WC, large walk-in shower and a wall hung vanity unit with two ceramic countertop basins and mixer taps. There are two further double bedrooms, plus a shared bathroom which has a bath and vanity unit with a wall hung WC and inset basin with mixer tap.
A smart oak and glass staircase takes you up to the quadruple aspect first floor where there is a breathtaking open plan kitchen, lounge, diner. Floor to ceiling bi-fold glass doors span the width of the floor and lead out to a xx foot balcony with stupendous sea views across Perranporth and the dunes. A large skylight brings additional light into the centre of this stunning room.
Herringbone oak-parquet flooring brings a warmth to this contemporary space, which has a spacious, fully fitted kitchen, with island and breakfast bar. Minimalist floor to ceiling cupboards on one side ensure ample kitchen storage and are fitted with a pair of double ovens.
The kitchen island has a Neff induction hob with integrated ventilation system and the stone worktop is inset with a stainless-steel sink. There is an integrated dishwasher, fridge-freezer and a wine-fridge. To one side of the kitchen there is a door to a separate utility area and WC. The utility area is fitted with storage cupboards to match the kitchen and has a stainless-steel sink with draining board. There are spaces for a washing machine and dryer.
LOCATION
Taking its name from Cornwall's patron saint (St Pirran!) Perranporth is a small seaside town on the north coast of Cornwall, renowned for its glorious 3-mile long sandy beach and, of course, its surf! Whether you are a wave rider or not, you cannot fail to be impressed by the majestic coastline of this town. Rugged cliff faces striated with copper and tin bely the area's former mining heritage, along with magical caves, rock pools and, of course, the famous Chapel Rock at its centre, with Perranporth's famous tidal-pool carved out of the rocks. A vibrant town all year round, Perranporth is located approximately 5 miles from the A30 and is easily accessible to the rest of Cornwall. Opportunities for sea-swimming, surfing, kite flying, dog walking and paddle boarding abound and the beach is host to of concerts and festivals throughout the summer months. Both Newquay and the city of Truro are around 8 miles away.
Off-street parking for 2 cars
(provision for electrical car charging point)
Air Source Heat Pump
Underfloor heating on first floor
Mains water, sewage and electricity
EPC B
Council Tax Band A
Double glazing
Low maintenance
Constructed 2023
Broadband : Average download speed of the fastest package at this postcode 1600 Mb
Mobile Phone Coverage: O2 / EE / Three / Vodafone - Please contact individual providers for further information
ANTI MONEY LAUNDERING REGULATIONS - PURCHASER
We are required by law to ask all purchasers for verified ID prior to agreeing a sale.
PROOF OF FUNDS - PURCHASERS
Prior to agreeing a sale, we will require proof of financial ability to purchase which will include an agreement in principle for a mortgage and/or proof of cash funds.
Additional Information
Tenure:
Freehold
Council Tax Band:
A
Mortgage calculator
Calculate your stamp duty
Results
Stamp Duty To Pay:
Effective Rate:
| Tax Band | % | Taxable Sum | Tax |
|---|
St Michaels Road
Struggling to find a property? Get in touch and we'll help you find your ideal property.