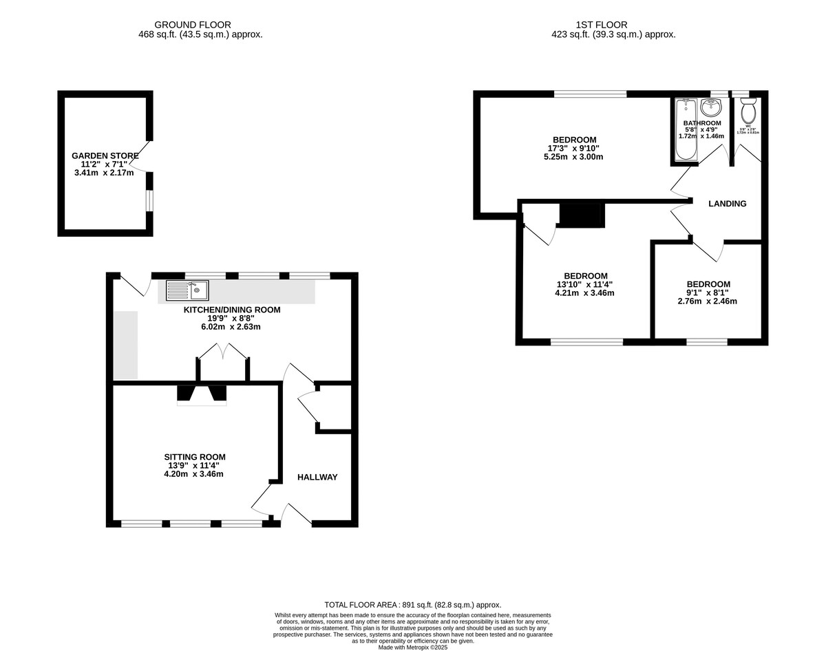
Property Description
Entrance Hall Access via uPVC part glazed door, doors to lounge, kitchen, understairs storage cupboard, stairs to first floor landing, radiator
Lounge 13' 4'' x 11' 4'' (4.055m x 3.452m) Front aspect uPVC double glazed windows, electric fireplace with wooden mantle, television point, radiator
Kitchen/Breakfast Room 19' 9'' x 8' 7'' (6.020m x 2.613m) Rear aspect uPVC double glazed windows with view of the rear garden, fitted range of iron base level units with stainless steel sink with single drain, roll edged work surfaces, part tiled walls, plumbing for washing machine, gas cooker point, storage cupboard, wall mounted gas boiler, radiator, seating area, uPVC door leading out to the rear garden
First Floor Landing Doors to bedrooms one, bedroom two, bedroom three, bathroom and separate WC, access to the loft above
Bedroom One 10' 10'' x 11' 5'' (3.303m x 3.491m) Front aspect uPVC double glazed window, built in wardrobe with hanging space and shelving, radiator
Bedroom Two 15' 9'' x 8' 7'' (4.791m x 2.624m) Rear aspect uPVC double glazed window with view of the rear garden, radiator
Bedroom Three 8' 0'' x 8' 7'' (2.430m x 2.626m) Front aspect uPVC double glazed window, radiator
Bathroom Rear aspect frosted uPVC double glazed window, low level WC, panel enclosed bath with mixed tap and handheld shower above, pedestal wash hand basin with mixed tap, part tiled walls, radiator, extractor fan
Cloakroom Frosted rear aspect uPVC double glazed window, low level WC
Rear Garden Large enclosed rear garden by a range of panel fencing with large decked area, brick built outer building, brick BBQ, pond, shingled area
Front Garden Enclosed front garden, mainly laid lawn, side access, undercover walkway
Lounge 13' 4'' x 11' 4'' (4.055m x 3.452m) Front aspect uPVC double glazed windows, electric fireplace with wooden mantle, television point, radiator
Kitchen/Breakfast Room 19' 9'' x 8' 7'' (6.020m x 2.613m) Rear aspect uPVC double glazed windows with view of the rear garden, fitted range of iron base level units with stainless steel sink with single drain, roll edged work surfaces, part tiled walls, plumbing for washing machine, gas cooker point, storage cupboard, wall mounted gas boiler, radiator, seating area, uPVC door leading out to the rear garden
First Floor Landing Doors to bedrooms one, bedroom two, bedroom three, bathroom and separate WC, access to the loft above
Bedroom One 10' 10'' x 11' 5'' (3.303m x 3.491m) Front aspect uPVC double glazed window, built in wardrobe with hanging space and shelving, radiator
Bedroom Two 15' 9'' x 8' 7'' (4.791m x 2.624m) Rear aspect uPVC double glazed window with view of the rear garden, radiator
Bedroom Three 8' 0'' x 8' 7'' (2.430m x 2.626m) Front aspect uPVC double glazed window, radiator
Bathroom Rear aspect frosted uPVC double glazed window, low level WC, panel enclosed bath with mixed tap and handheld shower above, pedestal wash hand basin with mixed tap, part tiled walls, radiator, extractor fan
Cloakroom Frosted rear aspect uPVC double glazed window, low level WC
Rear Garden Large enclosed rear garden by a range of panel fencing with large decked area, brick built outer building, brick BBQ, pond, shingled area
Front Garden Enclosed front garden, mainly laid lawn, side access, undercover walkway
Additional Information
Tenure:
Freehold
Council Tax Band:
A
Mortgage calculator
Calculate your stamp duty
Results
Stamp Duty To Pay:
Effective Rate:
| Tax Band | % | Taxable Sum | Tax |
|---|
Mandrake Road
Struggling to find a property? Get in touch and we'll help you find your ideal property.