Standout Features
- Victorian Period
- West Facing Garden
- Mid Terrace
- Front garden
- Gas Central Heating
Property Description
An elegant and characterful three-bedroom Victorian residence, set on one of Leytonstone's most desirable residential turnings, offering beautifully proportioned accommodation and a mature west-facing garden.
This exceptional home has been thoughtfully maintained and sensitively styled, retaining a wealth of period detail while providing a comfortable and highly liveable environment suited to modern family life.
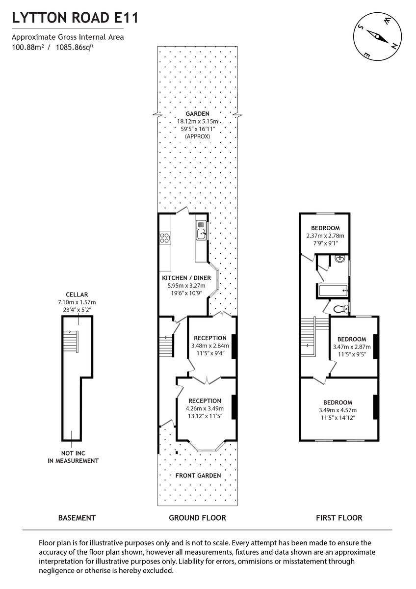
The ground floor unfolds with a sense of space and balance, comprising two generous reception rooms with high ceilings, original features and an abundance of natural light. The principal reception to the front is particularly impressive, with its bay window and feature fireplace, while the adjoining reception offers a more intimate setting, ideal for everyday living or entertaining. To the rear, a well-appointed kitchen/dining room spans the width of the house, creating a sociable and practical space with direct views and access onto the garden.
Upstairs, the first floor provides three well-proportioned bedrooms, including an excellent principal bedroom, complemented by a family bathroom. The overall layout is both versatile and well considered, appealing to a range of buyers.
The rear garden is a notable feature of the property - extending to approximately 60ft and beautifully established, with a variety of mature planting, seating areas and a high degree of privacy. It offers a tranquil retreat, rarely found in such a well-connected location.
Additional benefits include a useful cellar, ideal for storage, and gas central heating.
Situation
Lytton Road is a highly regarded residential address within Leytonstone, known for its attractive period housing and strong community feel. The property is conveniently positioned for Leytonstone Underground Station (Central Line), providing direct access to the City and West End. The area is also well served by independent shops, cafés and green open spaces, alongside a number of well-regarded schools.
This exceptional home has been thoughtfully maintained and sensitively styled, retaining a wealth of period detail while providing a comfortable and highly liveable environment suited to modern family life.
The ground floor unfolds with a sense of space and balance, comprising two generous reception rooms with high ceilings, original features and an abundance of natural light. The principal reception to the front is particularly impressive, with its bay window and feature fireplace, while the adjoining reception offers a more intimate setting, ideal for everyday living or entertaining. To the rear, a well-appointed kitchen/dining room spans the width of the house, creating a sociable and practical space with direct views and access onto the garden.
Upstairs, the first floor provides three well-proportioned bedrooms, including an excellent principal bedroom, complemented by a family bathroom. The overall layout is both versatile and well considered, appealing to a range of buyers.
The rear garden is a notable feature of the property - extending to approximately 60ft and beautifully established, with a variety of mature planting, seating areas and a high degree of privacy. It offers a tranquil retreat, rarely found in such a well-connected location.
Additional benefits include a useful cellar, ideal for storage, and gas central heating.
Situation
Lytton Road is a highly regarded residential address within Leytonstone, known for its attractive period housing and strong community feel. The property is conveniently positioned for Leytonstone Underground Station (Central Line), providing direct access to the City and West End. The area is also well served by independent shops, cafés and green open spaces, alongside a number of well-regarded schools.
Additional Information
Tenure:
Freehold
Mortgage calculator
Calculate your stamp duty
Results
Stamp Duty To Pay:
Effective Rate:
| Tax Band | % | Taxable Sum | Tax |
|---|
Lytton Road, Leytonstone
Struggling to find a property? Get in touch and we'll help you find your ideal property.