Hutson Drive, North Hykeham, Lincoln

£175,000 | Sold

3 bedroom House For Sale

or call 01522 503727
Standout Features
Property Description

DESCRIPTION

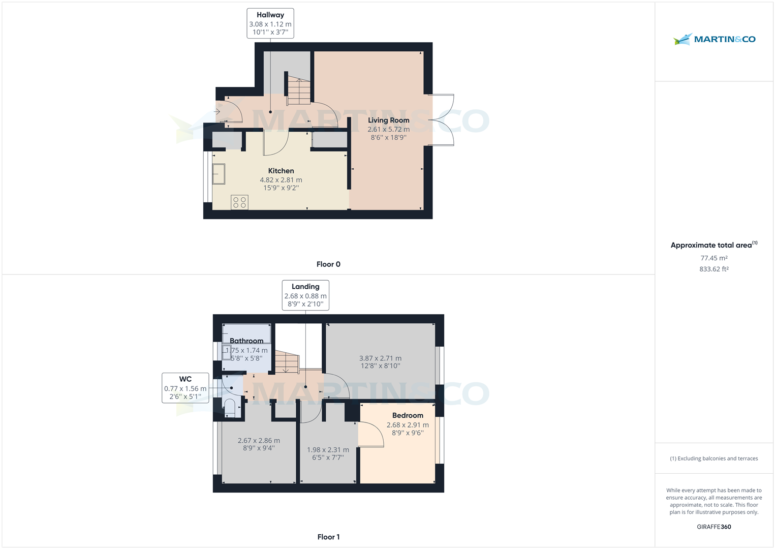
A three double bedroom end-terraced home, ideal as an investment property or first time buy. Comprising internally of an entrance hall, kitchen/diner, living room, to the first floor there are three double bedrooms and a family bathroom with a separate Wc. With both lawned front and rear gardens, and off-parking.

Excellently located within the heart of North Hykeham having a wide range of amenities close by including shops, schooling and transport links.

ENTRANCE HALL (2.7 x 0.88)

Pvc double glazed front entrance door, laminate flooring, a light fitting, radiator and stairs to the first floor with under storage.

KITCHEN/DINER (4.83 x 2.83)

Base and eye units with laminate roll edge worktops, a stainless feel sink drainer, space and plumbing for a washing machine, free standing cooker and fridge freezer. A pvc double glazed window to the front aspect, two light fittings, a radiator and a storage cupboard, and an addition storage cavity.

LIVING ROOM (5.69 x 2.60)

Pvc double glazed French patio doors to rear, laminate flooring, two pendant light fittings, a radiator and gas fire with Hearth and surround. Back boiler located behind the fire.

STAIRS/LANINDING

Carpet flooring, a light fitting and loft hatch access.

BEDROOM (3.89 x 2.72)

Pvc double glazed window to the rear, carpet flooring, a light fitting and a radiator. Accessed via the dressing room which has painted walls and carpet flooring.

BEDROOM (2.9 x 2.56)

Pvc double glazed window to the front, original floorboards, a light fitting and a radiator.

BEDROOM (2.87 x 2.63)

Pvc double glazed window to the rear, original floorboards, a light fitting and a radiator.

BATHROOM (1.77 x 1.75)

A pedestal sink, standard bath with electric shower over and extractor. Pvc double glazed window to the front aspect, vinyl flooring, tiled walls to wet areas, and a light fitting and a radiator.

WC (1.55 x 0.733)

A low level Wc, Pvc double glazed window to the front aspect, vinyl flooring, a light fitting and extractor.

OUTSIDE SPACE

The front offers a drive way for one vehicle, with a small lawn area, accompanied buy flowering shrubs, with two out sheds for storage. The rear non-overlooked south west facing garden is fully fence enclosed, mostly laid to lawn, with mature shrubs and trees, and a concrete pathway.

FIXTURE & FITTINGS

Please Note : Items described in these particulars are included in the sale, all other items are specifically excluded. We cannot verify that they are in working order, or fit for their purpose. The buyer is advised to obtain verification from their solicitor or surveyor. Measurements shown in these particulars are approximate and as room guides only. They must not be relied upon or taken as accurate. Purchasers must satisfy themselves in this respect.


Additional Information
Tenure:
Freehold
Council Tax Band:
A

Rooms
DESCRIPTION
A three double bedroom end-terraced home, ideal as an investment property or first time buy. Comprising internally of an entrance hall, kitchen/diner, living room, to the first floor there are three double bedrooms and a family bathroom with a separate Wc. With both lawned front and rear gardens, and off-parking.

Excellently located within the heart of North Hykeham having a wide range of amenities close by including shops, schooling and transport links.
ENTRANCE HALL
Pvc double glazed front entrance door, laminate flooring, a light fitting, radiator and stairs to the first floor with under storage.
2.7m x 0.88m
KITCHEN/DINER
Base and eye units with laminate roll edge worktops, a stainless feel sink drainer, space and plumbing for a washing machine, free standing cooker and fridge freezer. A pvc double glazed window to the front aspect, two light fittings, a radiator and a storage cupboard, and an addition storage cavity.
4.83m x 2.83m
LIVING ROOM
Pvc double glazed French patio doors to rear, laminate flooring, two pendant light fittings, a radiator and gas fire with Hearth and surround. Back boiler located behind the fire.
5.69m x 2.60m
STAIRS/LANINDING
Carpet flooring, a light fitting and loft hatch access.
BEDROOM
Pvc double glazed window to the rear, carpet flooring, a light fitting and a radiator. Accessed via the dressing room which has painted walls and carpet flooring.
3.89m x 2.72m
BEDROOM
Pvc double glazed window to the front, original floorboards, a light fitting and a radiator.
2.9m x 2.56m
BEDROOM
Pvc double glazed window to the rear, original floorboards, a light fitting and a radiator.
2.87m x 2.63m
BATHROOM
A pedestal sink, standard bath with electric shower over and extractor. Pvc double glazed window to the front aspect, vinyl flooring, tiled walls to wet areas, and a light fitting and a radiator.
1.77m x 1.75m
WC
A low level Wc, Pvc double glazed window to the front aspect, vinyl flooring, a light fitting and extractor.
1.55m x 0.733m
OUTSIDE SPACE
The front offers a drive way for one vehicle, with a small lawn area, accompanied buy flowering shrubs, with two out sheds for storage. The rear non-overlooked south west facing garden is fully fence enclosed, mostly laid to lawn, with mature shrubs and trees, and a concrete pathway.
FIXTURE & FITTINGS
Please Note : Items described in these particulars are included in the sale, all other items are specifically excluded. We cannot verify that they are in working order, or fit for their purpose. The buyer is advised to obtain verification from their solicitor or surveyor. Measurements shown in these particulars are approximate and as room guides only. They must not be relied upon or taken as accurate. Purchasers must satisfy themselves in this respect.

Mortgage calculator

Calculate your stamp duty
£
Results
Stamp Duty To Pay:
Effective Rate:
Tax Band % Taxable Sum Tax

Hutson Drive, North Hykeham, Lincoln

Struggling to find a property? Get in touch and we'll help you find your ideal property.