Standout Features
- Open Planned Kitchen/Dining Room
- Baden Powell and Courthill Catchment
- Ensuite to Bedroom One
- Three Double Bedrooms
- Solar Panels
- Driveway and Garage
- South Facing Garden
- Walking Distance to Amenities
- Large Sitting Room
- Gas Central Heating
Property Description
A charming, well presented, three-bedroom detached family home, ideally situated on a highly desirable residential road. This attractive property is within easy walking distance of Branksome railway station, bus routes, Branksome Woods, and Penn Hill village. It also falls within the school catchment areas for Courthill and Baden-Powell.
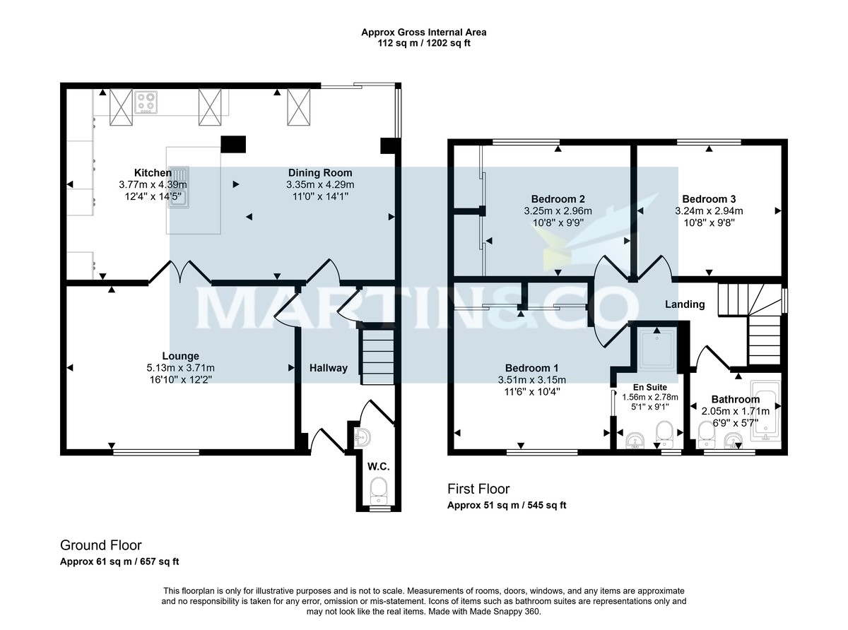
The home offers a range of standout features, including a stunning open-plan kitchen and dining area complete with underfloor heating and sliding doors that open onto a patio and a south-facing rear garden. The ground floor further benefits from a spacious lounge with connecting doors to the kitchen, a downstairs cloakroom, and a understairs storage cupboard.
Upstairs, the first floor comprises three double bedrooms, two of which feature fitted wardrobes. The main bedroom benefits from an en-suite shower room, while a modern family bathroom serves the remaining rooms.
Externally, the property boasts a landscaped front garden, a sunny south-facing rear garden, a garage, and off-road parking. Solar panels are also installed, providing up to 2.8kWh.
Additional benefits include:
Gas central heating
Double glazing
Council tax band: E
1. Money laundering regulations: intending purchasers will be asked to produce identification documentation at a later stage and we would ask for your cooperation in order that there will be no delay in agreeing the sale.
2. General: while we endeavour to make our sales particulars fair, accurate and reliable, they are only a general guide to the property and, accordingly, if there is any point which is of particular importance to you, please contact the office and we will check the position for you, especially if you are contemplating travelling some distance to view the property.
3. Measurements: these approximate room sizes are only intended as general guidance. You must verify the dimensions carefully before ordering carpets or any built-in furniture.
4. Services: please note we have not tested the services or any of the equipment or appliances in this property, accordingly we strongly advise prospective buyers to commission their own survey or service reports before finalising their offer to purchase.
5. These particulars are issued in good faith but do not constitute representations of fact or form part of any offer or contract. The matters referred to in these particulars should be independently verified by prospective buyers or tenants. Neither Martin and Co Poole limited nor any of its employees or agents has any authority to make or give any representation or warranty whatever in relation to this property.
The home offers a range of standout features, including a stunning open-plan kitchen and dining area complete with underfloor heating and sliding doors that open onto a patio and a south-facing rear garden. The ground floor further benefits from a spacious lounge with connecting doors to the kitchen, a downstairs cloakroom, and a understairs storage cupboard.
Upstairs, the first floor comprises three double bedrooms, two of which feature fitted wardrobes. The main bedroom benefits from an en-suite shower room, while a modern family bathroom serves the remaining rooms.
Externally, the property boasts a landscaped front garden, a sunny south-facing rear garden, a garage, and off-road parking. Solar panels are also installed, providing up to 2.8kWh.
Additional benefits include:
Gas central heating
Double glazing
Council tax band: E
1. Money laundering regulations: intending purchasers will be asked to produce identification documentation at a later stage and we would ask for your cooperation in order that there will be no delay in agreeing the sale.
2. General: while we endeavour to make our sales particulars fair, accurate and reliable, they are only a general guide to the property and, accordingly, if there is any point which is of particular importance to you, please contact the office and we will check the position for you, especially if you are contemplating travelling some distance to view the property.
3. Measurements: these approximate room sizes are only intended as general guidance. You must verify the dimensions carefully before ordering carpets or any built-in furniture.
4. Services: please note we have not tested the services or any of the equipment or appliances in this property, accordingly we strongly advise prospective buyers to commission their own survey or service reports before finalising their offer to purchase.
5. These particulars are issued in good faith but do not constitute representations of fact or form part of any offer or contract. The matters referred to in these particulars should be independently verified by prospective buyers or tenants. Neither Martin and Co Poole limited nor any of its employees or agents has any authority to make or give any representation or warranty whatever in relation to this property.
Additional Information
Tenure:
Freehold
Council Tax Band:
E
Mortgage calculator
Calculate your stamp duty
Results
Stamp Duty To Pay:
Effective Rate:
| Tax Band | % | Taxable Sum | Tax |
|---|
Crescent Road , Lower Parkstone
Struggling to find a property? Get in touch and we'll help you find your ideal property.