Standout Features
- Three Bedrooms
- First Floor
- Secure Underground Parking
- Lift Access
- 959 Year Lease
- Bathroom & Cloakroom
- Communal Gardens
- Large Balcony
- Chain Free
Property Description
A three bedroom apartment in the highly sought after Christchurch area , ideally situated for access to town centre and within easy reach of local amenities. Originally built in the 1980s the development comprises two separate blocks of apartments set in gated communal grounds and also has the benefit of secured underground parking with individually allocated spaces plus access to communal laundry and drying rooms.
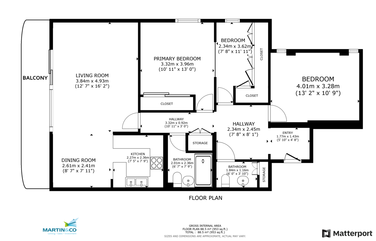
This apartment is very well set out and has been remodelled by the current owners to create a walk in wardrobe / dressing room out of the 3rd bedroom. This could be put back to a separate room by reinstating a wall in the now open archway between. There is also a shower room together with a separate cloakroom.
Access to the apartment is via a communal entrance with security entry system. Communal entrance lobby with choice of access to all floors via communal stairs or lift . Entrance door to apartment opens into hall with storage and doors off to all rooms :
The main reception room is the open plan 'L' shaped living space incorporating the kitchen area with the generous living/dining area featuring fitted shelving and cupboards at one end, which could be utilised as a media wall. This open plan space leads out to a private exterior balcony.
The two main bedrooms are comfortable doubles and the aforementioned third bedroom is a respectable 11'11" by 7'8". There is also ample hallway
Outside the communal grounds are landscaped with well maintained lawns and cultivated borders, paved pathways leading to communal entrances and to secure stairs giving access to under croft parking area.
Additional access to the under croft parking area is via internal lift with security entry system allowing access to residents communal laundry area and shower room.
The property is warmed by individual wall mounted electric heaters and has double glazed windows
GENERAL INFORMATION
The property is SHARE OF FREEHOLD Western Court (Cheltenham) Management Ltd.
Length of Lease: 999 years from 25/03/1985 ( 959 years remaining )
Service Charge: £190 per month
Ground Rent: NIL
Managing Agents: Cambray Property Management Cheltenham
Council Tax Band: Band D
Local Authority: Cheltenham Borough Council
This apartment is very well set out and has been remodelled by the current owners to create a walk in wardrobe / dressing room out of the 3rd bedroom. This could be put back to a separate room by reinstating a wall in the now open archway between. There is also a shower room together with a separate cloakroom.
Access to the apartment is via a communal entrance with security entry system. Communal entrance lobby with choice of access to all floors via communal stairs or lift . Entrance door to apartment opens into hall with storage and doors off to all rooms :
The main reception room is the open plan 'L' shaped living space incorporating the kitchen area with the generous living/dining area featuring fitted shelving and cupboards at one end, which could be utilised as a media wall. This open plan space leads out to a private exterior balcony.
The two main bedrooms are comfortable doubles and the aforementioned third bedroom is a respectable 11'11" by 7'8". There is also ample hallway
Outside the communal grounds are landscaped with well maintained lawns and cultivated borders, paved pathways leading to communal entrances and to secure stairs giving access to under croft parking area.
Additional access to the under croft parking area is via internal lift with security entry system allowing access to residents communal laundry area and shower room.
The property is warmed by individual wall mounted electric heaters and has double glazed windows
GENERAL INFORMATION
The property is SHARE OF FREEHOLD Western Court (Cheltenham) Management Ltd.
Length of Lease: 999 years from 25/03/1985 ( 959 years remaining )
Service Charge: £190 per month
Ground Rent: NIL
Managing Agents: Cambray Property Management Cheltenham
Council Tax Band: Band D
Local Authority: Cheltenham Borough Council
Additional Information
Tenure:
Share of Freehold
Service Charge:
£2,285 per year
Council Tax Band:
D
Mortgage calculator
Calculate your stamp duty
Results
Stamp Duty To Pay:
Effective Rate:
| Tax Band | % | Taxable Sum | Tax |
|---|
Western Road, Cheltenham, Gloucestershire
Struggling to find a property? Get in touch and we'll help you find your ideal property.