Standout Features
- 3 OR POTENTIALLY 4 BEDROOMS
- RURAL LOCATION
- STUNNING VIEWS
- DETACHED STUDIO
- GENEROUS OFF STREET PARKING
Property Description
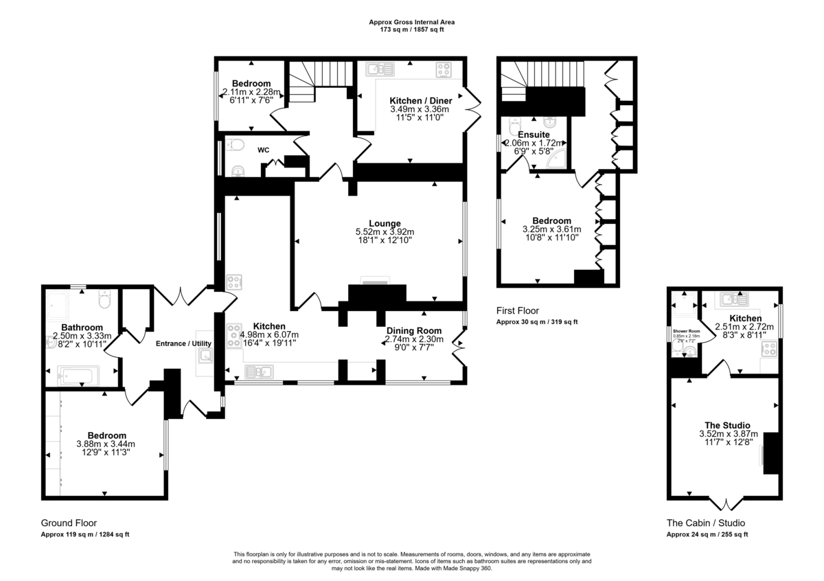
A spacious and extended semi-detached, dormer bungalow with flexible accommodation, which can be used as either one or two properties, as well as a separate fully insulated and heated studio. Benefitting from superb countryside views as well as being located on a quiet 'no through' lane in Rame, there is ample parking for multiple cars in the generous driveway
This semi-detached bungalow is set back from Lestraynes Lane by a small front garden and is raised above road level, making the most of the countryside views which extend all the way to the coast in the distance - spectacular at sunrise and sunset!
Entering the property from the side door, you come initially into an entrance hall / utility, with a hallway leading to a large double bedroom and a large family bathroom with bath and shower cubicle. Patio doors lead out from the utility area to a low-maintenance courtyard garden backing onto an open field, which we are informed is a 'sun trap' in the summer. A light-filled fitted kitchen and dining room extend along one side of the property with patio doors leading out to a terrace at the front. Sunrise lights the room up with a pink glow and this is a wonderful spot for nature watching if you keep your binoculars handy!
A door from the kitchen takes you into a very spacious lounge which has a wood burning stove to keep you cosy in winter, whilst a picture window to the front provides wonderful, far-reaching, countryside views and plenty of natural light.
A door from the lounge leads into the inner hallway of the second half of the accommodation which consists of a kitchen- lounge, WC and bedroom on the ground floor, and, on the first floor, a large double bedroom with plenty of built-in storage cupboards and an ensuite shower room. The kitchen-diner has patio doors out onto the front raised terrace, therefore with its own access, this can easily be used as independent accommodation if required. Alternatively the second kitchen could be converted back into a fourth bedroom as it was previously.
A large, elevated and private decked area extends to the side of the property, providing plenty of space for relaxing and enjoying a summer bar-be-que, with spectacular sunsets to be admired across the fields to the rear. Here you can also find the cabin style studio which has a lounge/ bedroom, kitchen and shower room. The cabin is fully insulated and heated, suitable for use all year round.
Lestraynes Lane has a friendly, small community, and is surrounded by fields, ideal for pets and children. With stunning views all around, we highly recommend viewing to appreciate the wonderful rural setting of this property.
FEATURES
- Freehold
- 3 or potentially 4 bedrooms
- Semi-detached
- Rural location
- Versatile accommodation
- Cabin style studio
- Low maintenance gardens
- Ample parking
- EPC = E
- Council Tax band C
- Oil fired central heating
- LPG Gas for kitchen hobs and heating in cabin
- Mains electricity, water and drainage
- Superfast broadband available
- Mobile Phone Coverage: O2 / EE / Three / Vodafone - Please contact individual providers for further information
LOCATION
Situated in a tucked away, elevated position within the Village of Rame, with convenient access to the nearby towns of Penryn, Falmouth and Helston. There are a range of amenities within close proximity including a Convenience Store, Public House and Fuel Station. There are plenty of opportunities for country walks nearby, which is ideal if you have dogs, and the coastal paths and beaches between Helford and Falmouth are only 6-8 miles away. The nearest town of Penryn, less than 4 miles away, offers a more comprehensive range of local amenities, including supermarkets and educational facilities.
ANTI MONEY LAUNDERING REGULATIONS - PURCHASER
We are required by law to ask all purchasers for verified ID prior to agreeing a sale.
PROOF OF FUNDS - PURCHASERS
Prior to agreeing a sale, we will require proof of financial ability to purchase which will include an agreement in principle for a mortgage and/or proof of cash funds.
This semi-detached bungalow is set back from Lestraynes Lane by a small front garden and is raised above road level, making the most of the countryside views which extend all the way to the coast in the distance - spectacular at sunrise and sunset!
Entering the property from the side door, you come initially into an entrance hall / utility, with a hallway leading to a large double bedroom and a large family bathroom with bath and shower cubicle. Patio doors lead out from the utility area to a low-maintenance courtyard garden backing onto an open field, which we are informed is a 'sun trap' in the summer. A light-filled fitted kitchen and dining room extend along one side of the property with patio doors leading out to a terrace at the front. Sunrise lights the room up with a pink glow and this is a wonderful spot for nature watching if you keep your binoculars handy!
A door from the kitchen takes you into a very spacious lounge which has a wood burning stove to keep you cosy in winter, whilst a picture window to the front provides wonderful, far-reaching, countryside views and plenty of natural light.
A door from the lounge leads into the inner hallway of the second half of the accommodation which consists of a kitchen- lounge, WC and bedroom on the ground floor, and, on the first floor, a large double bedroom with plenty of built-in storage cupboards and an ensuite shower room. The kitchen-diner has patio doors out onto the front raised terrace, therefore with its own access, this can easily be used as independent accommodation if required. Alternatively the second kitchen could be converted back into a fourth bedroom as it was previously.
A large, elevated and private decked area extends to the side of the property, providing plenty of space for relaxing and enjoying a summer bar-be-que, with spectacular sunsets to be admired across the fields to the rear. Here you can also find the cabin style studio which has a lounge/ bedroom, kitchen and shower room. The cabin is fully insulated and heated, suitable for use all year round.
Lestraynes Lane has a friendly, small community, and is surrounded by fields, ideal for pets and children. With stunning views all around, we highly recommend viewing to appreciate the wonderful rural setting of this property.
FEATURES
- Freehold
- 3 or potentially 4 bedrooms
- Semi-detached
- Rural location
- Versatile accommodation
- Cabin style studio
- Low maintenance gardens
- Ample parking
- EPC = E
- Council Tax band C
- Oil fired central heating
- LPG Gas for kitchen hobs and heating in cabin
- Mains electricity, water and drainage
- Superfast broadband available
- Mobile Phone Coverage: O2 / EE / Three / Vodafone - Please contact individual providers for further information
LOCATION
Situated in a tucked away, elevated position within the Village of Rame, with convenient access to the nearby towns of Penryn, Falmouth and Helston. There are a range of amenities within close proximity including a Convenience Store, Public House and Fuel Station. There are plenty of opportunities for country walks nearby, which is ideal if you have dogs, and the coastal paths and beaches between Helford and Falmouth are only 6-8 miles away. The nearest town of Penryn, less than 4 miles away, offers a more comprehensive range of local amenities, including supermarkets and educational facilities.
ANTI MONEY LAUNDERING REGULATIONS - PURCHASER
We are required by law to ask all purchasers for verified ID prior to agreeing a sale.
PROOF OF FUNDS - PURCHASERS
Prior to agreeing a sale, we will require proof of financial ability to purchase which will include an agreement in principle for a mortgage and/or proof of cash funds.
Additional Information
Tenure:
Freehold
Council Tax Band:
C
Mortgage calculator
Calculate your stamp duty
Results
Stamp Duty To Pay:
Effective Rate:
| Tax Band | % | Taxable Sum | Tax |
|---|
Lestraynes Lane, Rame
Struggling to find a property? Get in touch and we'll help you find your ideal property.