Standout Features
- Two Double Bedrooms
- Mid Terrace Home
- Two Reception Rooms
- Kitchen
- Bathroom
- Rear Garden
- On Road Parking
- Excellent Commuting Links
- Close to Local Amenities
- Close to Local Schools
Property Description
NEW TO MARKET This charming two bedroom mid-terrace home, close to Stafford Town Centre is now available. Packed with character and ideally positioned just a short distance from Stafford town centre, this delightful two-bedroom mid-terrace property is perfect for those seeking convenience, comfort, and charm. Inside, you'll find two generous double bedrooms, a cosy and welcoming living room, and a bright, spacious open-plan kitchen/diner, ideal for entertaining or relaxed family living. The modern bathroom and private rear garden add to the appeal, making this a home that's ready to move into. Whether you're a first-time buyer, investor, or looking to downsize, this property ticks all the boxes. Don't miss out! Contact our Sales Team today on 01785 244509 or email [email protected]
to arrange your viewing!
FRONT ELEVATION This charming mid-terrace traditional property is full of character and ideally situated within close proximity to local shops, Stafford town centre, and well-regarded schools. Offering comfortable living with on-road parking, this home is perfect for families or first-time buyers seeking convenience and a touch of period charm.
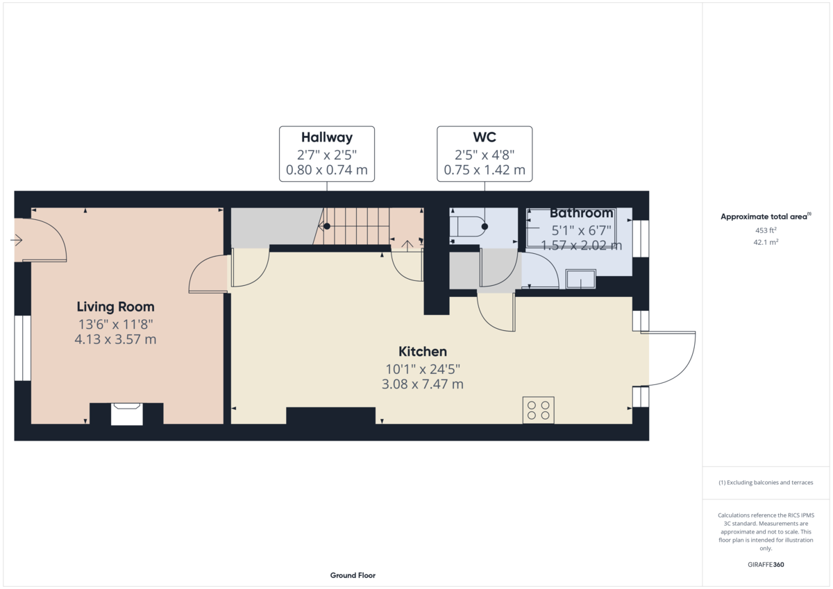
LIVING ROOM 13' 6" x 11' 8" (4.11m x 3.56m) A cosy and inviting living room featuring a fitted carpet, ceiling light fitting, and a radiator for added comfort. A standout log burner set within a charming mantle creates a warm focal point, while a UPVC double glazed window allows for plenty of natural light. Access to the dining area is provided through a classic wooden door.
KITCHEN/DINING ROOM 10' 1" x 24' 5" (3.07m x 7.44m) A spacious open-plan kitchen/diner offering modern functionality and plenty of natural light, enhanced by two skylights and a UPVC double glazed door leading to the rear garden. The room features vinyl flooring, a radiator, and spotlights for a contemporary feel. It boasts matching wall and base units with fitted worktops, a freestanding oven with gas hob, stainless steel extractor fan, and a stainless steel sink with draining board and chrome tap. There is also convenient access to the bathroom and stairs leading to the first floor.
BATHROOM 5' 1" x 6' 7" (1.55m x 2.01m) A well-presented bathroom featuring vinyl flooring and tiled walls for a clean, modern finish. It includes a bath with an overhead shower and glass shower screen, a hand basin with chrome taps, and spotlights for a bright and fresh atmosphere. A UPVC double glazed frosted window provides natural light while maintaining privacy.
WC 2' 5" x 4' 8" (0.74m x 1.42m) A compact and functional WC featuring a toilet with a chrome flush, vinyl flooring, a ceiling light fitting, and a skylight that brings in natural light.
BEDROOM ONE 13' 6" x 11' 8" (4.11m x 3.56m) A spacious master double bedroom featuring a fitted carpet, radiator, and ceiling light fitting. A UPVC double glazed window provides natural light, and there is ample space for storage.
BEDROOM TWO 10' 5" x 11' 11" (3.18m x 3.63m) A comfortable second double bedroom offering fitted carpet, a radiator, and a ceiling light fitting. A UPVC double glazed window overlooks the rear garden, providing a pleasant outlook and natural light.
REAR GARDEN A private rear garden featuring a raised slabbed patio area, perfect for outdoor dining and entertaining. A pathway leads to the rear of the garden, which is complemented by a well-maintained turfed lawn, offering a great space for relaxation or family activities.
to arrange your viewing!
FRONT ELEVATION This charming mid-terrace traditional property is full of character and ideally situated within close proximity to local shops, Stafford town centre, and well-regarded schools. Offering comfortable living with on-road parking, this home is perfect for families or first-time buyers seeking convenience and a touch of period charm.
LIVING ROOM 13' 6" x 11' 8" (4.11m x 3.56m) A cosy and inviting living room featuring a fitted carpet, ceiling light fitting, and a radiator for added comfort. A standout log burner set within a charming mantle creates a warm focal point, while a UPVC double glazed window allows for plenty of natural light. Access to the dining area is provided through a classic wooden door.
KITCHEN/DINING ROOM 10' 1" x 24' 5" (3.07m x 7.44m) A spacious open-plan kitchen/diner offering modern functionality and plenty of natural light, enhanced by two skylights and a UPVC double glazed door leading to the rear garden. The room features vinyl flooring, a radiator, and spotlights for a contemporary feel. It boasts matching wall and base units with fitted worktops, a freestanding oven with gas hob, stainless steel extractor fan, and a stainless steel sink with draining board and chrome tap. There is also convenient access to the bathroom and stairs leading to the first floor.
BATHROOM 5' 1" x 6' 7" (1.55m x 2.01m) A well-presented bathroom featuring vinyl flooring and tiled walls for a clean, modern finish. It includes a bath with an overhead shower and glass shower screen, a hand basin with chrome taps, and spotlights for a bright and fresh atmosphere. A UPVC double glazed frosted window provides natural light while maintaining privacy.
WC 2' 5" x 4' 8" (0.74m x 1.42m) A compact and functional WC featuring a toilet with a chrome flush, vinyl flooring, a ceiling light fitting, and a skylight that brings in natural light.
BEDROOM ONE 13' 6" x 11' 8" (4.11m x 3.56m) A spacious master double bedroom featuring a fitted carpet, radiator, and ceiling light fitting. A UPVC double glazed window provides natural light, and there is ample space for storage.
BEDROOM TWO 10' 5" x 11' 11" (3.18m x 3.63m) A comfortable second double bedroom offering fitted carpet, a radiator, and a ceiling light fitting. A UPVC double glazed window overlooks the rear garden, providing a pleasant outlook and natural light.
REAR GARDEN A private rear garden featuring a raised slabbed patio area, perfect for outdoor dining and entertaining. A pathway leads to the rear of the garden, which is complemented by a well-maintained turfed lawn, offering a great space for relaxation or family activities.
Additional Information
Tenure:
Freehold
Mortgage calculator
Calculate your stamp duty
Results
Stamp Duty To Pay:
Effective Rate:
| Tax Band | % | Taxable Sum | Tax |
|---|
Weston Road, Stafford, Staffordshire
Struggling to find a property? Get in touch and we'll help you find your ideal property.