Standout Features
- Two Double Bedrooms
- Kitchen Breakfast Room
- DIning Room & Study Area
- Formal Sitting Room
- Garage & Driveway
- Corner Plot
- Period Features
Property Description
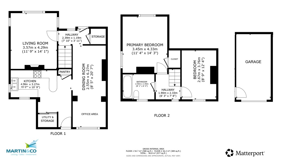
This simply lovely red-brick semi-detached home in St Marks is a beautiful example of 1920's architecture. Combining modern open plan living with period features like fireplaces and picture rails and an array of accommodation, this is a home you won't want to miss.
On entering the property the front reception hall has a cloaks cupboard off and then reception rooms on either side of the hallway. The sitting room is set to the right of the hall and features windows to front and two sides making it an exceptionally light room. The sitting room overlooks the enclosed gardens to front and side giving a lovely green outlook. Its a beautiful room and perfect for a quiet evening. On the opposite side of the hall is an open plan dining room which leads through to a study area. The dining room also opens to the kitchen through an archway. The kitchen features a breakfast bar, direct access to the rear garden and a useful double sliding door utility cupboard to keep the washing machine out of sight.
Upstairs the light and features continue with a main bedroom at the front of the house featuring a fireplace and windows to front and side and fitted storage. On the other side of the landing is an additional double bedroom which overlooks the rear. There is also a family bathroom on the first floor with shower over bath which is a bright clean space.
Outside the home is just as impressive. The house is set behind a high hedge with gate leading to the front door with lawn and shrubs to the side. There is also a large driveway to the side leading to the garage. There is also a storage area and shed between the lawned front garden and the driveway, which is a useful addition and also gives the option to enlarge either garden or provide additional parking if you required. The garage itself provides storage and there is both a personal door from the garage to the rear garden and also a side gate to the garden. The rear garden itself is laid to patio with a raised seating area at the rear.
This is a simply beautiful home and an excellent example of these 'Houses for Hero's', which were built after WW1 and a rare design in Cheltenham.
Tenure: Freehold
Council Tax Band: C
Gas Central Heating
Double Glazed
EPC Rating: D
On entering the property the front reception hall has a cloaks cupboard off and then reception rooms on either side of the hallway. The sitting room is set to the right of the hall and features windows to front and two sides making it an exceptionally light room. The sitting room overlooks the enclosed gardens to front and side giving a lovely green outlook. Its a beautiful room and perfect for a quiet evening. On the opposite side of the hall is an open plan dining room which leads through to a study area. The dining room also opens to the kitchen through an archway. The kitchen features a breakfast bar, direct access to the rear garden and a useful double sliding door utility cupboard to keep the washing machine out of sight.
Upstairs the light and features continue with a main bedroom at the front of the house featuring a fireplace and windows to front and side and fitted storage. On the other side of the landing is an additional double bedroom which overlooks the rear. There is also a family bathroom on the first floor with shower over bath which is a bright clean space.
Outside the home is just as impressive. The house is set behind a high hedge with gate leading to the front door with lawn and shrubs to the side. There is also a large driveway to the side leading to the garage. There is also a storage area and shed between the lawned front garden and the driveway, which is a useful addition and also gives the option to enlarge either garden or provide additional parking if you required. The garage itself provides storage and there is both a personal door from the garage to the rear garden and also a side gate to the garden. The rear garden itself is laid to patio with a raised seating area at the rear.
This is a simply beautiful home and an excellent example of these 'Houses for Hero's', which were built after WW1 and a rare design in Cheltenham.
Tenure: Freehold
Council Tax Band: C
Gas Central Heating
Double Glazed
EPC Rating: D
Additional Information
Tenure:
Freehold
Council Tax Band:
C
Mortgage calculator
Calculate your stamp duty
Results
Stamp Duty To Pay:
Effective Rate:
| Tax Band | % | Taxable Sum | Tax |
|---|
St Marks, Cheltenham, Gloucestershire
Struggling to find a property? Get in touch and we'll help you find your ideal property.