Standout Features
- No chain
- Two double bedrooms
- Third floor
- Good transport links
- Secure gated parking
- Electric heating
Property Description
This third-floor apartment, located in the heart of Birmingham city centre, offers a well-balanced and practical layout, ideal for modern city living. The area itself is known for its vibrant mix of shopping, dining, and cultural attractions, all within easy reach, making it particularly appealing for professionals and those who enjoy an urban lifestyle .
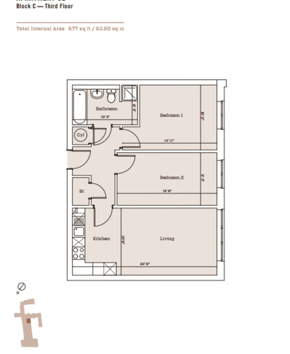
The apartment is accessed via a central entrance that opens into a hallway, from which all rooms are conveniently connected. The layout is efficient and clearly zoned, separating living areas from sleeping accommodation.
At the far end of the property is a bright and spacious open plan lounge/kitchen. This area is designed as the main social hub of the home, with ample room for both seating and dining. Large windows allow for plenty of natural light, enhancing the sense of openness and making it a comfortable place to relax or entertain.
The main bedroom offers a generous layout, suitable for larger furniture and additional storage.
The second bedroom is also well-proportioned and could serve equally well as a guest room, home office, or additional sleeping space. The bathroom is located near the entrance and serves both bedrooms. It is fitted with a bath, overhead shower, washbasin, and toilet, offering a full suite of facilities.
A key advantage of this property is the inclusion of secure gated parking, which is highly desirable in a central location where parking can be limited. Many city-centre apartments highlight parking as a valuable feature due to demand and convenience
ROOMS:
Hallway
Open Plan/Lounge/Kitchen
Bedroom One
Bedroom Two
Bathroom
Store Cupboard
OUTSIDE
Secure Gated Parking
LEASEHOLD INFORMATION:
Service charge - £2,687 pa
Ground rent - £399 pa
Lease length - 999 years from 1st January 2010
Lease, ground rent and service charge details have been provided by the seller and their accuracy cannot be guaranteed. Should you proceed with the purchase of this property, these details must be verified by your Solicitor.
The apartment is accessed via a central entrance that opens into a hallway, from which all rooms are conveniently connected. The layout is efficient and clearly zoned, separating living areas from sleeping accommodation.
At the far end of the property is a bright and spacious open plan lounge/kitchen. This area is designed as the main social hub of the home, with ample room for both seating and dining. Large windows allow for plenty of natural light, enhancing the sense of openness and making it a comfortable place to relax or entertain.
The main bedroom offers a generous layout, suitable for larger furniture and additional storage.
The second bedroom is also well-proportioned and could serve equally well as a guest room, home office, or additional sleeping space. The bathroom is located near the entrance and serves both bedrooms. It is fitted with a bath, overhead shower, washbasin, and toilet, offering a full suite of facilities.
A key advantage of this property is the inclusion of secure gated parking, which is highly desirable in a central location where parking can be limited. Many city-centre apartments highlight parking as a valuable feature due to demand and convenience
ROOMS:
Hallway
Open Plan/Lounge/Kitchen
Bedroom One
Bedroom Two
Bathroom
Store Cupboard
OUTSIDE
Secure Gated Parking
LEASEHOLD INFORMATION:
Service charge - £2,687 pa
Ground rent - £399 pa
Lease length - 999 years from 1st January 2010
Lease, ground rent and service charge details have been provided by the seller and their accuracy cannot be guaranteed. Should you proceed with the purchase of this property, these details must be verified by your Solicitor.
Additional Information
Tenure:
Leasehold
Ground Rent:
£399 per year
Service Charge:
£2,687 per year
Council Tax Band:
D
Mortgage calculator
Calculate your stamp duty
Results
Stamp Duty To Pay:
Effective Rate:
| Tax Band | % | Taxable Sum | Tax |
|---|
Metalworks, Warstone Lane, Jewellery Quarter, B18
Struggling to find a property? Get in touch and we'll help you find your ideal property.