Standout Features
- VIEW OUR 3D VIRTUAL TOUR
- Semi Detached Bungalow
- Two Bedrooms
- Gardens
- Driving Parking
- Garage
- No onward chain
- Gas Central Heating
- Double Glazed
Property Description
Located within easy access of the motorway this two-bedroom semi detached bungalow on Henley Road, Springbank offers well proportioned accommodation.
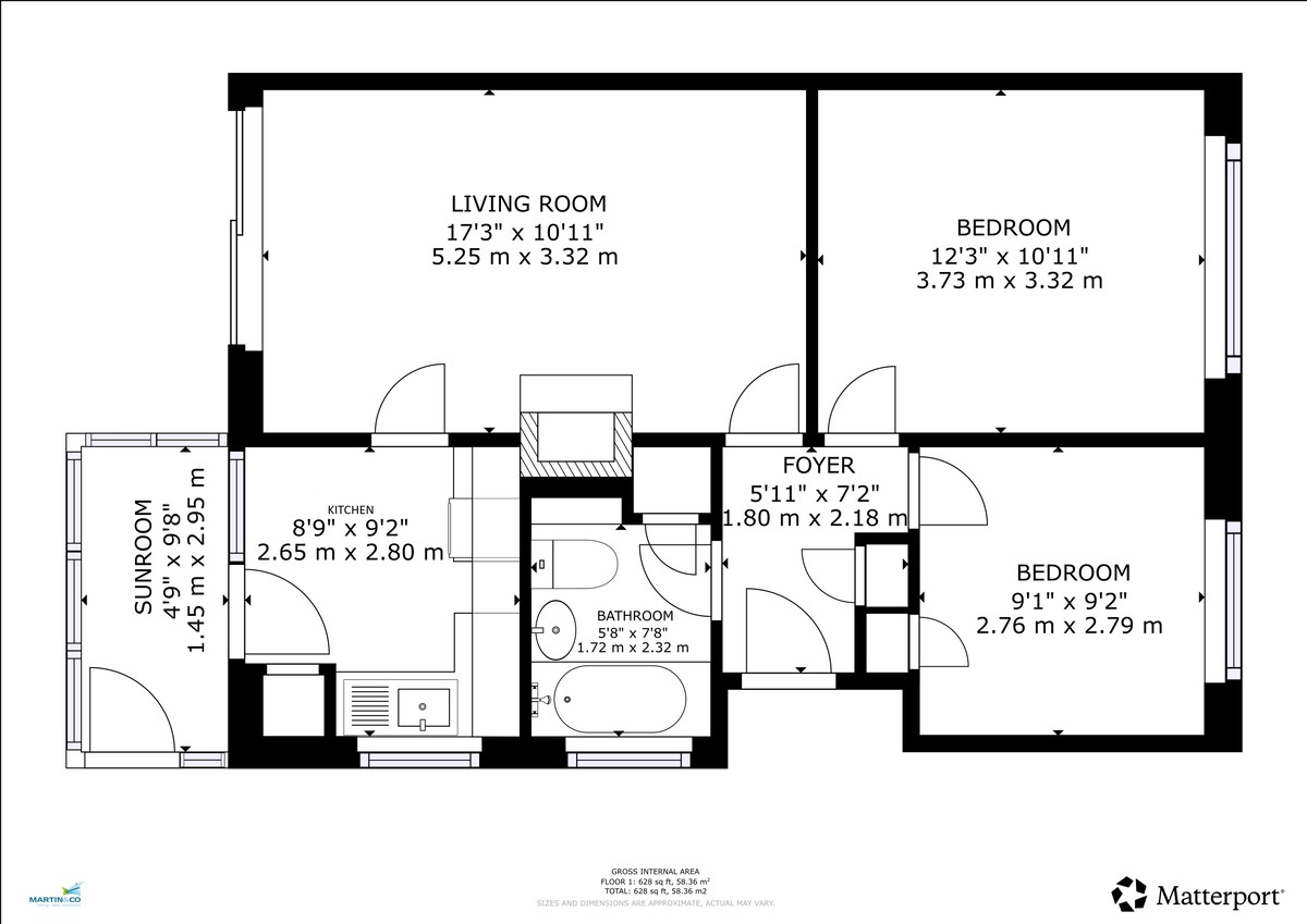
From the entrance hall you access to the 17'3 x 10'11 living room with feature fireplace and patio doors over looking the enclosed rear garden. The kitchen is off the living room and leads to the lean to conservatory at the rear, before opening out to the garden. To the front of the property are the two bedrooms, the main measuring 12'3 x 10'11 and the second with a built in cupboard. The bathroom comprises of a white suite and a shower over the bath and is set opposite the bedrooms.
The property has a driveway for several cars leading to the single, lawned front garden and the enclosed rear garden is laid to patio and lawn.
This is a lovely bungalow in this popular residential area to the West of Cheltenham. The property is double glazed and has gas central heating. It will make a wonderful home.
Tenure: Freehold
Council Tax Band: C
EPC Rating:C
From the entrance hall you access to the 17'3 x 10'11 living room with feature fireplace and patio doors over looking the enclosed rear garden. The kitchen is off the living room and leads to the lean to conservatory at the rear, before opening out to the garden. To the front of the property are the two bedrooms, the main measuring 12'3 x 10'11 and the second with a built in cupboard. The bathroom comprises of a white suite and a shower over the bath and is set opposite the bedrooms.
The property has a driveway for several cars leading to the single, lawned front garden and the enclosed rear garden is laid to patio and lawn.
This is a lovely bungalow in this popular residential area to the West of Cheltenham. The property is double glazed and has gas central heating. It will make a wonderful home.
Tenure: Freehold
Council Tax Band: C
EPC Rating:C
Additional Information
Tenure:
Freehold
Council Tax Band:
C
Mortgage calculator
Calculate your stamp duty
Results
Stamp Duty To Pay:
Effective Rate:
| Tax Band | % | Taxable Sum | Tax |
|---|
Henley Road, Cheltenham, Gloucestershire
Struggling to find a property? Get in touch and we'll help you find your ideal property.