Cowslip Street, Paddock

£110,000 | SSTC

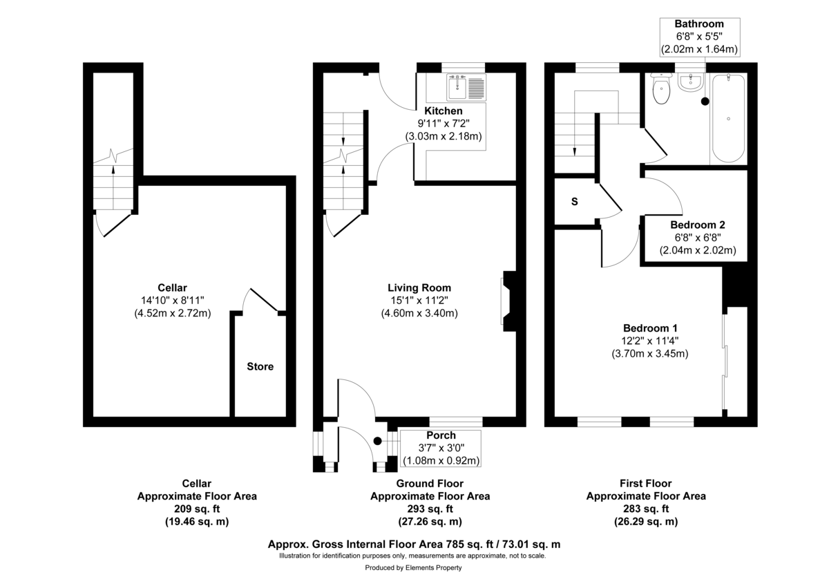
1 bedroom House Sold STC

or call 01484 453935
Standout Features
Property Description
Martin and Co Huddersfield are proud to present this beautifully maintained one bedroom home, ideal for individuals or couples seeking a comfortable and conveniently located living space.

Tucked away on a peaceful and quiet street, yet just a short distance from Huddersfield town centre, this property offers the perfect mix of calm residential living with excellent access to local amenities, transport links and shops.

Property Features:

Inviting Living Room
Step into a bright and spacious living area, complete with a large front facing window that floods the room with natural light. Finished in neutral tones with stylish carpeted flooring, it's the perfect space to relax or entertain.

Well Equipped Kitchen
Located at the rear of the property, the kitchen features a range of wall and base units, a gas point to add an oven and access to the rear fenced and common yard, ideal for enjoying a bit of fresh air. The kitchen also benefits from access to a spacious cellar, offering excellent storage options.

Generous Double Bedroom
Upstairs, you'll find a well proportioned double bedroom, complete with built-in wardrobes, providing both comfort and practicality.

Store Room
Behind the main bedroom and splitting the bathroom is a great store, this has a sky light from the bathroom inside. Great for keeping things out of the way.

Contemporary Bathroom
The bathroom is modern and well-maintained, featuring a white suite with bath, blue tiling, overhead shower, toilet and washbasin.

Call now for your viewing

*Lease information:
Term : 999 years from 25 march 1885

Additional Information
Tenure:
Leasehold
Ground Rent:
£1 per year
Council Tax Band:
A

Mortgage calculator

Calculate your stamp duty
£
Results
Stamp Duty To Pay:
Effective Rate:
Tax Band % Taxable Sum Tax

Cowslip Street, Paddock

Struggling to find a property? Get in touch and we'll help you find your ideal property.