Standout Features
- 1 Bedroom Flat
- Open Plan Lounge/Kitchen
- UPVC Double Glazing
- Gas Central Heating
- Parking
- EPC - C
- CTax - A
- Leasehold
- Chain Free
Property Description
DESCRIPTION VACANT - closer to Gloucester Royal Hospital - We have received an offer of £109,950. Any increased offers are to be received within 5 days of this publication at the above agents. (06/02/2026) Third floor flat offering open plan lounge and kitchen, bathroom and separate double bedroom with build in wardrobes, UPVC double glazing and gas central heating, allocated parking space - EPC - C, CTax - A. Located within walking distance of the train station and the city center. Chain free.
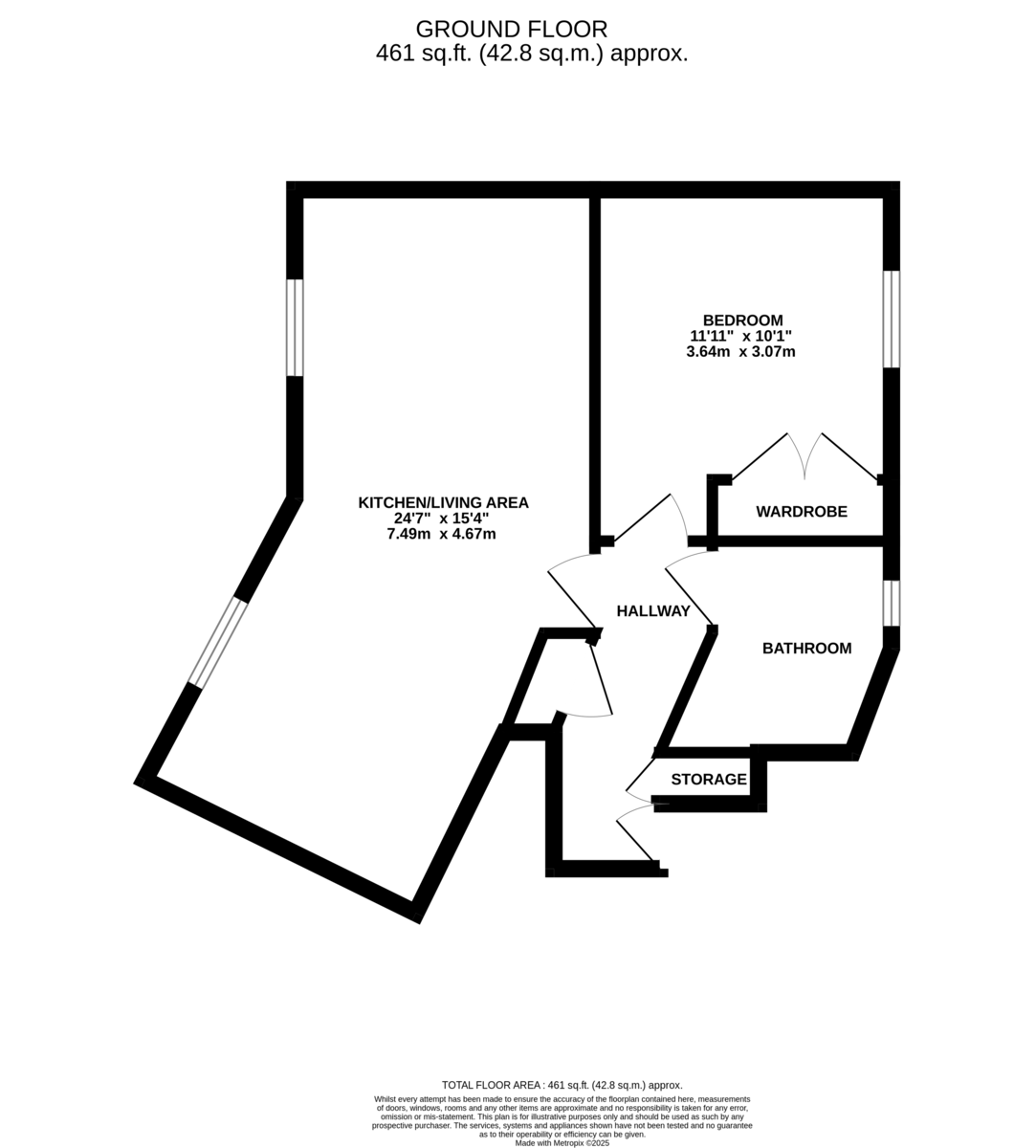
HALLWAY with doors to all rooms, storage cupboards and entry phone
OPEN PLAN LOUNGE/KITCHEN an open plan space with lounge are, 2x upvc windows with kitchen space with room for a small table, range of eye and base unit, built in oven and hob, sink and drainer - boiler mounted in cupboard
BEDROOM double bedroom with UPVC window, built in double wardrobe
BATHROOM modern white suite comprising WC, wash basin, paneled bath with shower over, UPVC window
OUTSIDE allocated parking space
CHARGES Management Company :
Lease Length: 976 years remaining
Ground Rent: £170 per annum
Service Charge: circa £975 per annum
EPC Rating: C
Council Tax Band: A
HALLWAY with doors to all rooms, storage cupboards and entry phone
OPEN PLAN LOUNGE/KITCHEN an open plan space with lounge are, 2x upvc windows with kitchen space with room for a small table, range of eye and base unit, built in oven and hob, sink and drainer - boiler mounted in cupboard
BEDROOM double bedroom with UPVC window, built in double wardrobe
BATHROOM modern white suite comprising WC, wash basin, paneled bath with shower over, UPVC window
OUTSIDE allocated parking space
CHARGES Management Company :
Lease Length: 976 years remaining
Ground Rent: £170 per annum
Service Charge: circa £975 per annum
EPC Rating: C
Council Tax Band: A
Additional Information
Tenure:
Leasehold
Ground Rent:
£170 per year
Service Charge:
£975 per year
Council Tax Band:
A
Mortgage calculator
Calculate your stamp duty
Results
Stamp Duty To Pay:
Effective Rate:
| Tax Band | % | Taxable Sum | Tax |
|---|
Regent House, Mayhill Way Gloucester
Struggling to find a property? Get in touch and we'll help you find your ideal property.