Standout Features
- Leasehold with 150 years remaining
- Service charge £2296.25
- Ground rent £0.00 per annum
- EPC C
- Council tax band A
- One bedroom
- Close to Harbour Arm
- Loft room
Property Description
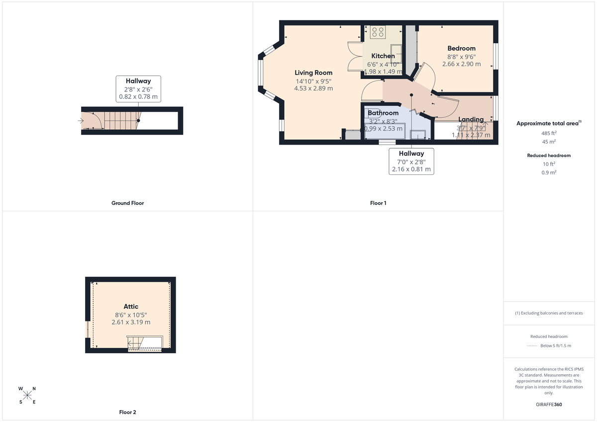
MARTIN&CO are delighted to offer this second floor one bedroom apartment to the market. An ideal first time purchase or investment, the property comprises lounge with space for a small dining table, kitchen, bedroom and bathroom. There is also a loft room which is accessed by a pull down ladder, this could make a home office or study. Situated in the sought after East Cliff area of Folkestone, there are plenty of amenities within walking distance including, The Harbour Arm, Creative Quarter and Sunny Sands beach.
LIVING ROOM 14' 10" x 9' 5" (4.52m x 2.87m)
KITCHEN 6' 6" x 4' 10" (1.98m x 1.47m)
BEDROOM 8' 8" x 9' 6" (2.64m x 2.9m)
BATHROOM 3' 2" x 8' 3" (0.97m x 2.51m)
ATTIC ROOM 8' 6" x 10' 5" (2.59m x 3.18m)
TENURE: We have been informed by our Vendor that the lease FOR THE PROPERTY has approximately 150 years remaining.
SERVICE CHARGE: We have been informed by our Vendor that the service charge is £2269.25 per annum.
GROUND RENT: We have been informed by our Vendor that the ground rent is £0.00 per annum.
COUNCIL TAX BAND: A
EPC: A
MONEY LAUNDERING REGULATIONS: Intended Buyers will be asked to produce photographic ID as well as a recent proof of address and we would ask for your cooperation in order that there will be no delay in agreeing the sale (subject to contract)
IMPORTANT NOTE TO BUYERS: Whilst we endeavour to make our sales details accurate and reliable, if there is any point which is of particular importance to you, please contact the office and we will be pleased to check the information. Do so, particularly if contemplating travelling some distance to view the property.
All measurements have been taken using a sonic / laser tape measure and therefore, may be subject to a small margin of error. All Measurements are Approximate. The mention of any appliances and/or services within these Sales Particulars does not imply they are in full and efficient working order.
Our team of highly qualified Financial Consultants can provide you with up to the minute information on many of the rates available. To arrange an appointment, telephone this office. YOUR HOME IS AT RISK IF YOU DO NOT KEEP UP REPAYMENTS ON A MORTGAGE OR OTHER LOANS SECURED ON IT. Full written quotation available on request. A suitable life policy may be required. Loans subject to status. Minimum age 18
LIVING ROOM 14' 10" x 9' 5" (4.52m x 2.87m)
KITCHEN 6' 6" x 4' 10" (1.98m x 1.47m)
BEDROOM 8' 8" x 9' 6" (2.64m x 2.9m)
BATHROOM 3' 2" x 8' 3" (0.97m x 2.51m)
ATTIC ROOM 8' 6" x 10' 5" (2.59m x 3.18m)
TENURE: We have been informed by our Vendor that the lease FOR THE PROPERTY has approximately 150 years remaining.
SERVICE CHARGE: We have been informed by our Vendor that the service charge is £2269.25 per annum.
GROUND RENT: We have been informed by our Vendor that the ground rent is £0.00 per annum.
COUNCIL TAX BAND: A
EPC: A
MONEY LAUNDERING REGULATIONS: Intended Buyers will be asked to produce photographic ID as well as a recent proof of address and we would ask for your cooperation in order that there will be no delay in agreeing the sale (subject to contract)
IMPORTANT NOTE TO BUYERS: Whilst we endeavour to make our sales details accurate and reliable, if there is any point which is of particular importance to you, please contact the office and we will be pleased to check the information. Do so, particularly if contemplating travelling some distance to view the property.
All measurements have been taken using a sonic / laser tape measure and therefore, may be subject to a small margin of error. All Measurements are Approximate. The mention of any appliances and/or services within these Sales Particulars does not imply they are in full and efficient working order.
Our team of highly qualified Financial Consultants can provide you with up to the minute information on many of the rates available. To arrange an appointment, telephone this office. YOUR HOME IS AT RISK IF YOU DO NOT KEEP UP REPAYMENTS ON A MORTGAGE OR OTHER LOANS SECURED ON IT. Full written quotation available on request. A suitable life policy may be required. Loans subject to status. Minimum age 18
Additional Information
Tenure:
Leasehold
Service Charge:
£2,296 per year
Council Tax Band:
A
Mortgage calculator
Calculate your stamp duty
Results
Stamp Duty To Pay:
Effective Rate:
| Tax Band | % | Taxable Sum | Tax |
|---|
East Cliff, Folkestone
Struggling to find a property? Get in touch and we'll help you find your ideal property.