Standout Features
- Land For Sale
- Three Plots for Sale
- Planning Permission Granted (Erewash Council Ref ERE0224/0004.)
- Three, 2.5 Storey Four Bedrooms Homes
- Individually Designed
- 2 Parking spaces for each plot
- Site available for inspection
- Rare Opportunity
- EPC Available Upon Completion
- Square Footage Available Upon Completion
Property Description
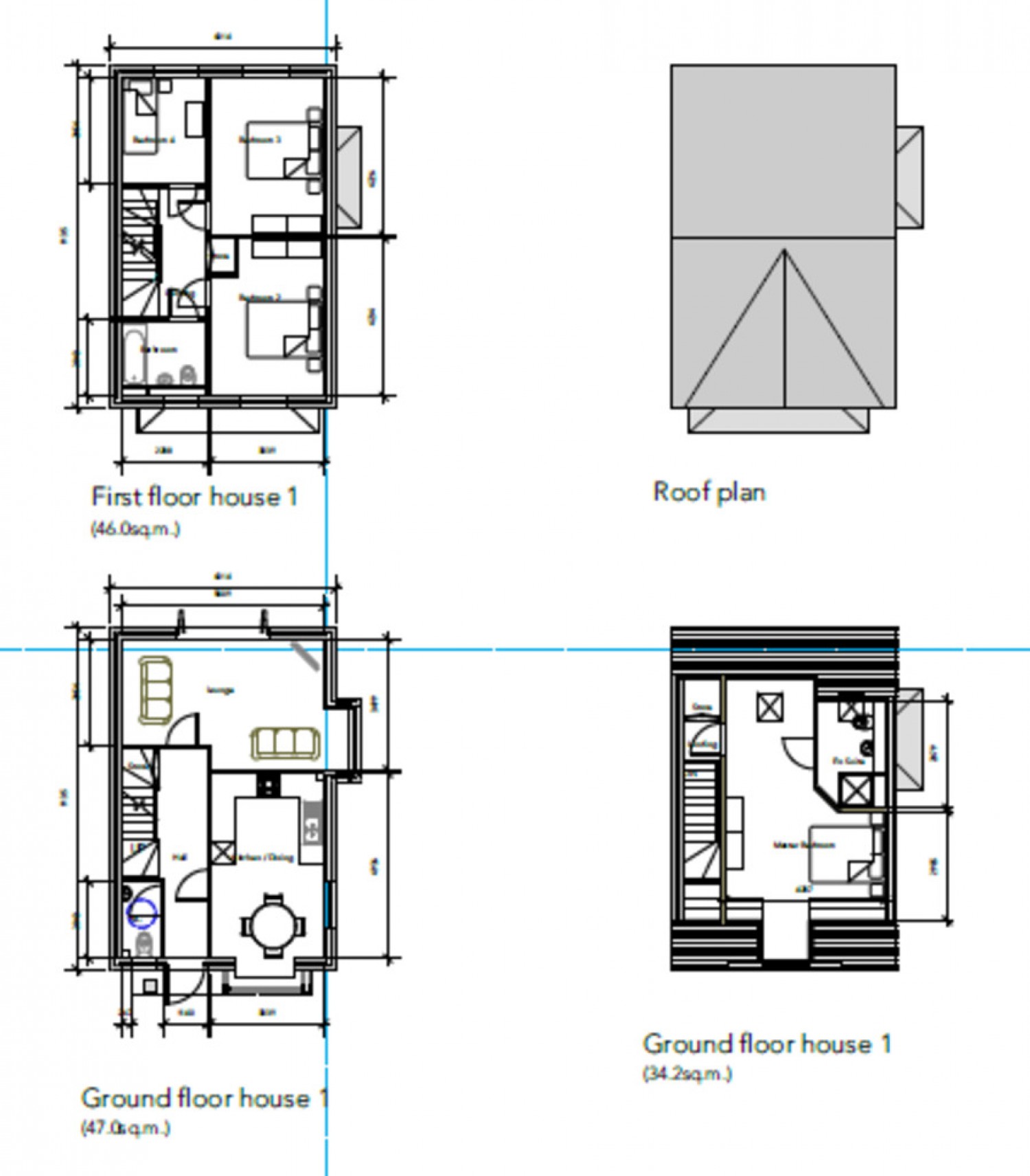
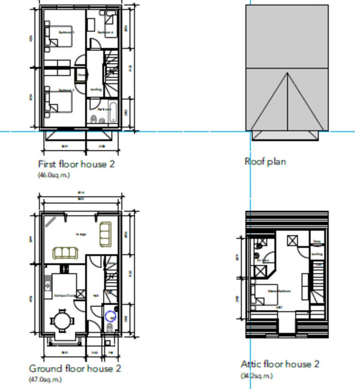
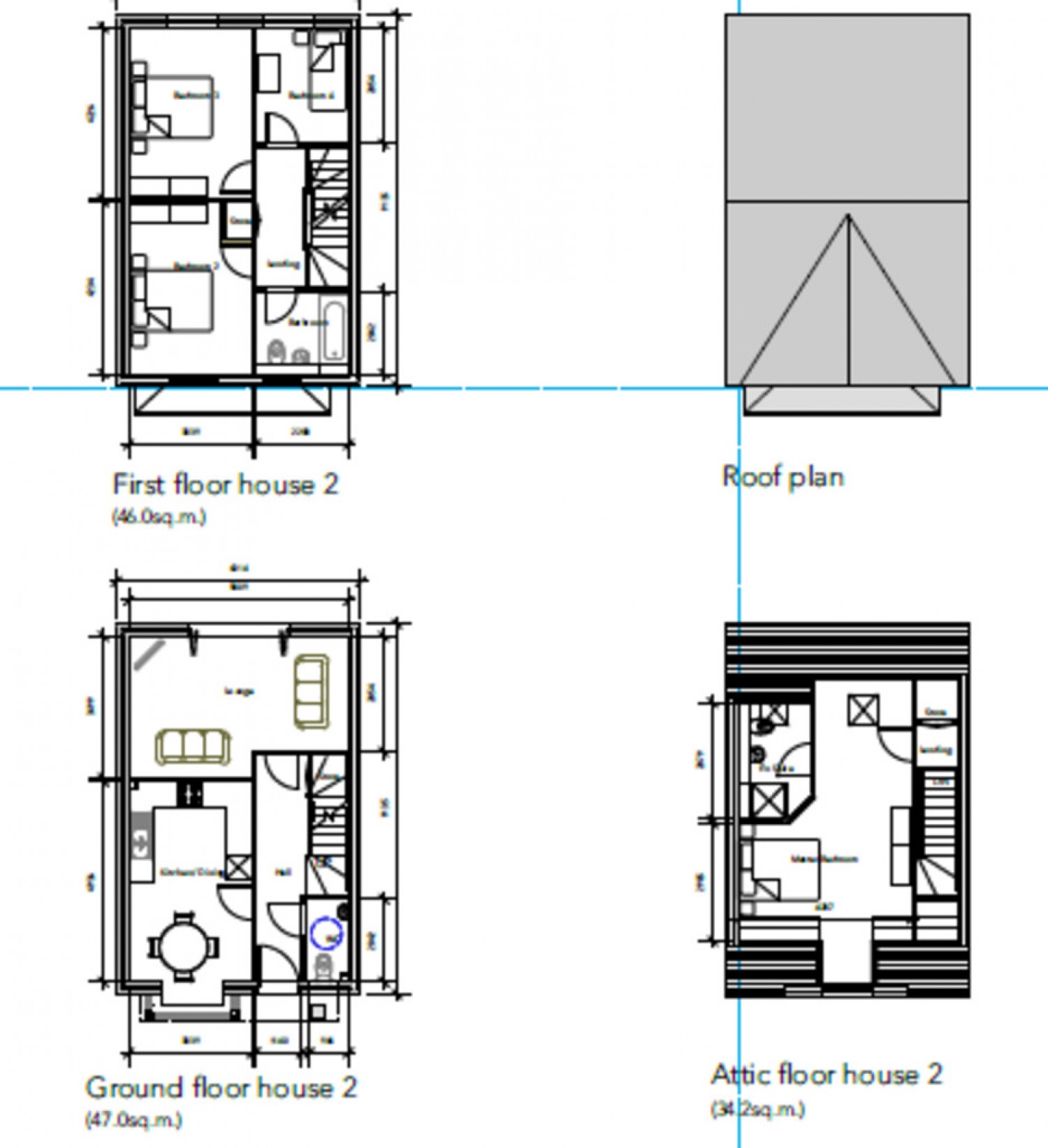
GENERAL DESCRIPTION A development site on which to build three additional dwellings (Plot 4 has already been built) comprising of three 4 bedroom 2.5 storey detached properties which is located on Ladywood Road, Kirk Hallam, near Ilkeston, Derby.
The development on which Planning Permission has been obtained to build three detached houses with off road parking and gardens to the front and rear.
The site is situated in this established residential area which has a number of local amenities and facilities and is within easy reach of all those provided by Ilkeston as well as being only a few miles away from both Nottingham and Derby,
The land is being sold with the benefit of Planning Permission - Ref ERE0224/0004.
With accommodation set to comprise of entrance hall, downstairs w.c, kitchen/diner and lounge to the ground floor. Three Bedrooms and a family bathroom to the first floor. To complete the accommodation there is set to be a fourth bedroom to the second floor benefiting from an en-suite.
The development on which Planning Permission has been obtained to build three detached houses with off road parking and gardens to the front and rear.
The site is situated in this established residential area which has a number of local amenities and facilities and is within easy reach of all those provided by Ilkeston as well as being only a few miles away from both Nottingham and Derby,
The land is being sold with the benefit of Planning Permission - Ref ERE0224/0004.
With accommodation set to comprise of entrance hall, downstairs w.c, kitchen/diner and lounge to the ground floor. Three Bedrooms and a family bathroom to the first floor. To complete the accommodation there is set to be a fourth bedroom to the second floor benefiting from an en-suite.
Additional Information
Tenure:
Freehold
Mortgage calculator
Calculate your stamp duty
Results
Stamp Duty To Pay:
Effective Rate:
| Tax Band | % | Taxable Sum | Tax |
|---|
Kirk Hallam, Ilkeston, Derby
Struggling to find a property? Get in touch and we'll help you find your ideal property.