Magazine Road, Ashford

£1,600 PCM | Let Agreed

6 bedroom House to rent

or call 01233 666500
Let Available Date
Available: Now
Standout Features
Property Description
A Substantial 6-Bedroom Home on Magazine Road, Ashford

Located just a short walk from Ashford's town centre and all its local amenities, this impressive 6-bedroom home offers generous living spaces across three beautifully proportioned floors. With high ceilings throughout, the property exudes an inviting sense of space and light, ideal for family living.

The ground floor is designed for comfort and flexibility, with a spacious lounge featuring a stunning feature fireplace and a large bay window that floods the room with natural light. Oversized dual doors lead seamlessly into the adjoining reception room, which also boasts a charming feature fireplace. The well-equipped kitchen/diner offers ample storage, an integrated dishwasher, a range cooker with an extractor hood, and plenty of space for a dining table. At the rear of the property, you'll find a versatile additional living room, ideal as a playroom, study, or even an extra bedroom. A convenient W/C completes the ground floor layout.

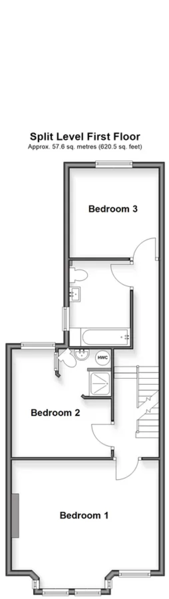
Upstairs, the first floor is home to three generously-sized double bedrooms, including one with en-suite shower room for added privacy and convenience. There is also a fully-tiled family bathroom with a shower over the bath. The second floor offers an additional three spacious double bedrooms, with a further en-suite shower room to one of these.

The property features a small, low-maintenance courtyard garden. To the rear, there is off-road parking for added convenience.

Available now.

* A holding fee equivalent to one week's rent is due upon acceptance of an application to proceed with referencing. This fee will be deducted from the outstanding balance of incoming funds upon receipt of satisfactory references. *

This property is connected to mains gas, electricity, water, and sewerage with gas central heating for added efficiency. The property holds an EPC rating of C and is in Council Tax band D. Utilities and council tax are not included in the rent.

Enjoy the benefits of full fibre broadband, available through a range of leading providers, along with reliable mobile phone coverage throughout the area.

Additional Information
Furnish Type:
Unfurnished
Council Tax Band:
D
Security Deposit:
£1,846

Magazine Road, Ashford

Struggling to find a property? Get in touch and we'll help you find your ideal property.