Let Available Date
Available: 10/06/2026
Standout Features
- Large Kitchen
- 4 Double Rooms
- Reception Room
- Bathroom
- EPC Rating D
- Double Glazing
- Gas Central Heating
- Garden
- Tax Band B
Property Description
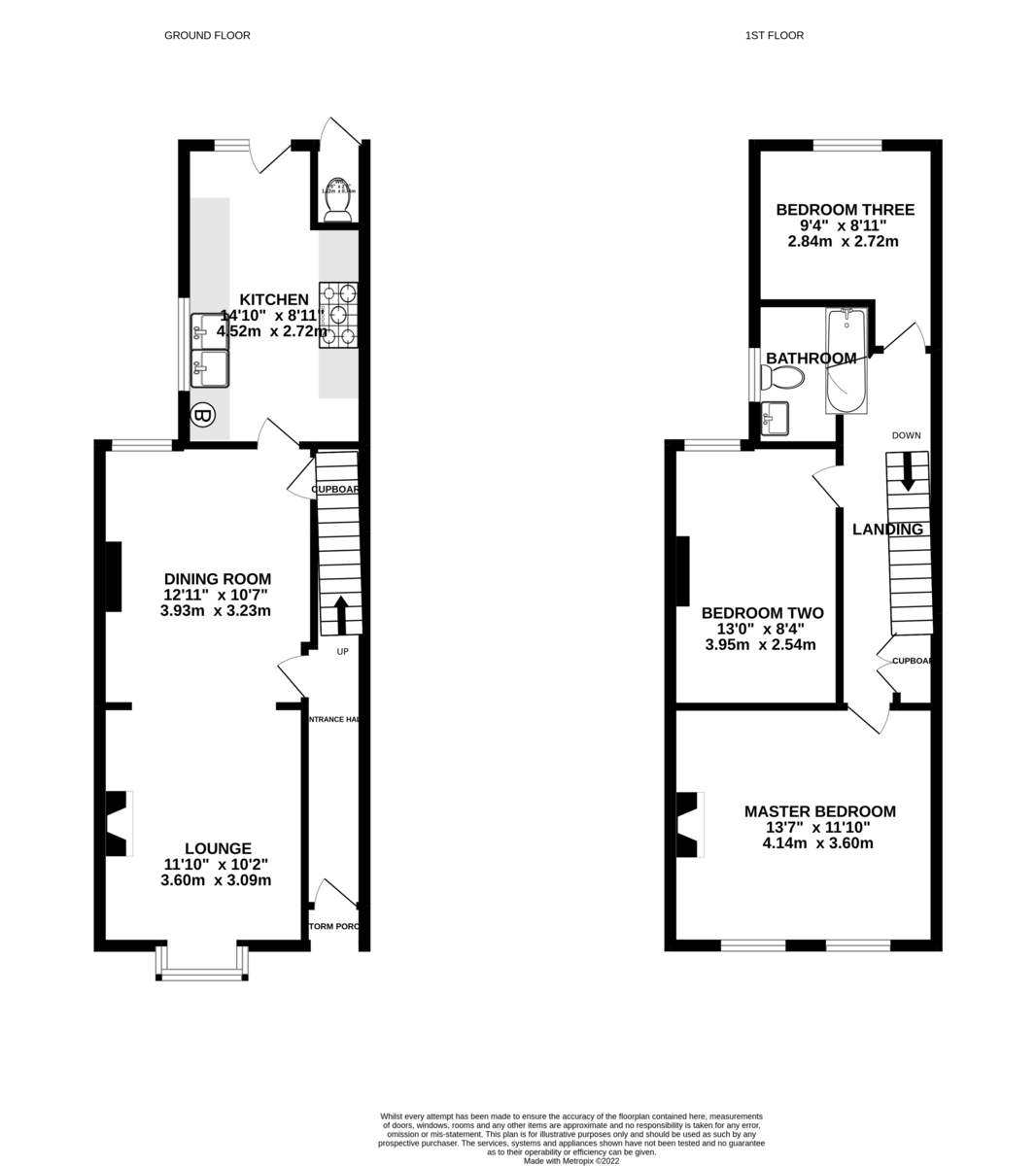
DESCRIPTION STUDENT ACCOMADATION - A spacious 4 bedroom student house within walking distance of the city centre and good access to the university and Hartpury, lounge, modern kitchen, bathroom, UPVC double glazing and gas central heating. With one double bedroom on the ground floor and 3 double bedrooms upstairs and enclosed garden to the rear. Water and internet included. Available from August 2023 Tax Band B, EPC Rating D
HALLWAY entrance hall with door to bedroom and door to the lounge
BEDROOM bay window to the front, furnished
LOUNGE window to the rear, furnished, door to the kitchen
KITCHEN a good sized kitchen with ample cupboard space and doors to the garden
LANDING doors to all rooms and the bathroom
BEDROOM window to the front furnished
BEDROOM window to the rear, furnished
BEDROOM window to the rear, furnished
BATHROOM window to the side, modern bathroom suite
GARDEN large garden split into two parts, gated side access
HALLWAY entrance hall with door to bedroom and door to the lounge
BEDROOM bay window to the front, furnished
LOUNGE window to the rear, furnished, door to the kitchen
KITCHEN a good sized kitchen with ample cupboard space and doors to the garden
LANDING doors to all rooms and the bathroom
BEDROOM window to the front furnished
BEDROOM window to the rear, furnished
BEDROOM window to the rear, furnished
BATHROOM window to the side, modern bathroom suite
GARDEN large garden split into two parts, gated side access
Additional Information
Furnish Type:
Part Furnished
Council Tax Band:
B
Security Deposit:
£1,903
Deans Walk, Kingsholm , Gloucester
Struggling to find a property? Get in touch and we'll help you find your ideal property.