Let Available Date
Available: 29/07/2026
Standout Features
- Three Bed Family Home
- Spacious & Light
- Modern Kitchen
- Spacious Reception Room
- Front & Back Gardens
- Garage (Short Walk From The House)
- Popular Location
- Council Tax Band - C
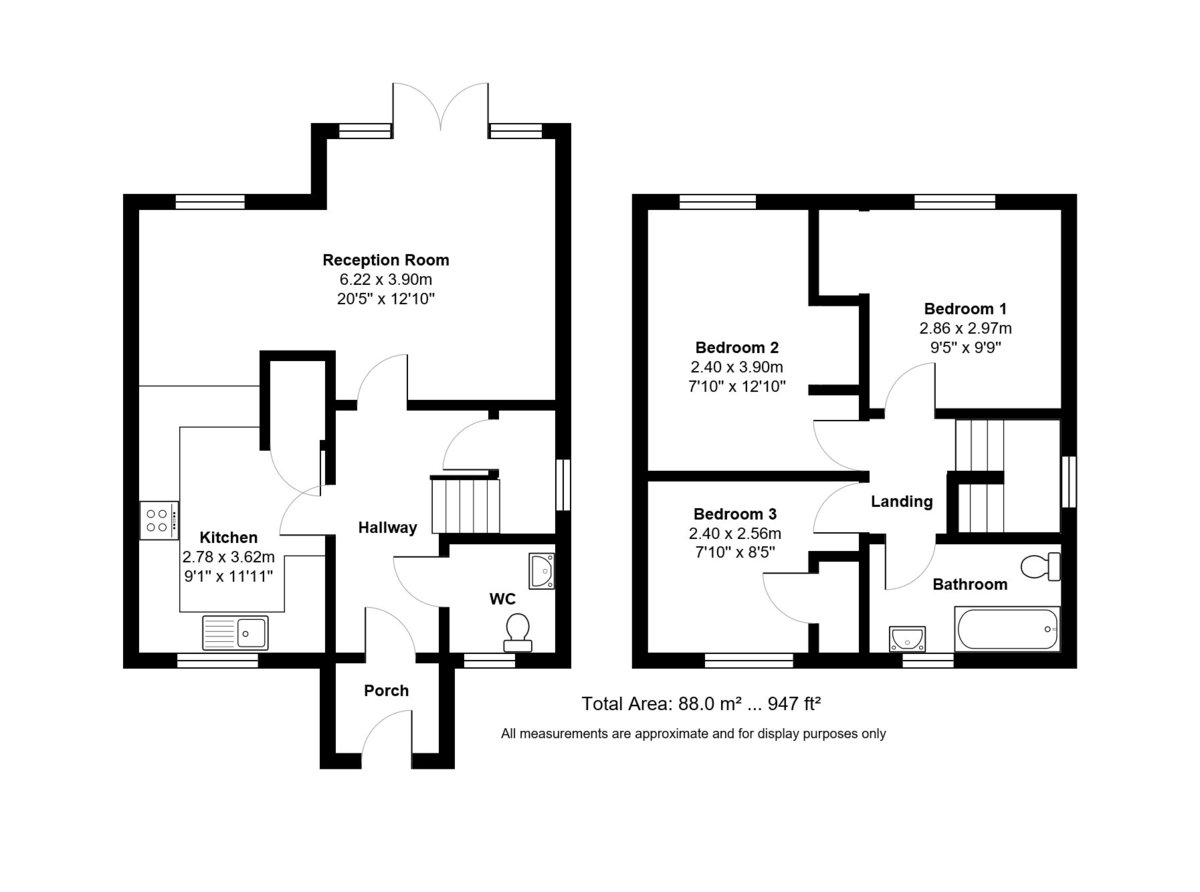
Property Description
This spacious and well presented semi-detached family home is located close to the centre of the popular village of Histon giving quick & easy access to an abundance of local amenities, the A14, Cambridge city centre and the surrounding villages.
In brief the property comprises the following:
entrance hall; guest w/c; modern, semi-open-plan kitchen with appliances to include fridge, freezer, double oven & hob, and dishwasher; generous reception room with dining area and French doors to the garden; three bedrooms; and a three piece family bathroom suite with shower over bath.
Outside there is generous front garden, and a back garden, mostly laid to lawn and with rear access.
Additional benefits include an entrance porch, gas central heating and a garage which is a short walk away from the house.
Unfurnished.
In brief the property comprises the following:
entrance hall; guest w/c; modern, semi-open-plan kitchen with appliances to include fridge, freezer, double oven & hob, and dishwasher; generous reception room with dining area and French doors to the garden; three bedrooms; and a three piece family bathroom suite with shower over bath.
Outside there is generous front garden, and a back garden, mostly laid to lawn and with rear access.
Additional benefits include an entrance porch, gas central heating and a garage which is a short walk away from the house.
Unfurnished.
Additional Information
Furnish Type:
Unfurnished
Council Tax Band:
C
Security Deposit:
£1,785
Narrow Lane
Struggling to find a property? Get in touch and we'll help you find your ideal property.