Standout Features
- West-End Location
- 6 Bedroom, Detached House
- 2 Garages
- Well maintained garden
- Wood burning stoves
- LARN: 1905074
Property Description
BRAVO FOR BRAEMAR! Click on VIRTUAL TOUR! Welcome to this stunning 6-bedroom detached family home, exquisitely presented and is available for sale. Nestled in the highly sought-after Broomhill area, this property offers an ideal blend of luxury and convenience, making it perfect for a young professional couple or family.
Key Features:
- Spacious Bedrooms: Six generously sized bedrooms, providing ample space for family and guests.
- Elegant Living Spaces: Beautifully furnished living areas designed for comfort and style, perfect for both relaxing and entertaining.
- Modern Kitchen: A fully equipped, contemporary kitchen with high-end appliances, ideal for preparing family meals and hosting gatherings.
- Stylish Bathrooms: Well-appointed bathrooms with modern fixtures and finishes, ensuring comfort and convenience.
- Ample Storage: Plenty of storage throughout the property, including built-in wardrobes and additional storage solutions.
- Outdoor Space: A private garden area, perfect for outdoor activities and enjoying the fresh air.
- Parking: Off-street parking available, providing ease and security for your vehicles. 2 Garages
Location:
- Prime Location: Situated in the desirable Broomhill area, this property is close to the city centre, easy access to Broomhill Primary school, also offering easy access to a variety of shops, restaurants, and entertainment options.
- Convenient Commute: Ideally located for professionals working in the Tullus and Altens industrial estates, with excellent transport links nearby.
- Family-Friendly: Proximity to reputable schools, parks, and recreational facilities, making it an excellent choice for families.
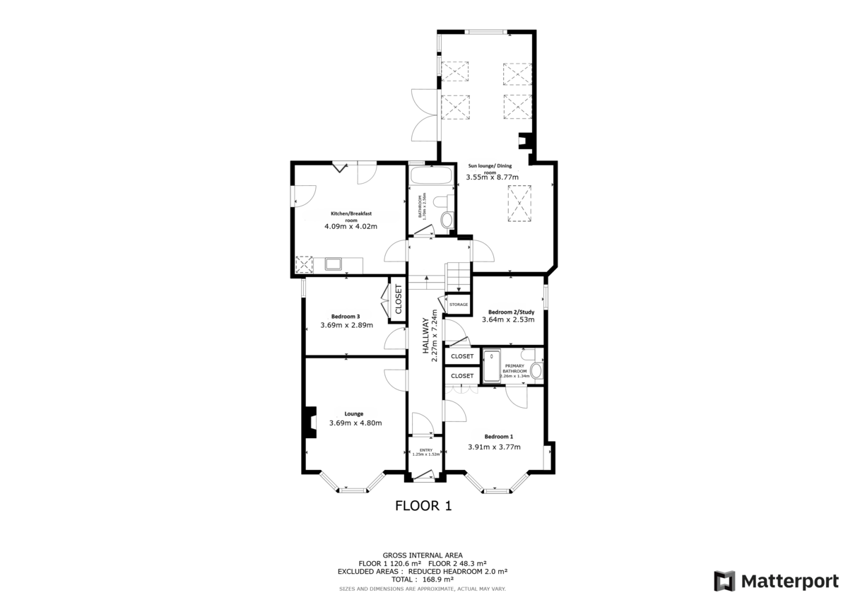
LOUNGE The living room is generously sized and bathed in natural light, thanks to the traditional double glazed bay windows that create a bright and inviting atmosphere. The space is elegantly completed with rich hardwood flooring and soothing soft grey wall tones, offering a perfect blend of modern comfort and classic charm. A standout feature of the room is the functioning wood burning stove, which not only adds warmth but also serves as a beautiful focal point, ideal for cosy evenings and gatherings.
BEDROOM 1 Double bedroom is elegantly equipped with mirrored sliding wardrobes. Large bay windows flood the room with natural light, creating a bright and welcoming environment. This bedroom also features a modern en suite, tastefully decorated in neutral tones. The en suite includes a sleek shower cubicle, a vanity unit with storage, a wall-hung sink, and an integrated toilet, offering both functionality and style.
BEDROOM 2/ STUDY This well-proportioned single bedroom offers versatile use as a home office, making it perfect for today's work-from-home lifestyle. Integrated storage solutions maximize the space, keeping the room tidy and organized. The décor features soothing grey wall tones and plush grey carpeted floors, creating a cosy and professional atmosphere conducive to both relaxation and work.
BEDROOM 3 This spacious double bedroom boasts a tall window that floods the room with natural light, enhancing its airy and open feel. The room is elegantly finished with beige carpeted flooring, providing a warm and inviting ambiance. Integrated wardrobes offer ample storage space, ensuring the room remains clutter-free and organized. The combination of natural light, soft carpeting, and smart storage solutions makes this bedroom a perfect retreat for relaxation and comfort.
KITCHEN/BREAKFAST ROOM This beautiful modern kitchen is a culinary enthusiast's dream, featuring sleek grey and white matt cabinets that provide a contemporary and stylish look. The kitchen is equipped with a dual sink, dual ovens, fridge/ freezer and an integrated dishwasher, ensuring top-tier functionality for all your cooking and cleaning needs.
A large island serves as the centrepiece, boasting an integrated induction hob and doubling as a breakfast bar that comfortably seats up to four people. Additional cabinets at the end of the kitchen offer fantastic storage facilities, keeping the space organized and clutter-free. Sliding bi-fold patio doors open to the garden patio, making this kitchen perfect for entertaining and seamlessly blending indoor and outdoor living. Adjacent to the kitchen is an integrated garage with a utility room, providing extra convenience and practicality. This space truly combines modern design with exceptional functionality, making it the heart of the home.
BATHROOM This modern family bathroom is designed for both style and comfort, featuring a gas mains shower over a spacious bath. The integrated vanity unit includes a wall-hung sink and toilet, creating a sleek and cohesive look. The bathroom is elegantly finished with black and white aqua panelled surrounds and tiled flooring, enhanced by the luxury of underfloor heating. A large window provides ample natural light, making the space bright and inviting. This bathroom combines contemporary design elements with practical features, offering a serene and functional environment for the entire family.
SUN LOUNGE/ DINING ROOM This impressive secondary living/dining room is part of a well-designed extension, offering a fantastic space for both entertaining and relaxation. The dining area is spacious and features elegant hardwood flooring and modern grey wall décor. A skylight floods the area with natural light, creating a bright and inviting atmosphere. Extensive dining area perfect for family meals and gatherings. Leading off the dining area, the beautiful living area is a cosy retreat. It boasts patio doors that open to the garden, along with two large, double-glazed windows, ensuring an abundance of natural light throughout the day. The living area continues the theme of hardwood flooring and neutral décor, providing a serene and stylish environment. It comes complete with a beautiful wood burning stove making it an ideal spot for relaxation and casual entertaining.
BEDROOM 4 On the first floor, you will find a charming double bedroom that exudes comfort and style. The room features soft pale green tones on the walls, complemented by grey carpeted flooring, creating a tranquil and inviting atmosphere. Integrated cubby holes offer convenient storage solutions, ample space for additional free-standing furniture which would provide flexibility and functionality. Large windows allow plenty of natural light to fill the room, enhancing its spacious and airy feel. This bedroom is the perfect blend of modern design and practical living.
BEDROOM 5 This room offers a lovely view of the exterior garden and side of the premises, adding to its appeal. Integrated mirrored wardrobes line one wall, offering excellent storage facilities while maintaining the room's clean and modern aesthetic. The decor features soothing pale blue tones on the walls, complemented by plush grey carpeted flooring, creating a serene and calming atmosphere.
Large windows in the room ensure ample natural light, enhancing the brightness and openness of the space. A room designed for comfort and relaxation, making it a delightful retreat within the home.
BEDROOM 6 This room is elegantly decorated in neutral tones, creating a serene and versatile space that easily complements various styles of furniture and décor. The room features plush grey carpeted flooring, adding warmth and comfort to the ambiance. Two large windows allow abundant natural light to fill the room, making it feel bright and airy throughout the day. This natural light enhances the neutral colour scheme, creating a welcoming atmosphere.
BATHROOM This family wet room is designed for both functionality and style, offering a modern and luxurious bathing experience. It features:
- Walk-In Shower: Equipped with a spacious walk-in shower area, providing convenience and ease of access.
- Wall-Hung Toilet: A sleek and contemporary wall-hung toilet, maximizing floor space and enhancing the room's clean aesthetic.
- Wall-Hung Sink: Complemented by a wall-hung sink, adding to the room's modern and minimalist design.
- Heated Towel Rail: Ensures warm towels and adds comfort to the room.
- Detailed Splashback Panel: Enhances the decor with its intricate design, providing a stylish focal point.
- Beige Tiled Flooring: Offers durability and elegance, complementing the overall design scheme.
This wet room combines practical features with thoughtful design elements, creating a sophisticated and functional space for the whole family to enjoy.
REAR GARDEN The property boasts a beautifully maintained and generously proportioned rear garden, offering an ideal balance of lawn and outdoor entertaining space. A large, level lawn stretches the length of the garden, bordered by mature planting, shrubs, and established trees, creating a private and peaceful setting.
To the rear, a dedicated children's play area features a timber playhouse with slide and swings, making it perfect for families. The garden is fully enclosed, with hedging and fencing providing a good degree of privacy.
Immediately adjacent to the house is a substantial paved patio terrace, ideal for al fresco dining and entertaining. This area enjoys direct access from the home via glazed doors, creating a seamless indoor-outdoor flow. A charming, self-contained garden room with skylights and French doors offers excellent versatility-perfect as a home office, studio, or additional relaxation space.
Overall, the garden is thoughtfully arranged, well cared for, and suited to both family living and entertaining.
Key Features:
- Spacious Bedrooms: Six generously sized bedrooms, providing ample space for family and guests.
- Elegant Living Spaces: Beautifully furnished living areas designed for comfort and style, perfect for both relaxing and entertaining.
- Modern Kitchen: A fully equipped, contemporary kitchen with high-end appliances, ideal for preparing family meals and hosting gatherings.
- Stylish Bathrooms: Well-appointed bathrooms with modern fixtures and finishes, ensuring comfort and convenience.
- Ample Storage: Plenty of storage throughout the property, including built-in wardrobes and additional storage solutions.
- Outdoor Space: A private garden area, perfect for outdoor activities and enjoying the fresh air.
- Parking: Off-street parking available, providing ease and security for your vehicles. 2 Garages
Location:
- Prime Location: Situated in the desirable Broomhill area, this property is close to the city centre, easy access to Broomhill Primary school, also offering easy access to a variety of shops, restaurants, and entertainment options.
- Convenient Commute: Ideally located for professionals working in the Tullus and Altens industrial estates, with excellent transport links nearby.
- Family-Friendly: Proximity to reputable schools, parks, and recreational facilities, making it an excellent choice for families.
LOUNGE The living room is generously sized and bathed in natural light, thanks to the traditional double glazed bay windows that create a bright and inviting atmosphere. The space is elegantly completed with rich hardwood flooring and soothing soft grey wall tones, offering a perfect blend of modern comfort and classic charm. A standout feature of the room is the functioning wood burning stove, which not only adds warmth but also serves as a beautiful focal point, ideal for cosy evenings and gatherings.
BEDROOM 1 Double bedroom is elegantly equipped with mirrored sliding wardrobes. Large bay windows flood the room with natural light, creating a bright and welcoming environment. This bedroom also features a modern en suite, tastefully decorated in neutral tones. The en suite includes a sleek shower cubicle, a vanity unit with storage, a wall-hung sink, and an integrated toilet, offering both functionality and style.
BEDROOM 2/ STUDY This well-proportioned single bedroom offers versatile use as a home office, making it perfect for today's work-from-home lifestyle. Integrated storage solutions maximize the space, keeping the room tidy and organized. The décor features soothing grey wall tones and plush grey carpeted floors, creating a cosy and professional atmosphere conducive to both relaxation and work.
BEDROOM 3 This spacious double bedroom boasts a tall window that floods the room with natural light, enhancing its airy and open feel. The room is elegantly finished with beige carpeted flooring, providing a warm and inviting ambiance. Integrated wardrobes offer ample storage space, ensuring the room remains clutter-free and organized. The combination of natural light, soft carpeting, and smart storage solutions makes this bedroom a perfect retreat for relaxation and comfort.
KITCHEN/BREAKFAST ROOM This beautiful modern kitchen is a culinary enthusiast's dream, featuring sleek grey and white matt cabinets that provide a contemporary and stylish look. The kitchen is equipped with a dual sink, dual ovens, fridge/ freezer and an integrated dishwasher, ensuring top-tier functionality for all your cooking and cleaning needs.
A large island serves as the centrepiece, boasting an integrated induction hob and doubling as a breakfast bar that comfortably seats up to four people. Additional cabinets at the end of the kitchen offer fantastic storage facilities, keeping the space organized and clutter-free. Sliding bi-fold patio doors open to the garden patio, making this kitchen perfect for entertaining and seamlessly blending indoor and outdoor living. Adjacent to the kitchen is an integrated garage with a utility room, providing extra convenience and practicality. This space truly combines modern design with exceptional functionality, making it the heart of the home.
BATHROOM This modern family bathroom is designed for both style and comfort, featuring a gas mains shower over a spacious bath. The integrated vanity unit includes a wall-hung sink and toilet, creating a sleek and cohesive look. The bathroom is elegantly finished with black and white aqua panelled surrounds and tiled flooring, enhanced by the luxury of underfloor heating. A large window provides ample natural light, making the space bright and inviting. This bathroom combines contemporary design elements with practical features, offering a serene and functional environment for the entire family.
SUN LOUNGE/ DINING ROOM This impressive secondary living/dining room is part of a well-designed extension, offering a fantastic space for both entertaining and relaxation. The dining area is spacious and features elegant hardwood flooring and modern grey wall décor. A skylight floods the area with natural light, creating a bright and inviting atmosphere. Extensive dining area perfect for family meals and gatherings. Leading off the dining area, the beautiful living area is a cosy retreat. It boasts patio doors that open to the garden, along with two large, double-glazed windows, ensuring an abundance of natural light throughout the day. The living area continues the theme of hardwood flooring and neutral décor, providing a serene and stylish environment. It comes complete with a beautiful wood burning stove making it an ideal spot for relaxation and casual entertaining.
BEDROOM 4 On the first floor, you will find a charming double bedroom that exudes comfort and style. The room features soft pale green tones on the walls, complemented by grey carpeted flooring, creating a tranquil and inviting atmosphere. Integrated cubby holes offer convenient storage solutions, ample space for additional free-standing furniture which would provide flexibility and functionality. Large windows allow plenty of natural light to fill the room, enhancing its spacious and airy feel. This bedroom is the perfect blend of modern design and practical living.
BEDROOM 5 This room offers a lovely view of the exterior garden and side of the premises, adding to its appeal. Integrated mirrored wardrobes line one wall, offering excellent storage facilities while maintaining the room's clean and modern aesthetic. The decor features soothing pale blue tones on the walls, complemented by plush grey carpeted flooring, creating a serene and calming atmosphere.
Large windows in the room ensure ample natural light, enhancing the brightness and openness of the space. A room designed for comfort and relaxation, making it a delightful retreat within the home.
BEDROOM 6 This room is elegantly decorated in neutral tones, creating a serene and versatile space that easily complements various styles of furniture and décor. The room features plush grey carpeted flooring, adding warmth and comfort to the ambiance. Two large windows allow abundant natural light to fill the room, making it feel bright and airy throughout the day. This natural light enhances the neutral colour scheme, creating a welcoming atmosphere.
BATHROOM This family wet room is designed for both functionality and style, offering a modern and luxurious bathing experience. It features:
- Walk-In Shower: Equipped with a spacious walk-in shower area, providing convenience and ease of access.
- Wall-Hung Toilet: A sleek and contemporary wall-hung toilet, maximizing floor space and enhancing the room's clean aesthetic.
- Wall-Hung Sink: Complemented by a wall-hung sink, adding to the room's modern and minimalist design.
- Heated Towel Rail: Ensures warm towels and adds comfort to the room.
- Detailed Splashback Panel: Enhances the decor with its intricate design, providing a stylish focal point.
- Beige Tiled Flooring: Offers durability and elegance, complementing the overall design scheme.
This wet room combines practical features with thoughtful design elements, creating a sophisticated and functional space for the whole family to enjoy.
REAR GARDEN The property boasts a beautifully maintained and generously proportioned rear garden, offering an ideal balance of lawn and outdoor entertaining space. A large, level lawn stretches the length of the garden, bordered by mature planting, shrubs, and established trees, creating a private and peaceful setting.
To the rear, a dedicated children's play area features a timber playhouse with slide and swings, making it perfect for families. The garden is fully enclosed, with hedging and fencing providing a good degree of privacy.
Immediately adjacent to the house is a substantial paved patio terrace, ideal for al fresco dining and entertaining. This area enjoys direct access from the home via glazed doors, creating a seamless indoor-outdoor flow. A charming, self-contained garden room with skylights and French doors offers excellent versatility-perfect as a home office, studio, or additional relaxation space.
Overall, the garden is thoughtfully arranged, well cared for, and suited to both family living and entertaining.
Additional Information
Tenure:
Freehold
Council Tax Band:
F
Mortgage calculator
Calculate your stamp duty
Results
Stamp Duty To Pay:
Effective Rate:
| Tax Band | % | Taxable Sum | Tax |
|---|
Braemar Place, Aberdeen
Struggling to find a property? Get in touch and we'll help you find your ideal property.