Standout Features
- TRADITIONAL TOWN HOUSE
- SPACIOUS RECEPTION ROOMS
- SOUTH FACING COURTYARD GARDEN
- FOUR DOUBLE BEDROOMS & ONE SINGLE
- CLOSE TO AMENITIES
Property Description
Garland Place forms a small row of slightly elevated, Cornish stone houses, set back from the road by courtyard gardens and accessed via a short run of steps. Number 1 has a secluded position, with the entrance tucked away on the left hand side.
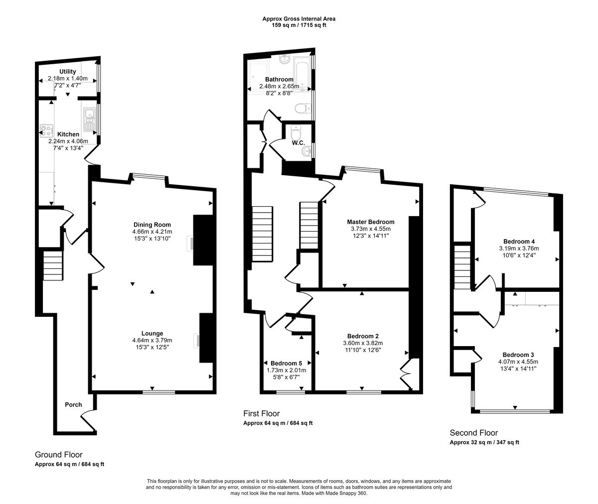
There is a useful storage area for coats immediately as you come into the porch and then a hallway with a decorative ceiling arch leads you past the interconnecting lounge and dining room to the kitchen at the rear.
The lounge and dining rooms have excellent space with some lovely traditional features, joined by a wide archway which spans almost the entire width of the rooms. There are two decorative fireplaces with arched alcoves either side, original shutters to the sash window at the front as well as picture rails. The rear window has a pleasant southerly outlook into the enclosed courtyard garden.
The kitchen is 'galley style' with a utility area at the far end and a range of wall and base units providing plenty of storage. There is an integrated double oven and gas hob, and spaces for a washing machine, dryer and fridge freezer. There is also a gas combi boiler. A door leads out from the kitchen to a rear enclosed courtyard which has a southerly aspect that catches the sun, providing a lovely sheltered area to sit outside.
Stairs lead up to the half landing which leads to a large family bathroom which has a bath and a separate shower cubicle. There is also a second, separate WC adjacent. There are two large double bedrooms and a small single bedroom on the first floor, and then on the second floor there are two more double bedrooms with built in storage areas in the converted loft. The top floor rooms have some lovely far-reaching countryside views and lots of natural light provided by wide picture windows. The staircase is another lovely feature of this property with a turned oak handrail spanning all three floors.
EPC - D
Council Tax Band C
Gas Central Heating and Hot Water
Freehold
Mains Gas, Electricity, Water and Sewage
No Allocated Parking
Courtyard Garden
LOCATION :
Garland Place is located towards the upper end of Helston Road in the centre of Penryn. Conveniently just 0.3 miles to Penryn Train Station and 0.2 miles to the Spar on Lower Market Street. Penryn has an active community and good everyday facilities, including a primary and secondary school, plus Lidl, Sainsbury's and Asda supermarkets. The town benefits from good communication links with Falmouth via its bus service and train station, which links Truro City and mainline London Paddington. The centre of this historic harbourside town hosts a variety of interesting independent shops, cafes and amenities along with numerous historic pubs nestled amongst its cobbled streets. The south Cornish coast offers fabulous sea swimming, paddle boarding and hiking trails just a stone's throw away with numerous beaches dotted along the coast around Falmouth. In nearby Falmouth there is an even wider variety of shops, amenities and nightlife plus a rich program of cultural events throughout the year.
There is a useful storage area for coats immediately as you come into the porch and then a hallway with a decorative ceiling arch leads you past the interconnecting lounge and dining room to the kitchen at the rear.
The lounge and dining rooms have excellent space with some lovely traditional features, joined by a wide archway which spans almost the entire width of the rooms. There are two decorative fireplaces with arched alcoves either side, original shutters to the sash window at the front as well as picture rails. The rear window has a pleasant southerly outlook into the enclosed courtyard garden.
The kitchen is 'galley style' with a utility area at the far end and a range of wall and base units providing plenty of storage. There is an integrated double oven and gas hob, and spaces for a washing machine, dryer and fridge freezer. There is also a gas combi boiler. A door leads out from the kitchen to a rear enclosed courtyard which has a southerly aspect that catches the sun, providing a lovely sheltered area to sit outside.
Stairs lead up to the half landing which leads to a large family bathroom which has a bath and a separate shower cubicle. There is also a second, separate WC adjacent. There are two large double bedrooms and a small single bedroom on the first floor, and then on the second floor there are two more double bedrooms with built in storage areas in the converted loft. The top floor rooms have some lovely far-reaching countryside views and lots of natural light provided by wide picture windows. The staircase is another lovely feature of this property with a turned oak handrail spanning all three floors.
EPC - D
Council Tax Band C
Gas Central Heating and Hot Water
Freehold
Mains Gas, Electricity, Water and Sewage
No Allocated Parking
Courtyard Garden
LOCATION :
Garland Place is located towards the upper end of Helston Road in the centre of Penryn. Conveniently just 0.3 miles to Penryn Train Station and 0.2 miles to the Spar on Lower Market Street. Penryn has an active community and good everyday facilities, including a primary and secondary school, plus Lidl, Sainsbury's and Asda supermarkets. The town benefits from good communication links with Falmouth via its bus service and train station, which links Truro City and mainline London Paddington. The centre of this historic harbourside town hosts a variety of interesting independent shops, cafes and amenities along with numerous historic pubs nestled amongst its cobbled streets. The south Cornish coast offers fabulous sea swimming, paddle boarding and hiking trails just a stone's throw away with numerous beaches dotted along the coast around Falmouth. In nearby Falmouth there is an even wider variety of shops, amenities and nightlife plus a rich program of cultural events throughout the year.
Additional Information
Tenure:
Freehold
Council Tax Band:
C
Mortgage calculator
Calculate your stamp duty
Results
Stamp Duty To Pay:
Effective Rate:
| Tax Band | % | Taxable Sum | Tax |
|---|
Garland Place
Struggling to find a property? Get in touch and we'll help you find your ideal property.