Standout Features
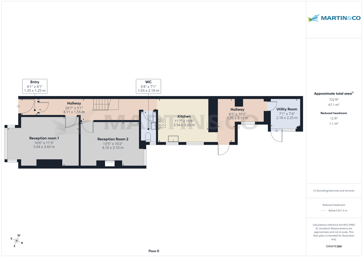
- 1,284 sq ft of floor space
- Two large reception rooms
- Two feature fireplaces
- 4 large bedrooms
- Downstairs WC
- Separate Utility Room
- Great rental opportunity
- Fantastic potential
Property Description
Substantial four bedroom terraced property - Prime investment opportunity with strong yield potential
Located in a popular residential area of Blackpool, Westmorland Avenue is a spacious four-bedroom terraced property extending to 1,284 sq ft, offering exceptional scope for renovation and value enhancement.
Requiring full modernisation throughout, this property presents a fantastic opportunity for investors or developers seeking to create a high-yield rental asset. Once refurbished, the property is expected to achieve an approximate 9% rental yield, subject to works and market conditions.
Internally, the home offers a generous layout including two large reception rooms, a tiled porch entrance, downstairs WC and a separate utility room. The property also benefits from gas central heating and retains character features such as two fireplaces, providing a solid foundation for refurbishment.
Westmorland Avenue is within walking distance of local bus and train stations, offering excellent connectivity to Blackpool town centre, the promenade, and surrounding areas. The property's proximity to transport links and amenities enhances its appeal for future tenants.
This is a rare opportunity to acquire a large, renovation-ready property in a strong rental area, with clear potential to add value and maximise returns.
Early viewing is strongly recommended.
Located in a popular residential area of Blackpool, Westmorland Avenue is a spacious four-bedroom terraced property extending to 1,284 sq ft, offering exceptional scope for renovation and value enhancement.
Requiring full modernisation throughout, this property presents a fantastic opportunity for investors or developers seeking to create a high-yield rental asset. Once refurbished, the property is expected to achieve an approximate 9% rental yield, subject to works and market conditions.
Internally, the home offers a generous layout including two large reception rooms, a tiled porch entrance, downstairs WC and a separate utility room. The property also benefits from gas central heating and retains character features such as two fireplaces, providing a solid foundation for refurbishment.
Westmorland Avenue is within walking distance of local bus and train stations, offering excellent connectivity to Blackpool town centre, the promenade, and surrounding areas. The property's proximity to transport links and amenities enhances its appeal for future tenants.
This is a rare opportunity to acquire a large, renovation-ready property in a strong rental area, with clear potential to add value and maximise returns.
Early viewing is strongly recommended.
Additional Information
Tenure:
Freehold
Council Tax Band:
A
Mortgage calculator
Calculate your stamp duty
Results
Stamp Duty To Pay:
Effective Rate:
| Tax Band | % | Taxable Sum | Tax |
|---|
Westmorland Avenue, Blackpool
Struggling to find a property? Get in touch and we'll help you find your ideal property.