Mustow Street, Bury St Edmunds

Offers in excess of £375,000 | Available

4 bedroom House For Sale

or call 01284 701511
Standout Features
Property Description
Prepare to be impressed by this deceptively spacious, TARDIS-like modern terrace home perfectly placed on the edge of Angel Hill and the Medieval Grid-an unbeatable blend of style and central living. Step into a bright hall with cloakroom before the wow-factor open-plan kitchen/dining/living space unfolds, complete with bifolding doors spilling out to the garden. Triple-glazed front windows elevate comfort and quiet. Enjoy three generous first-floor bedrooms and a sleek family bathroom, topped by a stunning master suite with a Velux framing a show-stopping Cathedral view. The low-maintenance, private garden backing onto Abbey Gardens adds true lifestyle appeal. Homes like this rarely come up-act fast and secure your viewing today.

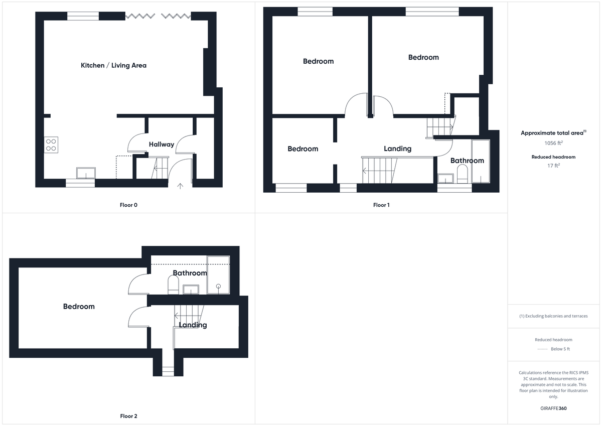
THE ACCOMMODATION COMPRISES:

FRONT DOOR OPENING TO ENTRANCE HALL: Stairs to first floor.

CLOAKROOM: Window to front, tiled flooring, Low level WC, wash hand basin, radiator.

KITCHEN AND OPEN PLAN SEATING ARE ( REFITTED) : 20' 01" x 11' 09" (6.12m x 3.58m) 20' 04" max 12' 07" (6.2m/ .84m) x 20' 01"max, 11' 09" min (6.12m/3.58m)

Range of wall mounted units, with worksurfaces with units and pan drawers under, inset drainer with mixer tap over, integrated appliances include washing machine, fridge, freezer, built in microwave, electric hob, electric oven, window to front, laminate wood flooring, radiator.

OPEN PLAN SEATING AREA: Bi-fold doors leading out to courtyard garden, laminate wood flooring. TV point, 2 radiators

STAIRS TO FIRST FLOOR: Landing, window to front. Stairs to second floor

BEDROOM FOUR: 8'03" x 7' 03" (2.41m x 2.18m) Window to front, radiator.


BEDROOM THREE: 11' 05" x 11' 08" (3.48m x 3.56m) Window to rear, radiator. TV


BEDROOM TWO: 13' 00" x 11' 08" (3.96m x 3.56m) Window to rear, radiator.


BATHROOM: 6' 05" x 5' 05" (1.96m x 1.65m) Fully tiled walls, window to front, low level WC, pedestal wash hand basin, panel bath waterfall tap and dual shower over, polished porcelain tiled floor


STAIRS TO: Second floor landing, with built in storage units, ladder and loft access.

BEDROOM ONE: 14' 07" x 9' 06" (4.44m x 2.9m) With two Velux windows to rear, one with view towards Cathedral Tower, radiator.

EN SUITE SHOWER ROOM: 7' 11" x 4' 10" (2.41m x 1.47m) Low level WC, wash hand basin, drawer under, double glass shower cubicle with power rain style shower, screen and door, heated towel rail, ceramic tile floor, tiled splash backs, extractor

OUTSIDE: There is a courtyard garden, offering a good degree of privacy fully enclosed, abutting Abbey Gardens with patio area, established boarders and gate leading to side access where bins are stored.

ADDITIONAL INFORMATION: Council Tax Band: C
Local Authority: West Suffolk Council
Mains electricity, water and drains connected
Vacant possession on completion

ENERGY PERFORMANCE RATING : A full copy of the report can be obtained from the Sales Agent.

VIEWING ARRANGEMENTS: Strictly by appointment with the Sales Agent, Martin & Co please call 01284 701511 to arrange a viewing.

Additional Information
Tenure:
Freehold
Council Tax Band:
C

Mortgage calculator

Calculate your stamp duty
£
Results
Stamp Duty To Pay:
Effective Rate:
Tax Band % Taxable Sum Tax

Mustow Street, Bury St Edmunds

Struggling to find a property? Get in touch and we'll help you find your ideal property.