Standout Features
- Four-bedroom Detached villa in popular Eastern Expansion of Dunfermline
- Dining room with patio doors leading to private enclosed rear garden
- Downstairs WC
- Principal bedroom with en-suite shower room and built-in storage
- Enclosed Rear Garden
- Private driveway and single integral garage (accessed via side door)
- Close to local amenities, primary & secondary schools
- Ideal for families and a wide range of buyers
- EPC : C
- Council Tax Band Thought to be a Band : F
Property Description
PROPERTY DESCRIPTION This spacious four-bedroom detached villa is situated on a quiet cul-de-sac in the desirable Duloch Park area, part of Dunfermline's highly sought-after Eastern Expansion. Set within an executive estate, it presents an excellent opportunity for families and buyers seeking a long-term home in a popular residential setting. The location is ideal, with close proximity to a wide range of local amenities, both primary and secondary schools, and excellent access to commuter routes, public transport links, and nearby green spaces.
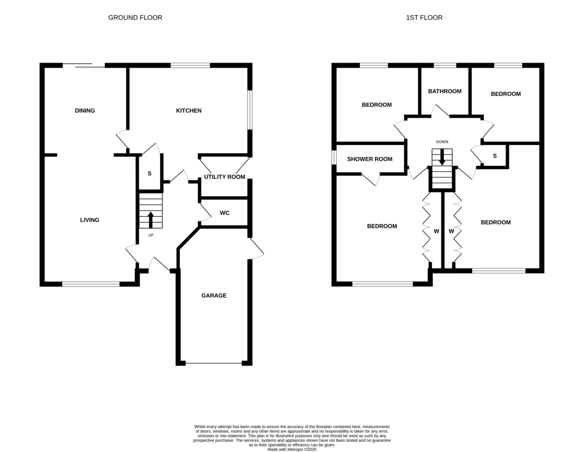
Internally, the home is presented in good condition throughout, while still offering great potential for modernisation-a perfect blank canvas for buyers to put their own stamp on the property. The ground floor features a bright and spacious lounge, which flows through to a separate dining room. Patio doors open from the dining area onto the private rear garden. The kitchen is well-equipped with a gas hob, oven, dishwasher, and fridge freezer, and leads into a practical utility room housing a washing machine and tumble dryer. The utility room also provides additional access to the rear garden. A convenient downstairs WC completes the lower level.
Upstairs, the property boasts four well-proportioned bedrooms. The principal bedroom features built-in wardrobes and a private en-suite shower room, while one of the additional bedrooms also benefits from built-in storage. A three-piece family bathroom with a shower over the bath and a hallway storage cupboard complete the upper floor, this cupboard does have potential to convert the previous boiler space into extra storage, adding further functionality to the home.
Externally, the property offers gardens to both the front and rear, a private driveway, and a single integral garage fitted with a storage rack and a compact built-in cupboard for added practicality. The rear garden is fully enclosed and includes a wooden decked area, making it the perfect spot for family gatherings, BBQs, or simply relaxing in a private outdoor space.
This is an excellent opportunity to acquire a spacious and versatile family home, quietly positioned within a peaceful cul-de-sac in one of Dunfermline's most desirable neighbourhoods. While already a fantastic property, it also offers scope for cosmetic upgrades, making it ideal for those looking to further enhance its value and appeal.
Early viewing is highly recommended to fully appreciate the space, potential, and lifestyle this lovely home has to offer.
MEASUREMENTS Living Room 3.40m x 4.60m approx.
Dining Room 3.06 x 3.05 approx.
Kitchen 4.19m x 2.95ma approx.
Utility Room 1.7m x 1.5m approx.
Bedroom One 3.44m x 3.77m approx.
En-Suite 2.45m x 0.99m approx.
Bedroom Two 2.73m x 3.27m approx.
Bedroom Three 2.96m x 2.81m approx.
Bedroom Four 2.39m x 2.94m approx.
Bathroom 1.9m x 1.7m approx.
LOCATION The property is located within Duloch area and is in walking distance of Tesco supermarket, Dobbies Garden centre and Duloch Park leisure centre all within walking distance. The location also benefits from close proximity to Calais Muir Wood, which is adjacent to Duloch Leisure Centre, offering tranquil forest walks and a peaceful natural setting right on your doorstep. Schooling of good repute is available nearby for primary and secondary education. This is an excellent commuter base as Dunfermline is located five miles from the Forth Bridges with direct road and rail links to Edinburgh, Perth and Dundee. Inverkeithing railway station, located a short drive from the property, offers frequent train services to Edinburgh Waverley, with journey times typically around 30 minutes and the fastest services taking approximately 20 minutes.
EXTRAS INCLUDED IN SALE All Floor coverings, fixtures, and fittings are included, along with appliances, which are sold as seen. The property also benefits from interlinked smoke alarms in accordance with current safety regulations, offering added peace of mind. Buyers are encouraged to carry out their own checks post-purchase to ensure continued functionality and compliance.
Internally, the home is presented in good condition throughout, while still offering great potential for modernisation-a perfect blank canvas for buyers to put their own stamp on the property. The ground floor features a bright and spacious lounge, which flows through to a separate dining room. Patio doors open from the dining area onto the private rear garden. The kitchen is well-equipped with a gas hob, oven, dishwasher, and fridge freezer, and leads into a practical utility room housing a washing machine and tumble dryer. The utility room also provides additional access to the rear garden. A convenient downstairs WC completes the lower level.
Upstairs, the property boasts four well-proportioned bedrooms. The principal bedroom features built-in wardrobes and a private en-suite shower room, while one of the additional bedrooms also benefits from built-in storage. A three-piece family bathroom with a shower over the bath and a hallway storage cupboard complete the upper floor, this cupboard does have potential to convert the previous boiler space into extra storage, adding further functionality to the home.
Externally, the property offers gardens to both the front and rear, a private driveway, and a single integral garage fitted with a storage rack and a compact built-in cupboard for added practicality. The rear garden is fully enclosed and includes a wooden decked area, making it the perfect spot for family gatherings, BBQs, or simply relaxing in a private outdoor space.
This is an excellent opportunity to acquire a spacious and versatile family home, quietly positioned within a peaceful cul-de-sac in one of Dunfermline's most desirable neighbourhoods. While already a fantastic property, it also offers scope for cosmetic upgrades, making it ideal for those looking to further enhance its value and appeal.
Early viewing is highly recommended to fully appreciate the space, potential, and lifestyle this lovely home has to offer.
MEASUREMENTS Living Room 3.40m x 4.60m approx.
Dining Room 3.06 x 3.05 approx.
Kitchen 4.19m x 2.95ma approx.
Utility Room 1.7m x 1.5m approx.
Bedroom One 3.44m x 3.77m approx.
En-Suite 2.45m x 0.99m approx.
Bedroom Two 2.73m x 3.27m approx.
Bedroom Three 2.96m x 2.81m approx.
Bedroom Four 2.39m x 2.94m approx.
Bathroom 1.9m x 1.7m approx.
LOCATION The property is located within Duloch area and is in walking distance of Tesco supermarket, Dobbies Garden centre and Duloch Park leisure centre all within walking distance. The location also benefits from close proximity to Calais Muir Wood, which is adjacent to Duloch Leisure Centre, offering tranquil forest walks and a peaceful natural setting right on your doorstep. Schooling of good repute is available nearby for primary and secondary education. This is an excellent commuter base as Dunfermline is located five miles from the Forth Bridges with direct road and rail links to Edinburgh, Perth and Dundee. Inverkeithing railway station, located a short drive from the property, offers frequent train services to Edinburgh Waverley, with journey times typically around 30 minutes and the fastest services taking approximately 20 minutes.
EXTRAS INCLUDED IN SALE All Floor coverings, fixtures, and fittings are included, along with appliances, which are sold as seen. The property also benefits from interlinked smoke alarms in accordance with current safety regulations, offering added peace of mind. Buyers are encouraged to carry out their own checks post-purchase to ensure continued functionality and compliance.
Additional Information
Tenure:
Freehold
Mortgage calculator
Calculate your stamp duty
Results
Stamp Duty To Pay:
Effective Rate:
| Tax Band | % | Taxable Sum | Tax |
|---|
Dover Park, Dunfermline
Struggling to find a property? Get in touch and we'll help you find your ideal property.