Standout Features
- Three Bed Victorian Terrace
- Freshly Decorated Throughout
- Popular & Convenient Romsey Location
- Spacious Sitting / Dining Room
- Freehold
- Ground Floor Shower Room
- Courtyard Garden With rear Access
- Council Tax Band - C
Property Description
Selling with no onward chain this excellent three bedroom mid terraced home on Thoday Street occupies a popular & highly convenient location in Romsey Town just off Mill Road, giving quick & easy access to the many local amenities on Mill Road itself, Cambridge railway station (1 mile approx') and the city centre (2 miles approx').
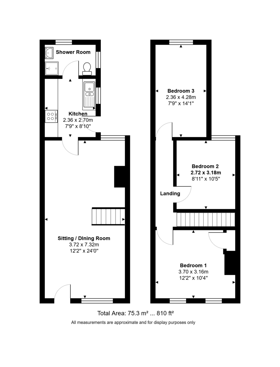
Providing comfortable and well proportioned accommodation the property comprises spacious sitting / dining room with wood floors; galley kitchen giving access to the back garden; and ground floor three piece shower room. On the first floor there is a landing; and three well proportioned bedrooms.
Additional benefits include a courtyard garden with rear access, gas central heating and of course the excellent location in addition to the property having been re-decorated throughout.
Main room sizes:
Sitting / dining room: 12ft' 2in' x 24ft' approx'
Kitchen: 7ft' 9in' x 8ft' 10in' approx'
Bedroom 1: 12ft' 2in' x 10ft' 4in' approx'
Bedroom 2: 8ft' 11in' x 10ft' 5in' approx'
Bedroom 3: 7ft' 9in' x 14ft' 1in' approx'
Money Laundering Regulations:
In order to comply with Money Laundering Regulations, purchasers will be asked to provide photographic ID and proof of address documentation, as well as giving details of the intended source of funds. This information is required before we progress with any offer which has been agreed in principle, subject to contract. We appreciate your cooperation in order to avoid delays in proceeding with the sale.
Providing comfortable and well proportioned accommodation the property comprises spacious sitting / dining room with wood floors; galley kitchen giving access to the back garden; and ground floor three piece shower room. On the first floor there is a landing; and three well proportioned bedrooms.
Additional benefits include a courtyard garden with rear access, gas central heating and of course the excellent location in addition to the property having been re-decorated throughout.
Main room sizes:
Sitting / dining room: 12ft' 2in' x 24ft' approx'
Kitchen: 7ft' 9in' x 8ft' 10in' approx'
Bedroom 1: 12ft' 2in' x 10ft' 4in' approx'
Bedroom 2: 8ft' 11in' x 10ft' 5in' approx'
Bedroom 3: 7ft' 9in' x 14ft' 1in' approx'
Money Laundering Regulations:
In order to comply with Money Laundering Regulations, purchasers will be asked to provide photographic ID and proof of address documentation, as well as giving details of the intended source of funds. This information is required before we progress with any offer which has been agreed in principle, subject to contract. We appreciate your cooperation in order to avoid delays in proceeding with the sale.
Additional Information
Tenure:
Freehold
Council Tax Band:
C
Mortgage calculator
Calculate your stamp duty
Results
Stamp Duty To Pay:
Effective Rate:
| Tax Band | % | Taxable Sum | Tax |
|---|
Thoday Street
Struggling to find a property? Get in touch and we'll help you find your ideal property.