Minerva Way, North Hykeham, Lincoln

Guide Price £240,000 | Sold

3 bedroom House For Sale

or call 01522 503727
Standout Features
Property Description

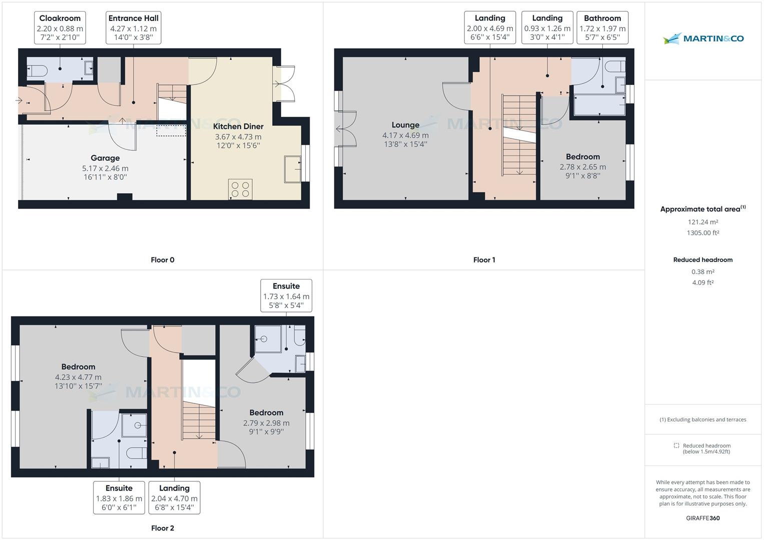
Three bedroom, three storey town house situated within a popular residential location, just off Newark Road in North Hykeham. Built in 2010, this property comprises internally of an entrance hall, cloakroom, integral garage, kitchen diner, lounge, family bathroom, three bedrooms and two ensuites. Driveway parking, front and rear gardens. Sold with no onward chain.

North Hykeham is situated to the south of Lincoln, benefitting from local schooling and amenities plus easy access to the A46 bypass.

EPC Rating - C
Council Tax Band - C
Tenure - Freehold

ENTRANCE HALL (4.27 x 1.12)

Composite entrance door onto carpet flooring with a fitted matwell, radiator, pendant fitting, Siemens thermostatic control and a shelved storage cupboard housing the mains consumer unit. Stairs rising to the first floor.

CLOAKROOM (2.20 x 0.88)

Low level WC, pedestal wash basin, vinyl flooring, radiator, light and extractor.

GARAGE (5.17 x 2.46)

Manual roller door to the front with an internal door to access the living accommodation. Light and power.

KITCHEN/DINER (3.67 x 4.73)

Base and eye level units with a roll edge worksurface, complimentary upstand, tiled splash back and an inset stainless steel sink and drainer. Double oven, electric hob with extractor over, space for a fridge freezer plus further space and plumbing for a washing machine and dishwasher. PVC window and French Doors to the rear aspect, radiator, pendant and spot lights, housed Ideal boiler and Siemens heating and hot water controls.

STAIRS / LANDING

Carpet flooring, radiator, pendant fitting and stairs rising to the second floor.

LOUNGE (4.17 x 4.69)

Carpet flooring, radiator, pendant fitting and French doors with a Juliet balcony and side panels to the front aspect.

BATHROOM (1.72 x 1.97)

Low level WC, pedestal wash basin and a panel bath with shower head and hose attachment. Vinyl flooring, PVC window to the rear aspect, radiator, spot lit ceiling and extractor.

BEDROOM (2.78 x 2.65)

PVC window to the rear aspect, pendant fitting, carpet flooring and a radiator.

STAIRS / LANDING (2.04 x 4.70)

Carpet flooring, radiator, pendant fitting, loft hatch access and an airing cupboard housing the hot water cylinder.

BEDROOM (4.23 x 4.77)

PVC windows to the front aspect, pendant fitting, carpet flooring and a radiator.

ENSUITE (1.83 x 1.86)

Low level WC, pedestal wash basin and a mains fed shower cubicle. Radiator, vinyl flooring, spot lit ceiling and an extractor.

BEDROOM (2.79 x 2.98)

PVC window to the rear aspect, pendant fitting, carpet flooring and a radiator.

ENSUITE (1.73x 1.64)

Low level WC, pedestal wash basin and a mains fed shower cubicle. Radiator, vinyl flooring, PVC window to the rear aspect, spot lit ceiling and an extractor.

OUTSIDE

To the front is a garden, laid to lawn and a block paved driveway leading to the integral garage. To the rear is an enclosed, split level garden, mainly laid to lawn with a raised deck and patio area. A garden shed is included with the sale.

FIXTURES & FITTINGS

Please Note : Items described in these particulars are included in the sale, all other items are specifically excluded. We cannot verify that they are in working order, or fit for their purpose. The buyer is advised to obtain verification from their solicitor or surveyor. Measurements shown in these particulars are approximate and as room guides only. They must not be relied upon or taken as accurate. Purchasers must satisfy themselves in this respect.


Additional Information
Tenure:
Freehold
Council Tax Band:
C

Rooms
ENTRANCE HALL
Composite entrance door onto carpet flooring with a fitted matwell, radiator, pendant fitting, Siemens thermostatic control and a shelved storage cupboard housing the mains consumer unit. Stairs rising to the first floor.
4.27 x 1.12 (14'0" x 3'8")
CLOAKROOM
Low level WC, pedestal wash basin, vinyl flooring, radiator, light and extractor.
2.20 x 0.88 (7'2" x 2'10")
GARAGE
Manual roller door to the front with an internal door to access the living accommodation. Light and power.
5.17 x 2.46 (16'11" x 8'0")
KITCHEN/DINER
Base and eye level units with a roll edge worksurface, complimentary upstand, tiled splash back and an inset stainless steel sink and drainer. Double oven, electric hob with extractor over, space for a fridge freezer plus further space and plumbing for a washing machine and dishwasher. PVC window and French Doors to the rear aspect, radiator, pendant and spot lights, housed Ideal boiler and Siemens heating and hot water controls.
3.67 x 4.73 (12'0" x 15'6")
STAIRS / LANDING
Carpet flooring, radiator, pendant fitting and stairs rising to the second floor.
LOUNGE
Carpet flooring, radiator, pendant fitting and French doors with a Juliet balcony and side panels to the front aspect.
4.17 x 4.69 (13'8" x 15'4")
BATHROOM
Low level WC, pedestal wash basin and a panel bath with shower head and hose attachment. Vinyl flooring, PVC window to the rear aspect, radiator, spot lit ceiling and extractor.
1.72 x 1.97 (5'7" x 6'5")
BEDROOM
PVC window to the rear aspect, pendant fitting, carpet flooring and a radiator.
2.78 x 2.65 (9'1" x 8'8")
STAIRS / LANDING
Carpet flooring, radiator, pendant fitting, loft hatch access and an airing cupboard housing the hot water cylinder.
2.04 x 4.70 (6'8" x 15'5")
BEDROOM
PVC windows to the front aspect, pendant fitting, carpet flooring and a radiator.
4.23 x 4.77 (13'10" x 15'7")
ENSUITE
Low level WC, pedestal wash basin and a mains fed shower cubicle. Radiator, vinyl flooring, spot lit ceiling and an extractor.
1.83 x 1.86 (6'0" x 6'1")
BEDROOM
PVC window to the rear aspect, pendant fitting, carpet flooring and a radiator.
2.79 x 2.98 (9'1" x 9'9")
ENSUITE
Low level WC, pedestal wash basin and a mains fed shower cubicle. Radiator, vinyl flooring, PVC window to the rear aspect, spot lit ceiling and an extractor.
1.73x 1.64 (5'8"x 5'4")
OUTSIDE
To the front is a garden, laid to lawn and a block paved driveway leading to the integral garage. To the rear is an enclosed, split level garden, mainly laid to lawn with a raised deck and patio area. A garden shed is included with the sale.
FIXTURES & FITTINGS
Please Note : Items described in these particulars are included in the sale, all other items are specifically excluded. We cannot verify that they are in working order, or fit for their purpose. The buyer is advised to obtain verification from their solicitor or surveyor. Measurements shown in these particulars are approximate and as room guides only. They must not be relied upon or taken as accurate. Purchasers must satisfy themselves in this respect.

Utilities
Electricity:
Mains Supply
Sewerage:
Mains Supply
Water:
Heating:
Gas Central

Mortgage calculator

Calculate your stamp duty
£
Results
Stamp Duty To Pay:
Effective Rate:
Tax Band % Taxable Sum Tax

Minerva Way, North Hykeham, Lincoln

Struggling to find a property? Get in touch and we'll help you find your ideal property.