Standout Features
- Substantial three-bedroom end terrace
- Three reception rooms + two conservatories
- Large basement workshop and outbuilding with development potential
- Principal bedroom with en-suite & walk-in wardrobe
- Enclosed family-friendly garden
- Flexible layout ideal for home working
- Character stone property with modern finishes
- Excellent access to schools, transport & amenities
- Council Tax Band - B
- Reduced price for motivated sale
Property Description
Substantial & beautifully presented three-bedroom end terrace with exceptional living space, versatile basement workshop, multiple cellars and generous family accommodation - ideally positioned in the sought-after Sandy Lane area of Allerton.
This impressive stone-built home offers far more space than first meets the eye, combining character features with modern practicality to create a truly flexible family property. Arranged over multiple levels, the home provides three generous reception areas, conservatories, cellars, outbuilding and a large basement workshop making it ideal for growing families, home working or hobbyists.
The ground floor is designed for modern family life and entertaining, featuring a spacious lounge with feature stove that flows seamlessly into a bright conservatory overlooking the garden. A separate dining room provides an elegant space for hosting, while the well-appointed kitchen enjoys excellent natural light and practical access to the utility area and WC.
Upstairs, over a further two floors the property offers three well-proportioned double bedrooms. The impressive principal bedroom on the top floor benefits from its own en-suite and walk-in wardrobe, creating a private and luxurious retreat. On the 2nd floor, a stylish main bathroom with both bath and separate walk-in shower serves the remaining bedrooms.
The lower ground floor provides a substantial workshop space alongside additional storage areas and plumbing offering fantastic potential for a home business, gym, studio or further development (subject to any necessary consents).
Externally, the home enjoys an enclosed rear garden, ideal for families and outdoor entertaining.
Perfectly positioned for local schools, green spaces and excellent transport links into Bradford and Leeds, this is a rare opportunity to acquire a deceptively spacious and versatile family home in a highly convenient location.
Early viewing is strongly recommended to fully appreciate the scale and flexibility of accommodation on offer.
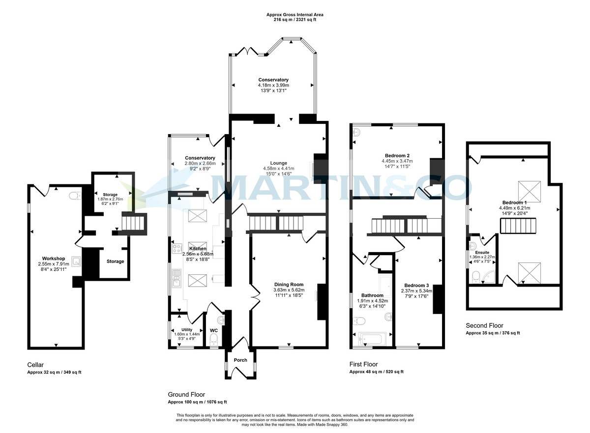
LOUNGE 15' 0" x 14' 5" (4.58m x 4.41m)
DINING ROOM 18' 5" x 11' 10" (5.62m x 3.63m)
KITCHEN 8' 4" x 18' 7" (2.56m x 5.68m)
CONSERVATORY 9' 2" x 8' 8" (2.80m x 2.66m)
CONSERVATORY 13' 8" x 13' 1" (4.18m x 3.99m)
UTILITY 5' 2" x 4' 8" (1.60m x 1.44m)
WC
CELLAR STORAGE 6' 1" x 9' 0" (1.87m x 2.76m)
CELLAR STORAGE
WORKSHOP 8' 4" x 25' 11" (2.55m x 7.91m)
BEDROOM 1 14' 8" x 20' 4" (4.49m x 6.21m)
ENSUITE 4' 5" x 7' 5" (1.36m x 2.27m)
BEDROOM 2 14' 7" x 11' 4" (4.45m x 3.47m)
BEDROOM 3 7' 9" x 17' 6" (2.37m x 5.34m)
BATHROOM 6' 3" x 14' 9" (1.91m x 4.52m)
This impressive stone-built home offers far more space than first meets the eye, combining character features with modern practicality to create a truly flexible family property. Arranged over multiple levels, the home provides three generous reception areas, conservatories, cellars, outbuilding and a large basement workshop making it ideal for growing families, home working or hobbyists.
The ground floor is designed for modern family life and entertaining, featuring a spacious lounge with feature stove that flows seamlessly into a bright conservatory overlooking the garden. A separate dining room provides an elegant space for hosting, while the well-appointed kitchen enjoys excellent natural light and practical access to the utility area and WC.
Upstairs, over a further two floors the property offers three well-proportioned double bedrooms. The impressive principal bedroom on the top floor benefits from its own en-suite and walk-in wardrobe, creating a private and luxurious retreat. On the 2nd floor, a stylish main bathroom with both bath and separate walk-in shower serves the remaining bedrooms.
The lower ground floor provides a substantial workshop space alongside additional storage areas and plumbing offering fantastic potential for a home business, gym, studio or further development (subject to any necessary consents).
Externally, the home enjoys an enclosed rear garden, ideal for families and outdoor entertaining.
Perfectly positioned for local schools, green spaces and excellent transport links into Bradford and Leeds, this is a rare opportunity to acquire a deceptively spacious and versatile family home in a highly convenient location.
Early viewing is strongly recommended to fully appreciate the scale and flexibility of accommodation on offer.
LOUNGE 15' 0" x 14' 5" (4.58m x 4.41m)
DINING ROOM 18' 5" x 11' 10" (5.62m x 3.63m)
KITCHEN 8' 4" x 18' 7" (2.56m x 5.68m)
CONSERVATORY 9' 2" x 8' 8" (2.80m x 2.66m)
CONSERVATORY 13' 8" x 13' 1" (4.18m x 3.99m)
UTILITY 5' 2" x 4' 8" (1.60m x 1.44m)
WC
CELLAR STORAGE 6' 1" x 9' 0" (1.87m x 2.76m)
CELLAR STORAGE
WORKSHOP 8' 4" x 25' 11" (2.55m x 7.91m)
BEDROOM 1 14' 8" x 20' 4" (4.49m x 6.21m)
ENSUITE 4' 5" x 7' 5" (1.36m x 2.27m)
BEDROOM 2 14' 7" x 11' 4" (4.45m x 3.47m)
BEDROOM 3 7' 9" x 17' 6" (2.37m x 5.34m)
BATHROOM 6' 3" x 14' 9" (1.91m x 4.52m)
Additional Information
Tenure:
Freehold
Council Tax Band:
B
Mortgage calculator
Calculate your stamp duty
Results
Stamp Duty To Pay:
Effective Rate:
| Tax Band | % | Taxable Sum | Tax |
|---|
Allerton, Bradford, West Yorkshire
Struggling to find a property? Get in touch and we'll help you find your ideal property.