Standout Features
- Popular Angus Town Kirriemuir
- Town Centre
- Recently Renovated
- Three Double Bedrooms
- Lounge
- Shower Room
- Bathroom
- Off Street Parking
- Extensive exclusive rear garden areas
- Development Opportunity
Property Description
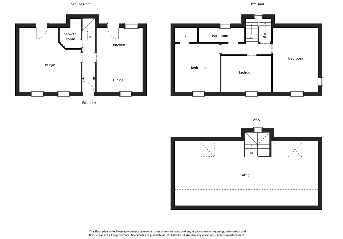
FIXED PRICE Martin & Co Dundee are delighted to bring to the market this recently renovated three bedroom end terraced two storey villa situated in the centre of the popular Angus town of Kirriemuir. This lovely property comprises on the ground floor Entrance Vestibule, Hallway, Lounge, Dining Kitchen and Shower Room with W.C and on the first floor three double Bedrooms and Bathroom with WC and benefits from off street parking and extensive exclusive rear garden areas. The seller also has drawings for the further redevelopment of the subjects including two additional bedrooms with shower room. Viewing highly recommended.
Additional Information
Tenure:
Freehold
Mortgage calculator
Calculate your stamp duty
Results
Stamp Duty To Pay:
Effective Rate:
| Tax Band | % | Taxable Sum | Tax |
|---|
70 Glamis Road Kirriemuir DD8 5DD
Struggling to find a property? Get in touch and we'll help you find your ideal property.