Standout Features
- Cash buyers only due to failed EWS1 cladding certificate
- Two double bedrooms
- Balcony
- Secure gated parking
- Close to local amenities
- Two bathrooms
Property Description
CASH BUYERS ONLY DUE TO FAILED EWS1 CLADDING CERTIFICATE.
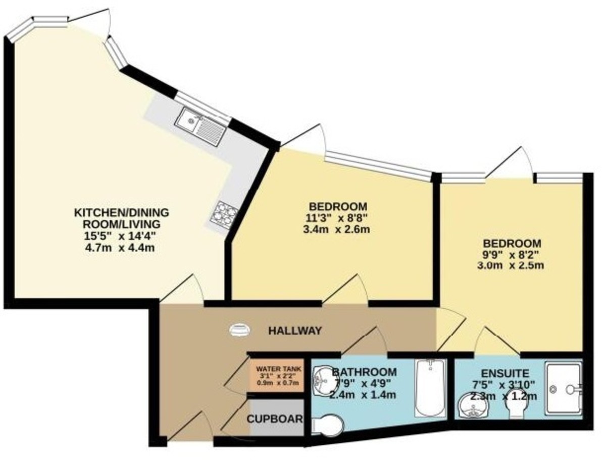
This apartment in Birmingham city centre features a modern, practical layout designed for comfortable urban living. At its heart is a spacious open-plan kitchen, dining, and living area. The room is shaped with gentle angles, giving it a contemporary feel, and includes a fitted kitchen positioned neatly along one wall. Large windows provide plenty of natural light, creating an inviting space for cooking, eating, and relaxing.
A hallway connects the living area to the rest of the home. Off this hallway are two bedrooms, each with its own distinct layout. Both rooms are well-proportioned and suitable for use as sleeping spaces, home offices, or guest rooms. One of the bedrooms benefits from direct access to a private ensuite offering added convenience and privacy.
The main bathroom is located off the hallway and includes standard fixtures in an efficient arrangement. Additional storage is provided by a cupboard that houses the water tank, helping keep the apartment organised and clutter-free.
Overall, the apartment offers a well-designed blend of open living space, private rooms, and practical amenities, all within a city-centre setting ideal for those who value both comfort and convenience.
ROOM SIZES
Hallway
Store
Open Plan Living/Kitchen: 15' 5" x 14' 4" (4.7m x 4.37m)
Bedroom One: 9' 9" x 8' 2" (2.97m x 2.49m)
En-Suite: 7' 5" x 3' 10" (2.26m x 1.17m)
Bedroom Two: 11' 3" x 8' 8" (3.43m x 2.64m)
Family Bathroom: 7' 9" x 4' 9" (2.36m x 1.45m)
OUTSIDE
Balcony
Secure Gated Parking
LEASEHOLD INFORMATION:
Service charge - £5,600pa (Approx)
Ground rent - £270pa
Lease length - 150 years from 1 October 2003
Lease, ground rent and service charge details have been provided by the seller and their accuracy cannot be guaranteed. Should you proceed with the purchase of this property, these details must be verified by your Solicitor.
This apartment in Birmingham city centre features a modern, practical layout designed for comfortable urban living. At its heart is a spacious open-plan kitchen, dining, and living area. The room is shaped with gentle angles, giving it a contemporary feel, and includes a fitted kitchen positioned neatly along one wall. Large windows provide plenty of natural light, creating an inviting space for cooking, eating, and relaxing.
A hallway connects the living area to the rest of the home. Off this hallway are two bedrooms, each with its own distinct layout. Both rooms are well-proportioned and suitable for use as sleeping spaces, home offices, or guest rooms. One of the bedrooms benefits from direct access to a private ensuite offering added convenience and privacy.
The main bathroom is located off the hallway and includes standard fixtures in an efficient arrangement. Additional storage is provided by a cupboard that houses the water tank, helping keep the apartment organised and clutter-free.
Overall, the apartment offers a well-designed blend of open living space, private rooms, and practical amenities, all within a city-centre setting ideal for those who value both comfort and convenience.
ROOM SIZES
Hallway
Store
Open Plan Living/Kitchen: 15' 5" x 14' 4" (4.7m x 4.37m)
Bedroom One: 9' 9" x 8' 2" (2.97m x 2.49m)
En-Suite: 7' 5" x 3' 10" (2.26m x 1.17m)
Bedroom Two: 11' 3" x 8' 8" (3.43m x 2.64m)
Family Bathroom: 7' 9" x 4' 9" (2.36m x 1.45m)
OUTSIDE
Balcony
Secure Gated Parking
LEASEHOLD INFORMATION:
Service charge - £5,600pa (Approx)
Ground rent - £270pa
Lease length - 150 years from 1 October 2003
Lease, ground rent and service charge details have been provided by the seller and their accuracy cannot be guaranteed. Should you proceed with the purchase of this property, these details must be verified by your Solicitor.
Additional Information
Tenure:
Leasehold
Ground Rent:
£270 per year
Service Charge:
£5,600 per year
Council Tax Band:
B
Mortgage calculator
Calculate your stamp duty
Results
Stamp Duty To Pay:
Effective Rate:
| Tax Band | % | Taxable Sum | Tax |
|---|
Wheeleys Lane, Birmingham, B15
Struggling to find a property? Get in touch and we'll help you find your ideal property.