Standout Features
- Freshly decorated two-bedroom upper apartment
- Private entrance with internal staircase
- Bright and spacious lounge with feature fireplace
- Fitted kitchen with ample space for appliances and additional storage
- Two well-proportioned bedrooms (one with built-in storage)
- Newly fitted modern three-piece bathroom with shower over bath
- Private enclosed rear garden
- Convenient location close to local amenities and transport links
- EPC : D
- Council Tax Band Thought to be Band : A
Property Description
FULL DESCRIPTION This freshly decorated two-bedroom upper apartment presents an excellent opportunity for first-time buyers looking to step onto the property ladder, as well as investors seeking a valuable addition to their portfolio. Ideally situated in Kings Place, Rosyth, the property enjoys a convenient location close to a range of local amenities and excellent transport links.
Accessed via its own private entrance, with internal stairs leading to a welcoming inner hallway, the accommodation is well laid out and provides access to all rooms. The property boasts a bright and spacious lounge, a fitted kitchen offering ample space for appliances and additional storage, and two well-proportioned bedrooms-one benefiting from built-in storage and the other featuring a fireplace. A newly fitted, modern three-piece bathroom with a shower over the bath completes the accommodation. Externally, the property benefits from a private enclosed rear garden, ideal for outdoor use, along with on-street parking.
Early viewing is highly recommended to fully appreciate the space, condition, and potential this fantastic property has to offer.
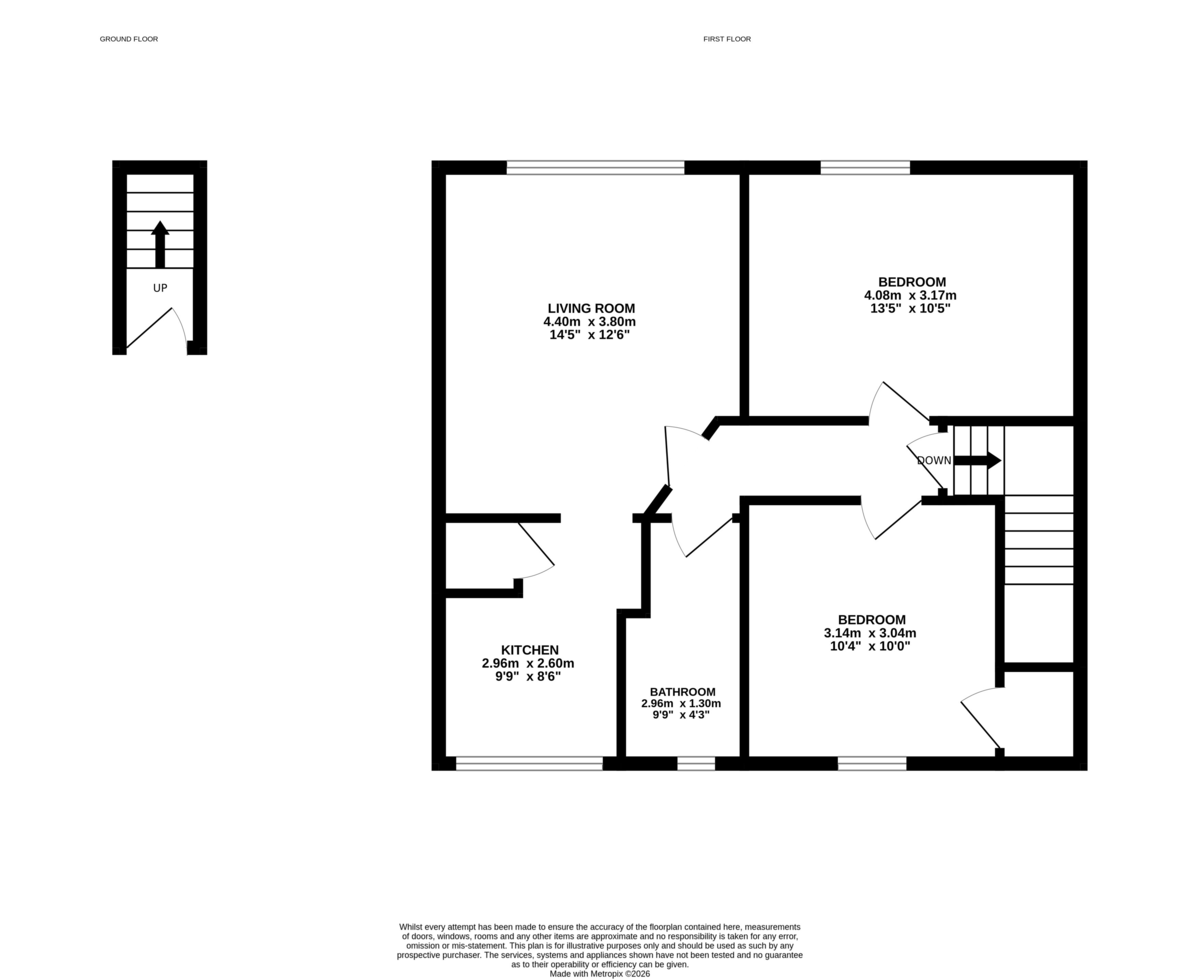
MEASUREMENTS Lounge: 4.40m x 3.80m approx.
Kitchen: 2.96m x 2.60m approx.
Bedroom: 3.14m x 3.04m approx.
Bedroom: 4.08m x 3.17m approx.
Bathroom: 2.96m x 1.30m approx.
LOCATION Rosyth is a popular town located on the northern shore of the River Forth some three miles south of the centre of Dunfermline with a good selection of shops and services, which are easily accessible. Schooling of a good repute can be found in Rosyth and further secondary education available in nearby Dunfermline and Inverkeithing. An ideal commuter base with links to the motorway network. Easy access to the M90 and Ferrytoll Park and Ride. Public transport of bus and rail links making this area an ideal commuter base to Edinburgh, throughout Fife and east central Scotland.
EXTRAS INCLDUED IN SALE All existing floor coverings, fixtures and fittings are included in the sale.
The property is fitted with interlinked smoke alarms in accordance with current safety regulations, providing additional peace of mind. However, no warranty or assurance can be given regarding the ongoing functionality or continued compliance of the alarm system, and purchasers are advised to carry out their own checks following completion.
Accessed via its own private entrance, with internal stairs leading to a welcoming inner hallway, the accommodation is well laid out and provides access to all rooms. The property boasts a bright and spacious lounge, a fitted kitchen offering ample space for appliances and additional storage, and two well-proportioned bedrooms-one benefiting from built-in storage and the other featuring a fireplace. A newly fitted, modern three-piece bathroom with a shower over the bath completes the accommodation. Externally, the property benefits from a private enclosed rear garden, ideal for outdoor use, along with on-street parking.
Early viewing is highly recommended to fully appreciate the space, condition, and potential this fantastic property has to offer.
MEASUREMENTS Lounge: 4.40m x 3.80m approx.
Kitchen: 2.96m x 2.60m approx.
Bedroom: 3.14m x 3.04m approx.
Bedroom: 4.08m x 3.17m approx.
Bathroom: 2.96m x 1.30m approx.
LOCATION Rosyth is a popular town located on the northern shore of the River Forth some three miles south of the centre of Dunfermline with a good selection of shops and services, which are easily accessible. Schooling of a good repute can be found in Rosyth and further secondary education available in nearby Dunfermline and Inverkeithing. An ideal commuter base with links to the motorway network. Easy access to the M90 and Ferrytoll Park and Ride. Public transport of bus and rail links making this area an ideal commuter base to Edinburgh, throughout Fife and east central Scotland.
EXTRAS INCLDUED IN SALE All existing floor coverings, fixtures and fittings are included in the sale.
The property is fitted with interlinked smoke alarms in accordance with current safety regulations, providing additional peace of mind. However, no warranty or assurance can be given regarding the ongoing functionality or continued compliance of the alarm system, and purchasers are advised to carry out their own checks following completion.
Additional Information
Tenure:
Freehold
Mortgage calculator
Calculate your stamp duty
Results
Stamp Duty To Pay:
Effective Rate:
| Tax Band | % | Taxable Sum | Tax |
|---|
Kings Place, Rosyth
Struggling to find a property? Get in touch and we'll help you find your ideal property.