Standout Features
- 24 Hour Concierge Service
- Partial Riverview
- Winter Balcony
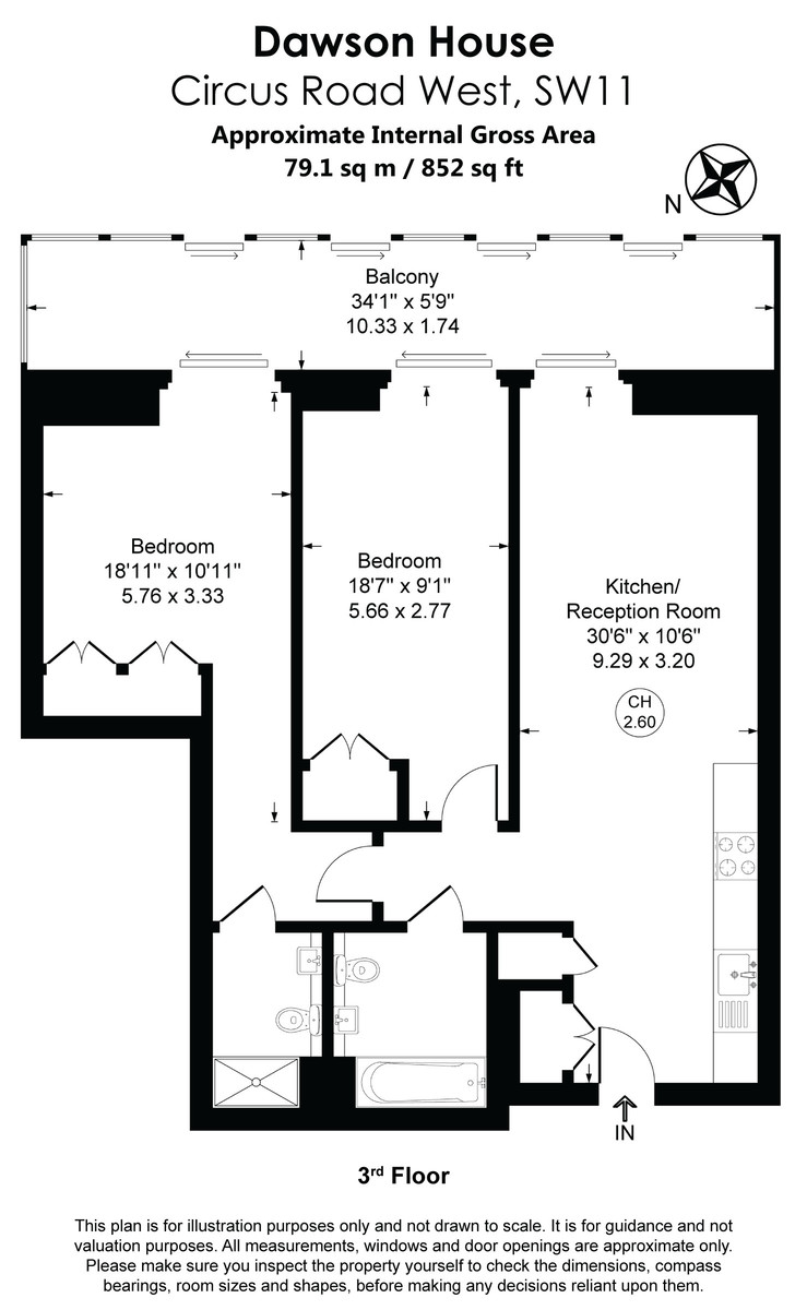
- Approx - 852 sqft
- Zone 1 Northern Line Station & Uber Boat by Thames Clippers pier
- Exclusive Gym, Spa and Cinema Room
- 5 Minutes Walk to Battersea Park
- Landmark shopping and leisure destination
- Onsite - bars, restaurants and shopping
Property Description
This beautifully designed apartment is located in Dawson House, part of the ever popular Battersea Power Station development. The apartment comprises a winter balcony with views towards the powerstation & river, two goodsize double bedrooms, 2 bathrooms one of which is an en-suite and a reception area with a fully-fitted kitchen with built-in siemens appliances.
The reception area and both bedrooms benefit from floor to ceiling windows creating an abundance of natural light throughout the property. The flat further features comfort cooling.
Residents of Dawson House have exclusive access to first class amenities including 24-hr concierge service, swimming pool and spa, well-equipped gym, communal entertaining spaces along with bars and restaurants on site. Situated on the River Thames, the development is conveniently located within close proximity to Sloane Square, Chelsea and Battersea Park.
The Zone 1 Tube station (Battersea Power Station), meanwhile, provides excellent connectivity to the rest of London, with Waterloo (7 minutes), London Bridge (10 minutes), Bank (12 minutes), and King's Cross (20 minutes). The uber boat also ports in the development with services into Embankment (15 mins), Blackfriars (20 mins) and Canary Wharf (40 mins)
Transport links are convenient also with Battersea Park (National Rail Services) into Victoria and Sloane Square Underground (District and Circle Lines) within walking distance.
The reception area and both bedrooms benefit from floor to ceiling windows creating an abundance of natural light throughout the property. The flat further features comfort cooling.
Residents of Dawson House have exclusive access to first class amenities including 24-hr concierge service, swimming pool and spa, well-equipped gym, communal entertaining spaces along with bars and restaurants on site. Situated on the River Thames, the development is conveniently located within close proximity to Sloane Square, Chelsea and Battersea Park.
The Zone 1 Tube station (Battersea Power Station), meanwhile, provides excellent connectivity to the rest of London, with Waterloo (7 minutes), London Bridge (10 minutes), Bank (12 minutes), and King's Cross (20 minutes). The uber boat also ports in the development with services into Embankment (15 mins), Blackfriars (20 mins) and Canary Wharf (40 mins)
Transport links are convenient also with Battersea Park (National Rail Services) into Victoria and Sloane Square Underground (District and Circle Lines) within walking distance.
Additional Information
Tenure:
Leasehold
Ground Rent:
£874 per year
Service Charge:
£11,500 per year
Mortgage calculator
Calculate your stamp duty
Results
Stamp Duty To Pay:
Effective Rate:
| Tax Band | % | Taxable Sum | Tax |
|---|
Dawson House, Battersea Power Station
Struggling to find a property? Get in touch and we'll help you find your ideal property.