Standout Features
- No Upper Chain
- Two modern bathrooms
- Separate well-appointed kitchen
- Popular Shortstown residential location
- Close to parks and countryside walks
- Easy access to Bedford town centre
- Convenient for local shops and schools
- Good road links A421, M1, A1
- Rail to London from 40 minutes
Property Description
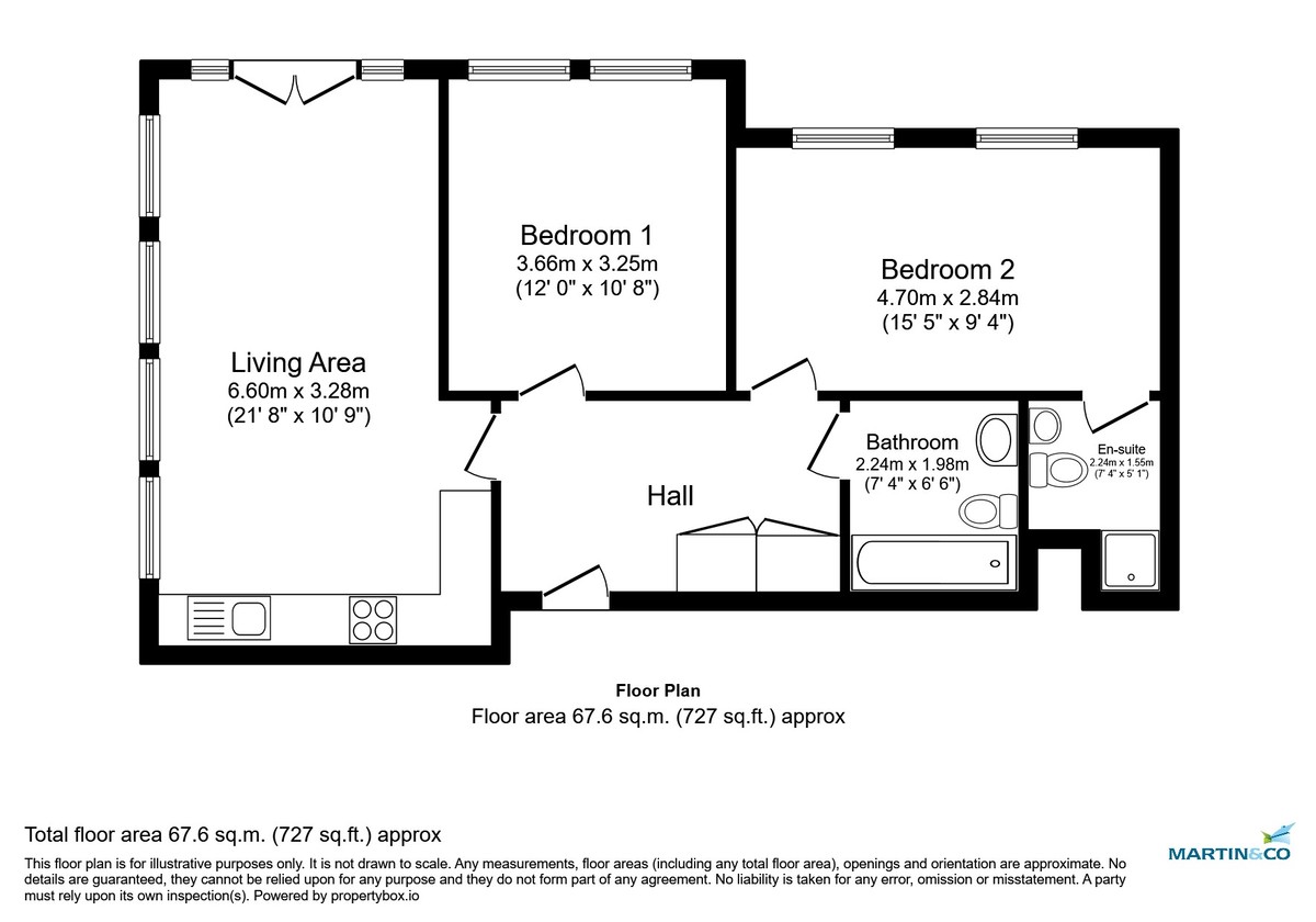
This immaculate two-bedroom flat is for sale in Shortstown, on the southern side of Bedford, offering well-presented accommodation with two bathrooms, one reception room and a separate kitchen. The layout suits both owner-occupiers and buy-to-let investors seeking a ready-to-occupy property in a popular residential setting.
Shortstown provides a good balance of local amenities and access to Bedford town centre. Nearby, residents can enjoy open green spaces such as Harrowden and Jubilee Park, as well as countryside walks towards Cardington and the surrounding Bedfordshire countryside. Bedford's riverside area, with its cafés, restaurants and leisure facilities, is within convenient driving distance.
Local day-to-day shopping needs are met by facilities within Shortstown and neighbouring districts, while Bedford offers a wider range of supermarkets, high-street retailers and independent outlets. The area is also served by a choice of schools in and around Bedford, making the location practical for a range of buyers.
Transport links are a key advantage. Bedford railway station can be reached by bus or a short drive, providing frequent services to London St Pancras International, with typical journey times from around 40 minutes, as well as connections to Brighton and the East Midlands. Road connections are strong, with straightforward access to the A421, linking to the M1 and A1 for commuting and regional travel.
Overall, this two-bedroom flat for sale offers well-maintained accommodation in a sought after location, with practical access to Bedford's amenities, transport links and surrounding open spaces.
Martin & Co for themselves, and for the vendors/owners of the property, whose agents they are, give notice that;
(A) These particulars are produced in good faith, but are set out as a general guide only and do not constitute any part of a contract;
(B) No person in the employment of Martin & Co has any authority to make or give any representation or warranty whatsoever in relation to the property.
Shortstown provides a good balance of local amenities and access to Bedford town centre. Nearby, residents can enjoy open green spaces such as Harrowden and Jubilee Park, as well as countryside walks towards Cardington and the surrounding Bedfordshire countryside. Bedford's riverside area, with its cafés, restaurants and leisure facilities, is within convenient driving distance.
Local day-to-day shopping needs are met by facilities within Shortstown and neighbouring districts, while Bedford offers a wider range of supermarkets, high-street retailers and independent outlets. The area is also served by a choice of schools in and around Bedford, making the location practical for a range of buyers.
Transport links are a key advantage. Bedford railway station can be reached by bus or a short drive, providing frequent services to London St Pancras International, with typical journey times from around 40 minutes, as well as connections to Brighton and the East Midlands. Road connections are strong, with straightforward access to the A421, linking to the M1 and A1 for commuting and regional travel.
Overall, this two-bedroom flat for sale offers well-maintained accommodation in a sought after location, with practical access to Bedford's amenities, transport links and surrounding open spaces.
Martin & Co for themselves, and for the vendors/owners of the property, whose agents they are, give notice that;
(A) These particulars are produced in good faith, but are set out as a general guide only and do not constitute any part of a contract;
(B) No person in the employment of Martin & Co has any authority to make or give any representation or warranty whatsoever in relation to the property.
Additional Information
Tenure:
Leasehold
Ground Rent:
£250 per year
Service Charge:
£1,106 per year
Mortgage calculator
Calculate your stamp duty
Results
Stamp Duty To Pay:
Effective Rate:
| Tax Band | % | Taxable Sum | Tax |
|---|
Beauvais Avenue, Shortstown
Struggling to find a property? Get in touch and we'll help you find your ideal property.