Let Available Date
Available: Now
Standout Features
- Four Bed Family Home
- Three Storeys
- Modern & Beautifully Appointed
- Close To Mill Road Amenities
- Close To Station
- Council Tax Band - F
- Garden
- Garage With EV Charging Point
- Part Of The Iron Works Development
- Two Bathrooms
Property Description
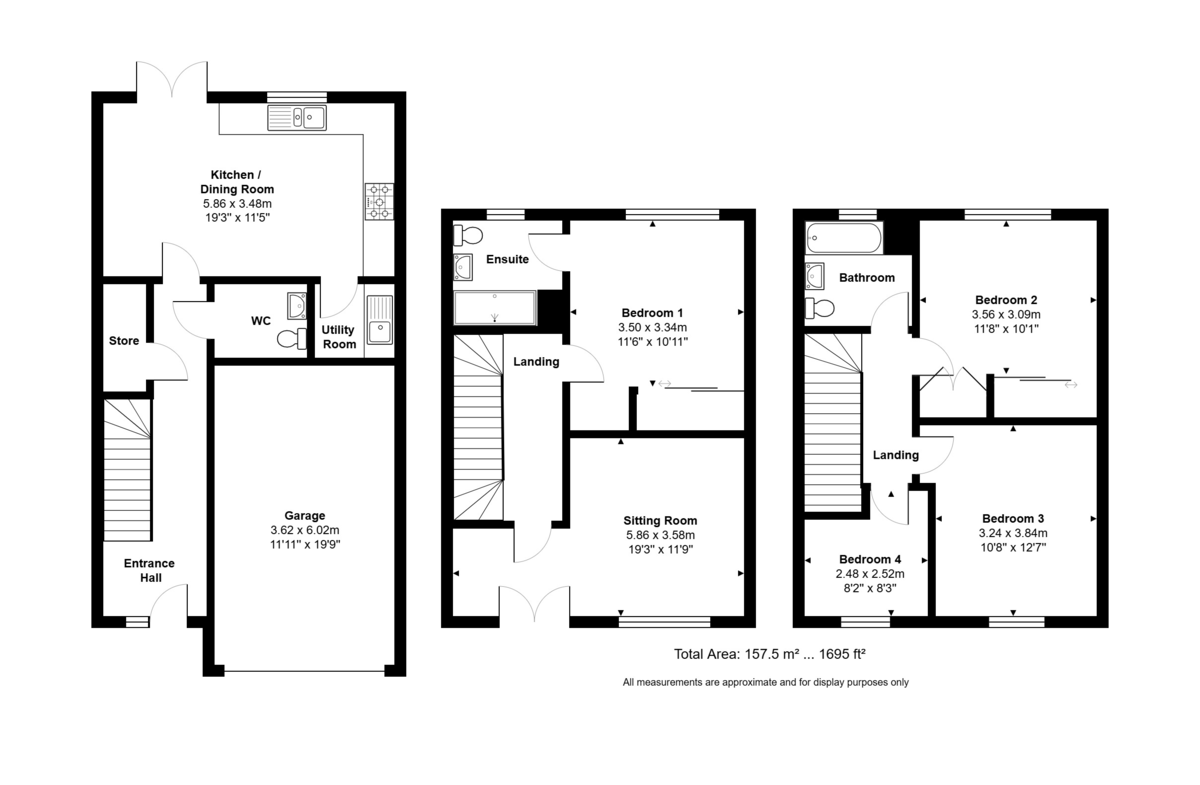
This wonderful four bed three storey semi-detached family home occupies a popular & highly convenient location on the recent Ironworks development just off Mill Road, giving quick & easy access to the many local amenities on Mill Road itself, the city centre and Cambridge railway station.
Providing spacious, very well proportioned and well appointed accommodation, this excellent home comprises the following:
entrance hall with storage; very well appointed kitchen / breakfast room with integrated cooker, hob & extractor, fridge-freezer, dishwasher and dishwasher; and French doors leading to the garden; separate utility room; and ground floor w/c.
On the first floor there is spacious landing; L-shapes sitting room with floor to ceiling windows and a Juliette balcony; the principle bedroom which is generous in size and benefits from large built in wardrobes and a three piece en-suite shower room.
On the second floor there are three further spacious & well proportioned bedrooms; and a beuatifully appointed three family bathroom.
Outside there is a good sized low maintenance terrace accessed from from the from the kitchen / breakfast room which features a lawn, a patio and side access; and a large single garage with an EV charging point.
Additional benefits including gas central heating, modern & stylish decor & furnishings, bright rooms throughout, and of course the wonderful location.
Furnished.
Broadband & mobile coverage: https://www.ofcom.org.uk/phones-and-broadband/coverage-and-speeds/ofcom-checker
Flood risk: Very low
Council tax band: F
Providing spacious, very well proportioned and well appointed accommodation, this excellent home comprises the following:
entrance hall with storage; very well appointed kitchen / breakfast room with integrated cooker, hob & extractor, fridge-freezer, dishwasher and dishwasher; and French doors leading to the garden; separate utility room; and ground floor w/c.
On the first floor there is spacious landing; L-shapes sitting room with floor to ceiling windows and a Juliette balcony; the principle bedroom which is generous in size and benefits from large built in wardrobes and a three piece en-suite shower room.
On the second floor there are three further spacious & well proportioned bedrooms; and a beuatifully appointed three family bathroom.
Outside there is a good sized low maintenance terrace accessed from from the from the kitchen / breakfast room which features a lawn, a patio and side access; and a large single garage with an EV charging point.
Additional benefits including gas central heating, modern & stylish decor & furnishings, bright rooms throughout, and of course the wonderful location.
Furnished.
Broadband & mobile coverage: https://www.ofcom.org.uk/phones-and-broadband/coverage-and-speeds/ofcom-checker
Flood risk: Very low
Council tax band: F
Additional Information
Furnish Type:
Furnished
Council Tax Band:
F
Security Deposit:
£4,035
Headly Street, Cambridge
Struggling to find a property? Get in touch and we'll help you find your ideal property.