Let Available Date
Available: 15/11/2025
Standout Features
- Three Off Landing Bedrooms
- Neutral Decoration Throughout
- Two Reception Rooms
- Modern Bathroom
- Bi-sected Garden
- Double Glazed
- Gas Central Heating
- On Street Parking
- Council Tax Band B
Property Description
A delightful 3 bedroom Terraced House located west of the City Centre that is within walking distance of the city centre. The property comprises;
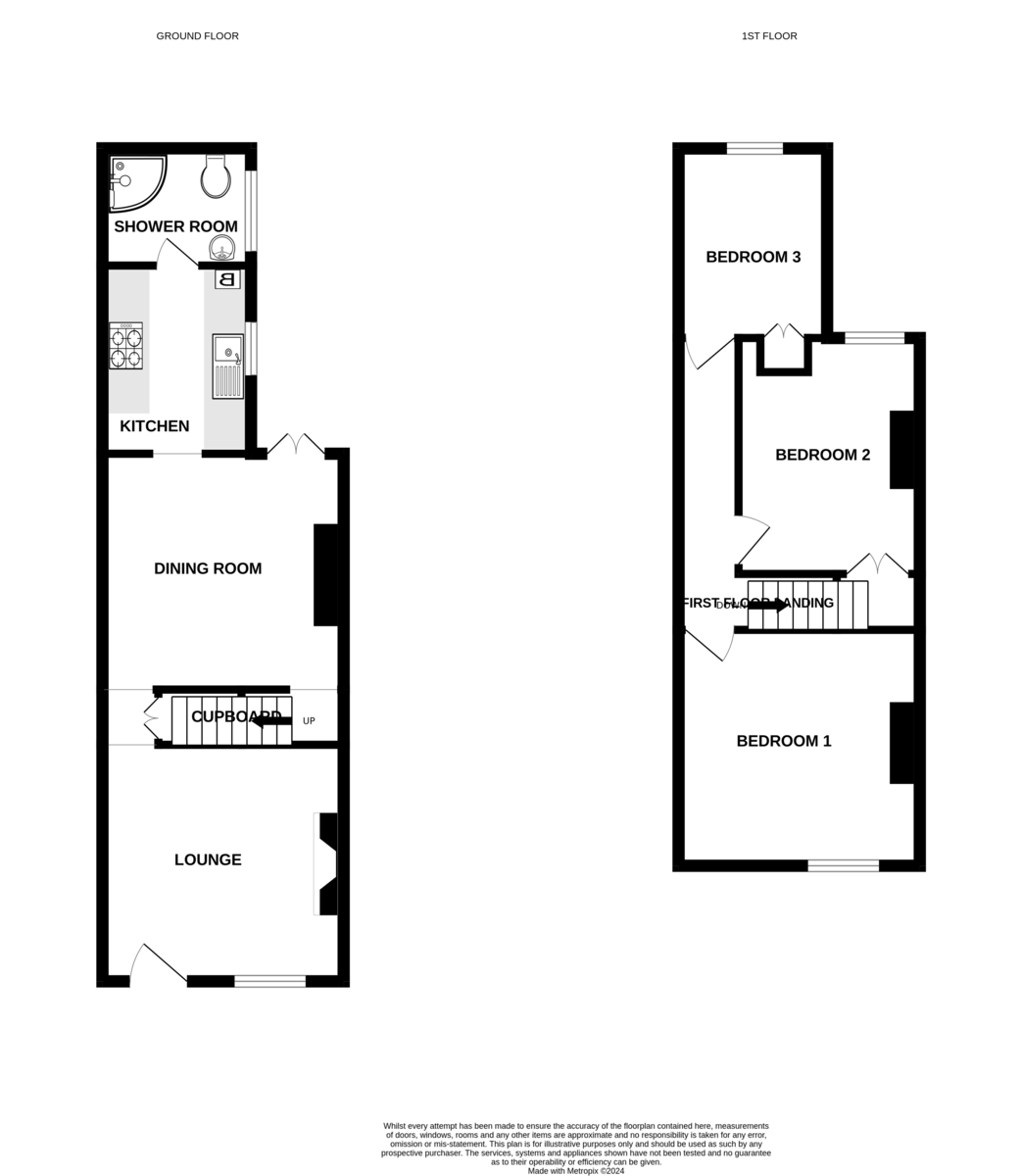
LIVING ROOM 11' 4" x 11' 7" (3.475m x 3.531m) Front door opens into the room, carpet flooring, double glazed window to the front of the house and radiator under window. Doorway leading through to dining room with under stairs cupboard.
DINING ROOM 11' 7" x 11' 4" (3.540m x 3.463m) Carpet flooring, double glazed door leading to back garden, radiator, carpeted stairs leading up to first floor.
KITCHEN 8' 11" x 6' 10" (2.727m x 2.091m) Modern fitted units, stainless steel sink with draining board, built-in electric oven, gas hob, integrated under counter fridge and freezer, integrated extractor fan with light, modern gas boiler, double glazed window to side return, ceramic tile flooring, door leading to:
SHOWER ROOM 5' 7" x 6' 11" (1.722m x 2.109m) Ceramic tile flooring, corner shower enclosure with thermostatic shower, toilet, basin with pedestal and mixer tap, double glazed window to side return, chrome towel radiator and extractor fan.
MAIN BEDROOM 11' 4" x 11' 6" (3.463m x 3.515m) Carpet flooring, double glazed window to the front, radiator.
BEDROOM 2 8' 7" x 11' 5" (2.628m x 3.491m) Carpet flooring, double glazed window to rear, radiator, built-in cupboard.
BEDROOM 3 9' 1" x 7' 1" (2.774m x 2.176m) Carpet flooring, double glazed window to rear, radiator, built-in cupboard.
Parking is on street but is non-permit and the property comes with a bisected rear garden, laid mostly to lawn.
ADDITIONAL INFORMATION:
Council Tax Band: B
Mains gas, electricity, water and drainage connected
The property is available to view now and is offered on the following basis;
No Smokers
No Pets
No Students
No Sharers
Initial Contract Length: 12 months
Following viewing the property, if an applicant wishes to express their interest, they will need to contact Martin & Co Norwich. If invited to apply, a Holding Deposit equivalent to one weeks rent will be payable upon application. Provided the tenancy commences as planned, the Holding Deposit will act against the first month's rent. Prior to the start of any tenancy, we will require a Security Deposit, equivalent to 5 weeks rent be received, in cleared funds, in addition to the first month's rent (less the Holding Deposit).
PLEASE NOTE: If the applicant and/or guarantor(s) withdraw from the application, delay unreasonably in providing information during the application process, fail a Right to Rent check, provide information which is misleading, inaccurate, false or incomplete or fail to enter into the tenancy within 15 days (or other mutually agreed deadline) then we may retain the Holding Deposit and reject the application.
All individuals over the age of 18, who will be residing in the property, will be required to be fully referenced and named on the Tenancy Agreement and each Tenant will become 'jointly and severally liable'. Any individual not named on the Tenancy Agreement is not permitted to reside in the property.
LIVING ROOM 11' 4" x 11' 7" (3.475m x 3.531m) Front door opens into the room, carpet flooring, double glazed window to the front of the house and radiator under window. Doorway leading through to dining room with under stairs cupboard.
DINING ROOM 11' 7" x 11' 4" (3.540m x 3.463m) Carpet flooring, double glazed door leading to back garden, radiator, carpeted stairs leading up to first floor.
KITCHEN 8' 11" x 6' 10" (2.727m x 2.091m) Modern fitted units, stainless steel sink with draining board, built-in electric oven, gas hob, integrated under counter fridge and freezer, integrated extractor fan with light, modern gas boiler, double glazed window to side return, ceramic tile flooring, door leading to:
SHOWER ROOM 5' 7" x 6' 11" (1.722m x 2.109m) Ceramic tile flooring, corner shower enclosure with thermostatic shower, toilet, basin with pedestal and mixer tap, double glazed window to side return, chrome towel radiator and extractor fan.
MAIN BEDROOM 11' 4" x 11' 6" (3.463m x 3.515m) Carpet flooring, double glazed window to the front, radiator.
BEDROOM 2 8' 7" x 11' 5" (2.628m x 3.491m) Carpet flooring, double glazed window to rear, radiator, built-in cupboard.
BEDROOM 3 9' 1" x 7' 1" (2.774m x 2.176m) Carpet flooring, double glazed window to rear, radiator, built-in cupboard.
Parking is on street but is non-permit and the property comes with a bisected rear garden, laid mostly to lawn.
ADDITIONAL INFORMATION:
Council Tax Band: B
Mains gas, electricity, water and drainage connected
The property is available to view now and is offered on the following basis;
No Smokers
No Pets
No Students
No Sharers
Initial Contract Length: 12 months
Following viewing the property, if an applicant wishes to express their interest, they will need to contact Martin & Co Norwich. If invited to apply, a Holding Deposit equivalent to one weeks rent will be payable upon application. Provided the tenancy commences as planned, the Holding Deposit will act against the first month's rent. Prior to the start of any tenancy, we will require a Security Deposit, equivalent to 5 weeks rent be received, in cleared funds, in addition to the first month's rent (less the Holding Deposit).
PLEASE NOTE: If the applicant and/or guarantor(s) withdraw from the application, delay unreasonably in providing information during the application process, fail a Right to Rent check, provide information which is misleading, inaccurate, false or incomplete or fail to enter into the tenancy within 15 days (or other mutually agreed deadline) then we may retain the Holding Deposit and reject the application.
All individuals over the age of 18, who will be residing in the property, will be required to be fully referenced and named on the Tenancy Agreement and each Tenant will become 'jointly and severally liable'. Any individual not named on the Tenancy Agreement is not permitted to reside in the property.
Additional Information
Furnish Type:
Unfurnished
Council Tax Band:
B
Security Deposit:
£1,145
West City
Struggling to find a property? Get in touch and we'll help you find your ideal property.