Let Available Date
Available: 08/06/2026
Standout Features
- Generous family home
- Highly sought after location
- Well presented throughout
- Garage in block
- Private enclosed garden
- Gas central heating
- Good sized bedrooms
- Available Mid June 2026
- Early interest highly advised
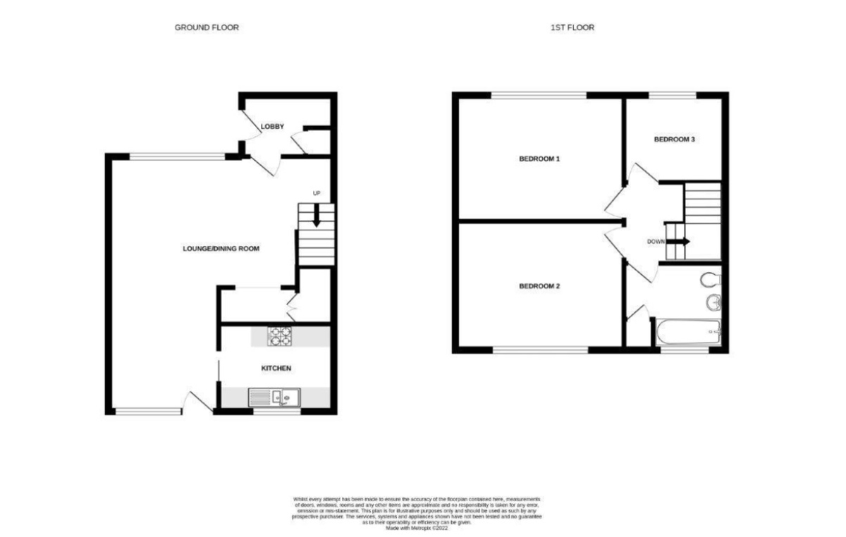
Property Description
Martin and Co are delighted to present this three bedroom family home located in a popular and convenient development within the highly desired village Lightwater. The ground floor benefits from a generous living/dining room with patio doors leading into the garden, modern fitted kitchen with appliances, a convenient porch and ample storage. The first floor provides two generous double bedrooms, a good sized single bedroom and family bathroom. The property further benefits from gas central heating, easy access to the garden through side pathway and gate, a private enclosed rear garden with summerhouse fitted with power and garage in block. This is a rare offering of a family home within the heart of Lightwater, within close proximity to local shops and amenities. Band D Council Tax. Early interest is highly advised.
Holding deposit - £403
5 weeks deposit - £2,019
Minimum household income required for referencing - £52,500
Additional Information
Furnish Type:
Unfurnished
Council Tax Band:
D
Security Deposit:
£2,019
Lightwater, Surrey
Struggling to find a property? Get in touch and we'll help you find your ideal property.