Kirby Place, Oxford

£2,400 PCM | Available

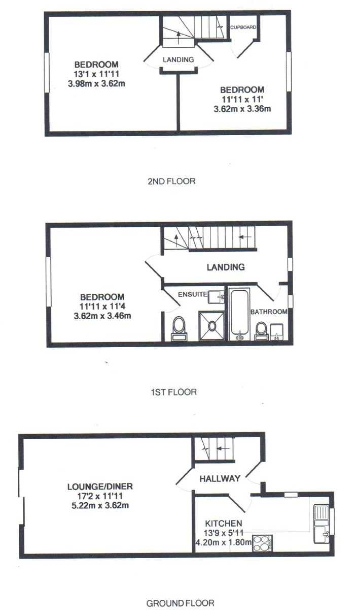
3 bedroom House To Rent

or call 01865 812110
Let Available Date
Available: 12/09/2026
Standout Features
Property Description
High standard furnished home LICENSED FOR SHARERS.

This stylish and modern property benefits from gas-fired central heating and has 3 DOUBLE BEDROOMS, off-street PARKING and an enclosed rear GARDEN.

Located in a quiet close in Temple Cowley, this superb property is well situated for shopping centres and large retail parks, and offers easy access to the wide range of amenities on Cowley Road. The area is well-served by leisure and sports facilities and frequent bus services to Oxford Brookes, Headington and into the city centre stop close by.

An ideal property for students and viewings are highly recommended.

Additional Information
Furnish Type:
Furnished
Council Tax Band:
D
Security Deposit:
£2,765

Kirby Place, Oxford

Struggling to find a property? Get in touch and we'll help you find your ideal property.