Let Available Date
Available: Now
Standout Features
- Three Bedrooms
- Semi-Detached House
- Garage
- Driveway
- Front & Rear Gardens
- Convenient Cherry Hinton Location
- Quiet Cul-De-Sac Location
- Council Tax Band - D
Property Description
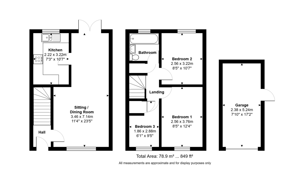
This three bedroom semi-detached family home is situated on a quiet cul-de-sac road on the outskirts of Cherry Hinton giving excellent access to ARM, local amenities and Cambridge city centre.
On the ground floor the property comprises entrance hall; sitting / dining and kitchen with oven, fridge/freezer and washing machine. On the first floor are three bedrooms, two of which are double in size with built in wardrobes and a family bathroom with WC, basin and bath with shower over.
Externally the property benefits from front and rear gardens, a driveway and garage.
Additional benefits include gas central heating and double glazing throughout.
Available to let unfurnished.
On the ground floor the property comprises entrance hall; sitting / dining and kitchen with oven, fridge/freezer and washing machine. On the first floor are three bedrooms, two of which are double in size with built in wardrobes and a family bathroom with WC, basin and bath with shower over.
Externally the property benefits from front and rear gardens, a driveway and garage.
Additional benefits include gas central heating and double glazing throughout.
Available to let unfurnished.
Additional Information
Furnish Type:
Unfurnished
Security Deposit:
£1,785
Headington Close, Cherry Hinton
Struggling to find a property? Get in touch and we'll help you find your ideal property.