Let Available Date
                    
                        Available: 07/11/2025                
                                                                        Standout Features
                         - Three / Four Bed Family Home
- Popular & Convenient Location
- Three Storeys
- Modern & Well Appointed
- Two Reception Room
- Two Bathrooms (One En-Suite)
- Council Tax Band - F
- Off Road Parking
- Garden Studio
- Close To Addenbrooke's & City
Property Description
                    
                      This excellent three / four bed family home occupies a popular & highly convenient location in Trumpington giving quick & easy access to the Addenbrooke's campus, the M11, local amenities including a large Waitrose supermarket and Cambridge city centre.
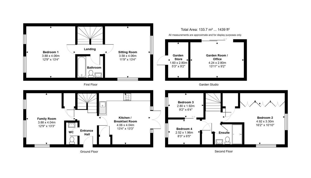
Arranged over three storeys and providing versatile, spacious, well proportioned and well presented accommodation, this home comprises the following:
entrance hall; ground floor w/c; family room; and kitchen / breakfast room with a near full range of integrated appliances and French doors to the garden.
On the first floor, there is a landing; a large dual-aspect double bedroom; a Japanese-styled tatami-floored sitting room, also with dual aspect; and a three-piece family bathroom with towel rail and shower over bath.
On the second floor there a two single bedrooms (one accessed from the other); and the principle bedroom which features ample storage and built in wardrobes; and a modern three piece en-suite shower room.
Outside there is a small garden; driveway parking; and of real significance, a spacious garden studio which is perfect for us as a home office, with large storage to the side.
Broadband speed: up to 1800 Mbps download speed
Mobile coverage: https://www.ofcom.org.uk/mobile-coverage-checker
Flood risk: Very low
Unfurnished.
                    Arranged over three storeys and providing versatile, spacious, well proportioned and well presented accommodation, this home comprises the following:
entrance hall; ground floor w/c; family room; and kitchen / breakfast room with a near full range of integrated appliances and French doors to the garden.
On the first floor, there is a landing; a large dual-aspect double bedroom; a Japanese-styled tatami-floored sitting room, also with dual aspect; and a three-piece family bathroom with towel rail and shower over bath.
On the second floor there a two single bedrooms (one accessed from the other); and the principle bedroom which features ample storage and built in wardrobes; and a modern three piece en-suite shower room.
Outside there is a small garden; driveway parking; and of real significance, a spacious garden studio which is perfect for us as a home office, with large storage to the side.
Broadband speed: up to 1800 Mbps download speed
Mobile coverage: https://www.ofcom.org.uk/mobile-coverage-checker
Flood risk: Very low
Unfurnished.
Additional Information
 
                                
                                Furnish Type: 
 
                                    Unfurnished
                                Council Tax Band: 
 
                                    F
                                Security Deposit: 
 
                                    £3,285
                                Forester Road, Trumpington
                    Struggling to find a property? Get in touch and we'll help you find your ideal property.
 
                                         
                            