Let Available Date
Available: Now
Standout Features
- Picturesque Location
- Two Bedroom
- Rear Yard
- Lounge
- Scenic Views
- Oil Central Heating
- Ground floor bathroom
- Available now!
- Village location
- Call Martin and Co to book a viewing!
Property Description
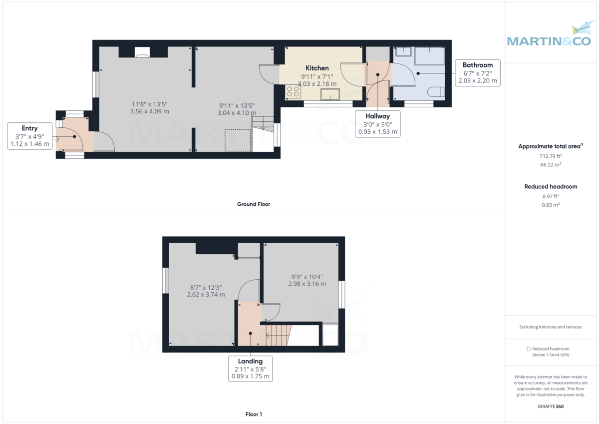
FULL DESCRIPTION Martin and Co are pleased to welcome to the market this well presented TWO bedroom property located in Margrove Park. Briefly comprising of an entrance hall, living room, dining room, kitchen, rear internal lobby, bathroom, two double bedroom's, rear yard and front garden. The property would ideally suit someone seeking picturesque surroundings and a quiet location - whilst being widely accessible to nearby town's and facilities. Call Martin and Co to secure a viewing, as we are sure this property is going to be a popular one!
INTERNALLY
ENTRANCE PORCH
LOUNGE To front aspect. Textured ceiling, dado, wooden fire surround incorporating electric fire , Carpet flooring, Central heating radiator and uPVC window.
DINING ROOM To rear aspect. textured ceiling, carpet flooring, central heating radiator, uPVC window and stairs leading to the first floor.
KITCHEN To rear aspect. Range of wall, base and drawer units with dark wood effect fascias, 1.5 bowl coloured inset sink unit, mixer tap, tiled splash backs, laminate work surfaces, hob, electric oven, extractor, vinyl flooring, Central heating radiator and uPVC window
LOBBY uPVC door leading to rear yard, storage cupboard
BATHROOM Part tiled. Coloured suite comprising: low level WC with flush, pedestal wash hand basin, panelled corner bath with Mira electric shower over, shower curtain, extractor, vinyl flooring, central heating radiator and uPVC window.
FIRST FLOOR
LANDING
BEDROOM 2 To rear aspect. Central heating radiator, with storage cupboard and uPVC window.
BEDROOM 1 To front aspect. Central heating radiator and storage cupboard and uPVC window.
EXTERNALLY
GARDEN The front garden is mainly laid to lawn with borders. Rear Yard to property
PLEASE NOTE All applicants will be subject to a credit check carried out by a 3rd party to check for CCJs and IVAs Applicants will need to provide proof of an income of at least 2.5 x annual rent. DSS applicants will require a guarantor who is working and able to provide proof of an
income 3x the annual rent. We will also carry out employment checks, affordability checks, previous landlord reference and proof of address history, usually up to 3 years.
By law, Right to Rent checks must be carried and as such will be required to provide proof of ID and address in accordance with Home Office guidelines. More information can be found at:
https://assets.publishing.service.gov.uk/government/uploads/system/uploads/attachment_data/file/573057/6_1193_HO_NH_Right-to-Rent-Guidance.pdf
INTERNALLY
ENTRANCE PORCH
LOUNGE To front aspect. Textured ceiling, dado, wooden fire surround incorporating electric fire , Carpet flooring, Central heating radiator and uPVC window.
DINING ROOM To rear aspect. textured ceiling, carpet flooring, central heating radiator, uPVC window and stairs leading to the first floor.
KITCHEN To rear aspect. Range of wall, base and drawer units with dark wood effect fascias, 1.5 bowl coloured inset sink unit, mixer tap, tiled splash backs, laminate work surfaces, hob, electric oven, extractor, vinyl flooring, Central heating radiator and uPVC window
LOBBY uPVC door leading to rear yard, storage cupboard
BATHROOM Part tiled. Coloured suite comprising: low level WC with flush, pedestal wash hand basin, panelled corner bath with Mira electric shower over, shower curtain, extractor, vinyl flooring, central heating radiator and uPVC window.
FIRST FLOOR
LANDING
BEDROOM 2 To rear aspect. Central heating radiator, with storage cupboard and uPVC window.
BEDROOM 1 To front aspect. Central heating radiator and storage cupboard and uPVC window.
EXTERNALLY
GARDEN The front garden is mainly laid to lawn with borders. Rear Yard to property
PLEASE NOTE All applicants will be subject to a credit check carried out by a 3rd party to check for CCJs and IVAs Applicants will need to provide proof of an income of at least 2.5 x annual rent. DSS applicants will require a guarantor who is working and able to provide proof of an
income 3x the annual rent. We will also carry out employment checks, affordability checks, previous landlord reference and proof of address history, usually up to 3 years.
By law, Right to Rent checks must be carried and as such will be required to provide proof of ID and address in accordance with Home Office guidelines. More information can be found at:
https://assets.publishing.service.gov.uk/government/uploads/system/uploads/attachment_data/file/573057/6_1193_HO_NH_Right-to-Rent-Guidance.pdf
Additional Information
Furnish Type:
Unfurnished
Council Tax Band:
A
Security Deposit:
£800
Margrove Park, Boosbeck
Struggling to find a property? Get in touch and we'll help you find your ideal property.