Let Available Date
                    
                        Available: Now                
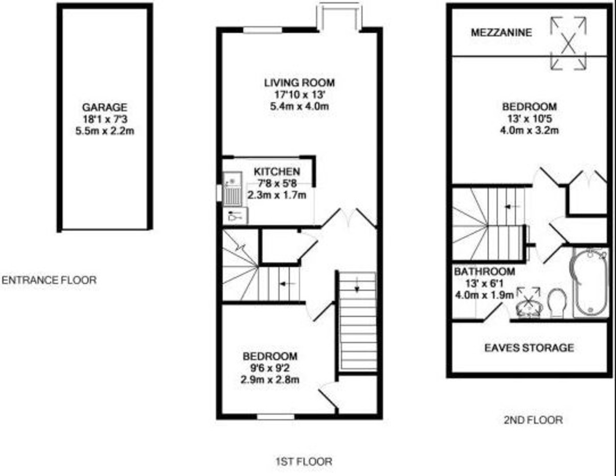
                                                                        Standout Features
                         - Two bedrooms
- Modern kitchen
- Lounge
- Large Bathroom
- Views Over The Lake
- Off street parking
- Garage
- Excellent views
- Excellent Amenities Nearby
Property Description
                    
                    Two bedroom split level maisonette with stunning views of the lake. The Property comprises of a lounge, master bedroom, modern bathroom suite, second double bedroom and a modern kitchen. Further benefits include garage in block and a front garden. Ideally located with excellent commuter links, schools and amenities.
                    Additional Information
 
                                
                                Furnish Type: 
 
                                    Unfurnished
                                Council Tax Band: 
 
                                    C
                                Security Deposit: 
 
                                    £1,701
                                Veryan, Woking, Surrey
                    Struggling to find a property? Get in touch and we'll help you find your ideal property.
 
                                         
                            