Trinity House North, Graven Hill

£1,550 PCM | Let Agreed

2 bedroom Flat to rent

or call 01865 812110
Let Available Date
Available: 16/07/2027
Standout Features
Property Description
Martin & Co Oxford welcomes this well-presented luxury apartment located in the popular Graven Hill development in Bicester, Oxford.

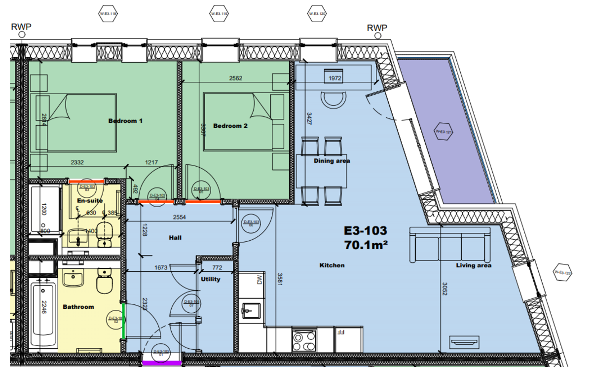
This property offers two double bedrooms, including a master bedroom with en-suite, an additional family bathroom and further comes fully furnished. The apartment also benefits from a private balcony and includes built-in white goods.

Additional features include allocated parking. Please note that bills are not included in the rent.

Ideally situated with easy access to the M40, within walking distance of the train station, and close to Bicester Village.

EE - Good outdoor
O2 - Good outdoor
Three - Good outdoor
Vodafone - Good outdoor & Variable in home

Highest available download speed - 1800 Mbps
Surface water - Very Low Risk

Additional Information
Furnish Type:
Furnished
Council Tax Band:
B
Security Deposit:
£1,785

Trinity House North, Graven Hill

Struggling to find a property? Get in touch and we'll help you find your ideal property.