Let Available Date
Available: Now
Standout Features
- GAS, WATER & WIFI INCLUDED
- Two Bedroom Apartment
- Spacious throughout
- Sea views
- Off-road parking
- Viewing essential
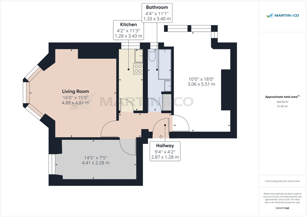
Property Description
** The rent includes gas central heating, water and fibre broadband. The electric is not included and is to be paid via a metro meter **
Martin & Co are pleased to offer this two bedroom, part furnished, First Floor Apartment. The property is located in a well kept Victorian Building a minutes walk from the popular area of St Annes, also benefiting from beautiful Sea Views.
The property briefly comprises of: Entrance hallway leading to a spacious living area that has recently been decorated, fitted kitchen and bathroom and two double bedrooms.
Included with this property is off-road allocate parking.
Additional Information
Furnish Type:
Part Furnished
Council Tax Band:
A
Security Deposit:
£800
Clifton Drive North, Lytham St Anne's, Lancashire
Struggling to find a property? Get in touch and we'll help you find your ideal property.